• 手机版

    扫码体验手机版

  • 微信公众号

    扫码关注公众号

登录注册
游客您好
第三方账号登陆

[江山] 望府7#121m2现代简约---安居

[复制链接]
发表于 2021-4-18 11:34:53 | 显示全部楼层 |阅读模式
安居

格堂装饰为您全程记录装修全过程!

小区名称
望府
房屋面积
121㎡
户型结构
套房
装修风格
现代
装修方式
半包
装修造价
查看请联系客服万元
设计师
王工
项目经理
郑工
装修公司
格堂装饰
完工实景
完工实景
水电全景
水电全景
VR全景
VR全景
设计说明
本次案列的屋主,俩位老师,平日里工作繁忙,需要对接处理的事务繁多,为了工作方便为自己购置了城北的家。
因为从事老师工作,需要一个书房,女业主提出同时还要衣帽间,保留其他卧室。尽量提高空间的利用率,空间功能不要单一。
相比起来,她希望我们在这个家的方案中更多的去围绕居住体验展开设计。
更多信息
效果图

df8fa68e7fb348482d310bc90e73dbb.png

c1bb2f05afcba1d9e0b10adb340cf60.png
回复

使用道具 举报

 楼主| 发表于 2021-4-18 11:35:20 | 显示全部楼层
原始结构图


1e76460e688cd4afa48cfa291217e52.png
回复 支持 反对

使用道具 举报

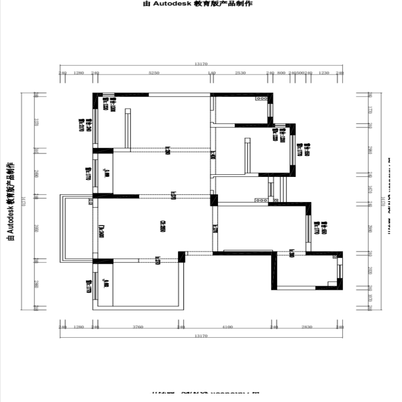
 楼主| 发表于 2021-4-18 11:35:37 | 显示全部楼层
平面布置图


303097bc9bf569156f638204960f846.png
回复 支持 反对

使用道具 举报

 楼主| 发表于 2021-4-18 11:36:30 | 显示全部楼层
本帖最后由 格堂小李 于 2021-4-20 13:43 编辑

大门已经套好了门套

IMG_20210420_122053.jpg

IMG_20210420_122204.jpg

IMG_20210420_122356.jpg
回复 支持 反对

使用道具 举报

 楼主| 发表于 2021-4-18 11:36:52 | 显示全部楼层
本帖最后由 格堂小李 于 2021-4-20 13:41 编辑

门槛也都保护到位。

IMG_20210420_122131.jpg
回复 支持 反对

使用道具 举报

 楼主| 发表于 2021-4-18 11:37:09 | 显示全部楼层
本帖最后由 格堂小李 于 2021-4-20 13:42 编辑

临时马桶:每一个施工现场都会配备临时小便斗,并且时刻保持干净卫生、保证工地环境干净、整洁。


IMG_20210420_121958.jpg
回复 支持 反对

使用道具 举报

 楼主| 发表于 2021-4-18 11:37:25 | 显示全部楼层
本帖最后由 格堂小李 于 2021-4-20 13:42 编辑

下水管用格堂专用保护盖保护,防止砂石堵塞管道。


IMG_20210420_121956.jpg

IMG_20210420_122012.jpg

IMG_20210420_121959.jpg

IMG_20210420_122014.jpg

IMG_20210420_122017.jpg
回复 支持 反对

使用道具 举报

 楼主| 发表于 2021-4-18 11:37:54 | 显示全部楼层
礼炮已经准备好了


IMG_20210416_101726.jpg
回复 支持 反对

使用道具 举报

 楼主| 发表于 2021-4-18 11:38:10 | 显示全部楼层
开工锤已经准备好了。


IMG_20210416_101729.jpg
回复 支持 反对

使用道具 举报

 楼主| 发表于 2021-4-18 11:48:34 | 显示全部楼层
本帖最后由 格堂小李 于 2021-4-20 13:44 编辑

电梯口地面已经保护到位


IMG_20210420_122136.jpg

IMG_20210420_122137.jpg

IMG_20210420_122139.jpg

IMG_20210420_122148.jpg

IMG_20210420_122142.jpg
回复 支持 反对

使用道具 举报

您需要登录后才可以回帖 登录 | 立即注册

本版积分规则

全国统一客服电话
0570-8028505

24x7小时免费咨询

  • 官方在线客服

    QQ客服:小西

    点击交谈

    QQ客服:良子

    点击交谈

    QQ客服:闵月

    点击交谈
  • 衢州市柯城区财富中心3号楼2楼

  • 衢州格堂装饰有限公司

  • 扫一扫关注官方微信

    获取一手特惠信息

快速回复 返回顶部 返回列表