• 手机版

    扫码体验手机版

  • 微信公众号

    扫码关注公众号

登录注册
游客您好
第三方账号登陆

[衢州] 衢州公馆7-250#169㎡现代—『未』

[复制链接]
发表于 2021-3-25 14:26:18 | 显示全部楼层 |阅读模式
『未』

格堂装饰为您全程记录装修全过程!

小区名称
衢州公馆
房屋面积
169㎡
户型结构
套房
装修风格
现代
装修方式
半包
装修造价
查看请联系客服万元
设计师
胡工
项目经理
彭工
装修公司
格堂装饰
完工实景
完工实景
水电全景
水电全景
VR全景
VR全景
设计说明
丰盈的人生,
一半是日复平淡,一半是历久弥新。

以初心的简单,去化解所有繁华中的聒噪和烦恼,

简单的黑白搭建构造出无限的丰富层次。
更多信息

回复

使用道具 举报

 楼主| 发表于 2021-3-25 14:27:28 | 显示全部楼层
效果图


微信图片_202103251208011.jpg


微信图片_20210325120801.jpg
回复 支持 反对

使用道具 举报

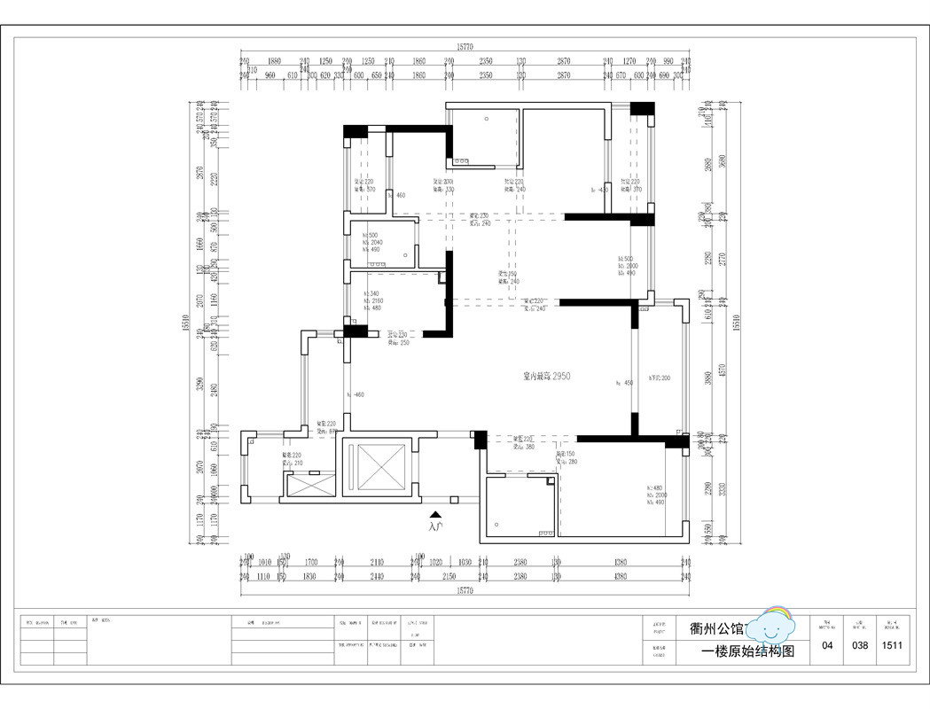
 楼主| 发表于 2021-3-25 14:27:48 | 显示全部楼层
原始结构图


微信图片_202103251208012.jpg


平面布置图


微信图片_202103251208013.jpg
回复 支持 反对

使用道具 举报

 楼主| 发表于 2021-3-25 14:28:43 | 显示全部楼层
下水管道用格堂专用保护盖保护到位,防止后期砂石堵塞管道

微信图片_20210325120748.jpg


微信图片_202103251207481.jpg


微信图片_202103251207482.jpg



微信图片_202103251207483.jpg

回复 支持 反对

使用道具 举报

 楼主| 发表于 2021-3-25 14:31:51 | 显示全部楼层
施工之前进行保护和准备工作

微信图片_202103251207485.jpg


微信图片_202103251207486.jpg


微信图片_202103251207484.jpg
回复 支持 反对

使用道具 举报

 楼主| 发表于 2021-3-25 14:33:49 | 显示全部楼层
开工大吉


微信图片_202103251207487.jpg

装修开工第一锤应该由业主敲在要拆除的墙体的墙角(即拐角)上,象征一锤定音的意思,也是新房动土的一种表示方式。


微信图片_202103251207488.jpg

回复 支持 反对

使用道具 举报

 楼主| 发表于 2021-3-25 14:35:02 | 显示全部楼层
验房

微信图片_202103251208014.jpg


微信图片_202103251208015.jpg


微信图片_202103251208016.jpg



微信图片_202103251208017.jpg


微信图片_202103251208018.jpg
回复 支持 反对

使用道具 举报

 楼主| 发表于 2021-3-25 14:35:47 | 显示全部楼层
微信图片_2021032512080110.jpg

微信图片_2021032512080111.jpg


微信图片_2021032512080112.jpg


微信图片_2021032512080113.jpg


验房记录单

微信图片_2021032512080114.jpg
回复 支持 反对

使用道具 举报

 楼主| 发表于 2021-4-3 09:47:26 | 显示全部楼层
墙顶面铲灰,是为了防止墙体出现空鼓,在做好油漆后,不会有墙体整块油漆脱落的现象

IMG_20210328_103449.jpg


IMG_20210328_103454.jpg


IMG_20210328_103452.jpg



IMG_20210328_103501.jpg


IMG_20210328_103457.jpg
回复 支持 反对

使用道具 举报

 楼主| 发表于 2021-4-3 09:53:51 | 显示全部楼层
墙顶面铲灰,是为了防止墙体出现空鼓,在做好油漆后,不会有墙体整块油漆脱落的现象

IMG_20210328_103504.jpg

IMG_20210328_103507.jpg


IMG_20210328_103506.jpg



IMG_20210328_103516.jpg


IMG_20210328_103518.jpg
回复 支持 反对

使用道具 举报

您需要登录后才可以回帖 登录 | 立即注册

本版积分规则

全国统一客服电话
0570-8028505

24x7小时免费咨询

  • 官方在线客服

    QQ客服:小西

    点击交谈

    QQ客服:良子

    点击交谈

    QQ客服:闵月

    点击交谈
  • 衢州市柯城区财富中心3号楼2楼

  • 衢州格堂装饰有限公司

  • 扫一扫关注官方微信

    获取一手特惠信息

快速回复 返回顶部 返回列表