• 手机版

    扫码体验手机版

  • 微信公众号

    扫码关注公众号

登录注册
游客您好
第三方账号登陆

[衢州] 衢州公馆4-2-14#163㎡极简黑白——印迹

[复制链接]
发表于 2021-3-24 14:56:21 | 显示全部楼层 |阅读模式
印迹

格堂装饰为您全程记录装修全过程!

小区名称
衢州公馆
房屋面积
163㎡
户型结构
套房
装修风格
现代
装修方式
半包
装修造价
查看请联系客服万元
设计师
王工
项目经理
刘工
装修公司
格堂装饰
完工实景
完工实景
水电全景
水电全景
VR全景
VR全景
设计说明
丰盈的人生,一半是日复平淡,一半是历久弥新。
以初心的简单,去化解所有繁华中的聒噪和烦恼,
简单的黑白搭建构造出无限的丰富层次。
更多信息

效果图
mmexport1616566423630.png

mmexport1616566428869.png
回复

使用道具 举报

 楼主| 发表于 2021-3-24 14:57:02 | 显示全部楼层

原始结构图
mmexport1616566415208.jpg
回复 支持 反对

使用道具 举报

 楼主| 发表于 2021-3-24 14:57:21 | 显示全部楼层

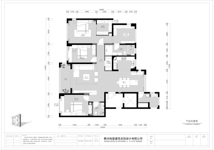
平面布置图
mmexport1616566418973.jpg
回复 支持 反对

使用道具 举报

 楼主| 发表于 2021-3-24 15:00:33 | 显示全部楼层

开工前电梯口墙面和地面已经保护到位。
IMG_20210324_065347.jpg

IMG_20210324_065349.jpg

IMG_20210324_065352.jpg

IMG_20210324_065354.jpg

IMG_20210324_065356.jpg
回复 支持 反对

使用道具 举报

 楼主| 发表于 2021-3-24 15:01:09 | 显示全部楼层

电梯口对角
IMG_20210324_065402.jpg

IMG_20210324_065404.jpg

IMG_20210324_065406.jpg

IMG_20210324_065410.jpg

IMG_20210324_065408.jpg
回复 支持 反对

使用道具 举报

 楼主| 发表于 2021-3-24 15:21:06 | 显示全部楼层

门槛已经保护好了。
IMG_20210324_071141.jpg
回复 支持 反对

使用道具 举报

 楼主| 发表于 2021-3-24 15:22:41 | 显示全部楼层

大门已经套好了门套
IMG_20210324_071145.jpg

IMG_20210324_071152.jpg
回复 支持 反对

使用道具 举报

 楼主| 发表于 2021-3-24 15:24:07 | 显示全部楼层

煤气表已经保护好了。
IMG_20210324_065426.jpg
回复 支持 反对

使用道具 举报

 楼主| 发表于 2021-3-24 15:25:36 | 显示全部楼层

临时马桶:每一个施工现场都会配备临时小便斗,并且时刻保持干净卫生、保证工地环境干净、整洁。
IMG_20210324_065517.jpg
回复 支持 反对

使用道具 举报

 楼主| 发表于 2021-3-24 15:35:10 | 显示全部楼层

下水管用格堂专用保护盖保护,防止砂石堵塞管道。
IMG_20210324_065519.jpg
回复 支持 反对

使用道具 举报

您需要登录后才可以回帖 登录 | 立即注册

本版积分规则

全国统一客服电话
0570-8028505

24x7小时免费咨询

  • 官方在线客服

    QQ客服:小西

    点击交谈

    QQ客服:良子

    点击交谈

    QQ客服:闵月

    点击交谈
  • 衢州市柯城区财富中心3号楼2楼

  • 衢州格堂装饰有限公司

  • 扫一扫关注官方微信

    获取一手特惠信息

快速回复 返回顶部 返回列表