• 手机版

    扫码体验手机版

  • 微信公众号

    扫码关注公众号

登录注册
游客您好
第三方账号登陆

[衢州] 博纳雅苑7#350㎡日式—— 木质感,舒适而自然!

[复制链接]
发表于 2021-3-19 11:14:23 | 显示全部楼层 |阅读模式
木质感,舒适而自然!

格堂装饰为您全程记录装修全过程!

小区名称
博纳雅苑
房屋面积
350㎡
户型结构
排屋
装修风格
日式
装修方式
半包
装修造价
查看请联系客服万元
设计师
王工
项目经理
余工
装修公司
格堂装饰
完工实景
完工实景
水电全景
水电全景
VR全景
VR全景
设计说明
公共区域在白色的基底下,使用大量的木质元素从纹理自然的木地板到餐桌、木饰面,木材温润的色泽给空间带来质朴的舒适感,营造了一种悠然、放松的生活方式,增添室内的温暖与舒适。
更多信息

效果图
364d8894ebda478d03abf0230d30e43.jpg

31056bd5316625e8cafc2aaa24c369b.jpg
回复

使用道具 举报

 楼主| 发表于 2021-3-19 11:29:59 | 显示全部楼层
本帖最后由 格堂月红 于 2021-3-19 11:36 编辑

负二楼原始结构图
ad70eb63435efd92d7f1de24d580b19.jpg
负一楼原始结构图
43b87359b5211d902ee6b775cdcb874.jpg
一楼原始结构图
f3d23cc6723e19d4c2409e330fbc9d2.jpg
二楼原始结构图
1dfec84f8eab70dcb8dffee6fb208cb.jpg
三楼原始结构图
7f14ab6fecacb031a2c5c315140e736.jpg

回复 支持 反对

使用道具 举报

 楼主| 发表于 2021-3-19 11:42:31 | 显示全部楼层

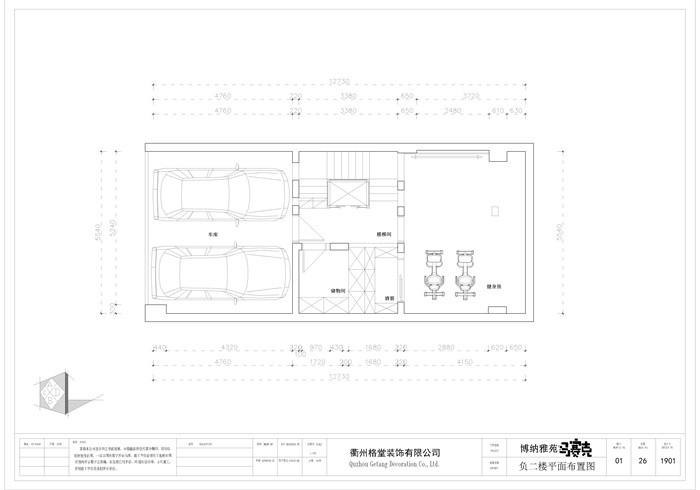
负二楼平面布置图
91fb6fc641b05ab0053045aadaf53aa.jpg
负一楼平面布置图
937f2bd3db9d2e7ba92b8dfd245be1f.jpg
一楼平面布置图
07aee9bfb3ba36793a79c3d4209de9e.jpg
二楼平面布置图
dab358ed6cbbfd991f76e07d8aee6fc.jpg
三楼平面布置图
95f80a8b3c18fb92e5a66e1aca6fd1a.jpg
回复 支持 反对

使用道具 举报

 楼主| 发表于 2021-3-19 11:44:07 | 显示全部楼层

开工前,大门已经保护到位。
IMG_20210317_055909.jpg
回复 支持 反对

使用道具 举报

 楼主| 发表于 2021-3-19 12:12:04 | 显示全部楼层

煤气表已经保护好了
IMG_20210317_055901.jpg
回复 支持 反对

使用道具 举报

 楼主| 发表于 2021-3-19 12:13:44 | 显示全部楼层

下水管用格堂专用保护盖保护,防止砂石堵塞管道。
IMG_20210317_055850.jpg

IMG_20210317_055853.jpg
回复 支持 反对

使用道具 举报

 楼主| 发表于 2021-3-19 12:14:31 | 显示全部楼层

临时马桶:每一个施工现场都会配备临时小便斗,并且时刻保持干净卫生、保证工地环境干净、整洁。
IMG_20210317_055847.jpg
回复 支持 反对

使用道具 举报

 楼主| 发表于 2021-3-19 12:17:15 | 显示全部楼层

开工锤已经准备好了。
IMG_20210317_055819.jpg
回复 支持 反对

使用道具 举报

 楼主| 发表于 2021-3-19 12:17:52 | 显示全部楼层

礼炮已经准备好了
IMG_20210317_055837.jpg
回复 支持 反对

使用道具 举报

 楼主| 发表于 2021-3-19 12:18:35 | 显示全部楼层

给业主大人送上美丽的鲜花。
IMG_20210317_055816.jpg
回复 支持 反对

使用道具 举报

您需要登录后才可以回帖 登录 | 立即注册

本版积分规则

全国统一客服电话
0570-8028505

24x7小时免费咨询

  • 官方在线客服

    QQ客服:小西

    点击交谈

    QQ客服:良子

    点击交谈

    QQ客服:闵月

    点击交谈
  • 衢州市柯城区财富中心3号楼2楼

  • 衢州格堂装饰有限公司

  • 扫一扫关注官方微信

    获取一手特惠信息

快速回复 返回顶部 返回列表