• 手机版

    扫码体验手机版

  • 微信公众号

    扫码关注公众号

登录注册
游客您好
第三方账号登陆

牡丹园7-3-6#161㎡现代——现代实木

[复制链接]
发表于 2021-2-24 09:08:19 | 显示全部楼层 |阅读模式
牡丹园7-3-6#161㎡现代——现代实木

格堂装饰实景完工案例欣赏!

小区名称
牡丹园
房屋面积
161㎡
户型结构
套房
装修风格
现代
装修方式
半包
装修造价
查看请联系客服万元
设计师
苏工
项目经理
周工
装修公司
格堂装饰
装修过程
装修日记
设计说明
业主对装修使用功能要求实用为主,需要足够大的淋浴房,足够久,足够多的热水洗澡。喜欢实木色的家具,喜欢亮堂的客餐厅。主卧需要有宽大的卧室,需要主卧能一键断电。女儿大学了,需要日式木色的家具,有一个美美的飘窗。设计上把阳台门给敲掉了,让空间感更强。
更多信息
7E1A5809.JPG


回复

使用道具 举报

 楼主| 发表于 2021-2-24 09:09:27 | 显示全部楼层

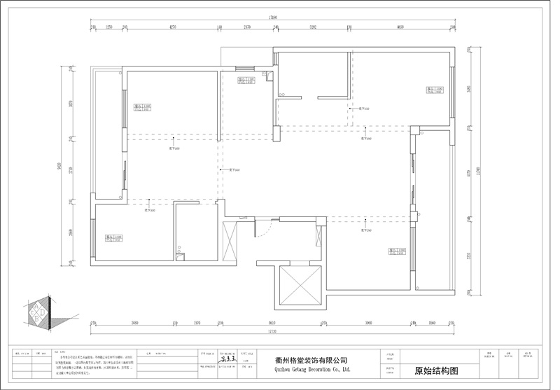
原始构图▼▼▼
144819un8o43m44jzvmkvo.jpg


回复 支持 反对

使用道具 举报

 楼主| 发表于 2021-2-24 09:09:53 | 显示全部楼层
平面布置图▼▼▼

144842yxl6qknf5tqxkv6m.jpg


回复 支持 反对

使用道具 举报

 楼主| 发表于 2021-2-24 09:10:29 | 显示全部楼层
客厅▼▼▼

7E1A5808.JPG

7E1A5807.JPG

7E1A5810.JPG

7E1A5811.JPG

7E1A5815.JPG

7E1A5812.JPG


回复 支持 反对

使用道具 举报

 楼主| 发表于 2021-2-24 09:11:13 | 显示全部楼层
玄关▼▼▼

7E1A5823.JPG


回复 支持 反对

使用道具 举报

 楼主| 发表于 2021-2-24 09:12:33 | 显示全部楼层
餐厅▼▼▼

7E1A5838.JPG

7E1A5839.JPG

7E1A5844.JPG


回复 支持 反对

使用道具 举报

 楼主| 发表于 2021-2-24 09:12:59 | 显示全部楼层
厨房▼▼▼

7E1A5836.JPG

7E1A5835.JPG

7E1A5834.JPG


回复 支持 反对

使用道具 举报

 楼主| 发表于 2021-2-24 09:13:55 | 显示全部楼层
次卫干区▼▼▼

7E1A5842.JPG

7E1A5841.JPG


回复 支持 反对

使用道具 举报

 楼主| 发表于 2021-2-24 09:14:37 | 显示全部楼层
主卧▼▼▼

7E1A5863.JPG

7E1A5861.JPG

7E1A5864.JPG


回复 支持 反对

使用道具 举报

 楼主| 发表于 2021-2-24 09:14:56 | 显示全部楼层
主卫▼▼▼

7E1A5865.JPG


回复 支持 反对

使用道具 举报

您需要登录后才可以回帖 登录 | 立即注册

本版积分规则

全国统一客服电话
0570-8028505

24x7小时免费咨询

  • 官方在线客服

    QQ客服:小西

    点击交谈

    QQ客服:良子

    点击交谈

    QQ客服:闵月

    点击交谈
  • 衢州市柯城区财富中心3号楼2楼

  • 衢州格堂装饰有限公司

  • 扫一扫关注官方微信

    获取一手特惠信息

快速回复 返回顶部 返回列表