• 手机版

    扫码体验手机版

  • 微信公众号

    扫码关注公众号

登录注册
游客您好
第三方账号登陆

[衢州] 衢州公馆12-2-10#136㎡现代中式——回归安静,享受自然本身的恬静

[复制链接]
发表于 2021-1-28 11:19:26 | 显示全部楼层 |阅读模式
回归安静,享受自然本身的恬静

格堂装饰为您全程记录装修全过程!

小区名称
衢州公馆
房屋面积
136㎡
户型结构
套房
装修风格
中式
装修方式
半包
装修造价
查看请联系客服万元
设计师
何工
项目经理
彭工
装修公司
格堂装饰
完工实景
完工实景
水电全景
水电全景
VR全景
VR全景
设计说明
现代的简约干练,中式的典雅,融合在空间的形态、细节里,优游自如。简约的空间,搭配自然的木饰面,禅意韵味的挂画、吊灯,在空间里自然融合,自然的木纹理营造了空间的质感,也塑造了空间的宁静感。
更多信息
本帖最后由 格堂月红 于 2021-8-23 13:45 编辑

效果图
5e5961582bb16d3afc2c2403f0c45ed.jpg

d44dcbb7f767221cf9d55bff55fbc6f.jpg

763cc1af6ea7cf5ed26885cbb33866f.jpg
开工
回复

使用道具 举报

 楼主| 发表于 2021-1-28 11:19:52 | 显示全部楼层

原始结构图
385b999486d487a9119f5faa7f52809.jpg
回复 支持 反对

使用道具 举报

 楼主| 发表于 2021-1-28 11:20:08 | 显示全部楼层

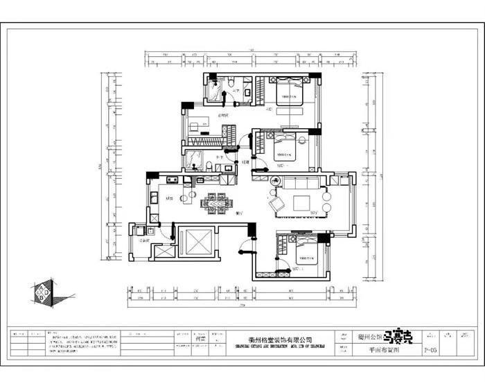
平面布置图
8e5d503ef69a3e63f3aedc7446b119e.jpg
回复 支持 反对

使用道具 举报

 楼主| 发表于 2021-1-28 11:22:00 | 显示全部楼层

项目经理、设计师正在布置开工桌。
IMG_20210122_084440.jpg

IMG_20210122_084524.jpg

IMG_20210122_084609.jpg
回复 支持 反对

使用道具 举报

 楼主| 发表于 2021-1-28 11:22:39 | 显示全部楼层

礼炮已经准备好了
IMG_20210122_084513.jpg
回复 支持 反对

使用道具 举报

 楼主| 发表于 2021-1-28 11:23:08 | 显示全部楼层

开工锤已经准备好了。
IMG_20210122_084630.jpg
回复 支持 反对

使用道具 举报

 楼主| 发表于 2021-1-28 11:23:50 | 显示全部楼层

临时马桶:每一个施工现场都会配备临时小便斗,并且时刻保持干净卫生、保证工地环境干净、整洁。
IMG_20210122_084903.jpg
回复 支持 反对

使用道具 举报

 楼主| 发表于 2021-1-28 11:24:45 | 显示全部楼层

下水管用格堂专用保护盖保护,防止砂石堵塞管道。
IMG_20210122_085254.jpg

IMG_20210122_085258.jpg

IMG_20210122_085304.jpg

IMG_20210122_085317.jpg
回复 支持 反对

使用道具 举报

 楼主| 发表于 2021-1-28 11:25:17 | 显示全部楼层

煤气表已经保护到位。
IMG_20210122_085320.jpg
回复 支持 反对

使用道具 举报

 楼主| 发表于 2021-1-28 11:26:22 | 显示全部楼层

配电箱盖拆下来了,请业主带回去保管,后期还要拿回来安装的哦
IMG_20210122_084917.jpg

IMG_20210122_085328.jpg
回复 支持 反对

使用道具 举报

您需要登录后才可以回帖 登录 | 立即注册

本版积分规则

全国统一客服电话
0570-8028505

24x7小时免费咨询

  • 官方在线客服

    QQ客服:小西

    点击交谈

    QQ客服:良子

    点击交谈

    QQ客服:闵月

    点击交谈
  • 衢州市柯城区财富中心3号楼2楼

  • 衢州格堂装饰有限公司

  • 扫一扫关注官方微信

    获取一手特惠信息

快速回复 返回顶部 返回列表