• 手机版

    扫码体验手机版

  • 微信公众号

    扫码关注公众号

登录注册
游客您好
第三方账号登陆

[衢州] 玫瑰园28-#380㎡现代轻奢——轻奢笔触

[复制链接]
发表于 2021-1-23 15:35:20 | 显示全部楼层 |阅读模式
轻奢笔触

格堂装饰为您全程记录装修全过程!

小区名称
玫瑰园
房屋面积
385㎡
户型结构
排屋
装修风格
现代轻奢
装修方式
半包
装修造价
查看请联系客服万元
设计师
王工
项目经理
周工
装修公司
格堂装饰
完工实景
完工实景
水电全景
水电全景
VR全景
VR全景
设计说明
家承载着主人对于生活期许,
我们选用浅色纹理背景墙、
雅致的白金与浅色的基调挑起了空间的韵律美感,
于光和影的对话里,散发空间的魅力。
硬装以现代轻奢风格为基础,
通过一些线条和石材的元素来凸显质感,
同时也浓缩着意想不到的功能与细节,
从而彰显了一种高品质的生活方式
更多信息
本帖最后由 格堂小范 于 2021-1-23 16:24 编辑


回复

使用道具 举报

 楼主| 发表于 2021-1-23 15:39:35 | 显示全部楼层
效果图


微信图片_20210123151832.jpg


微信图片_20210123152237.jpg


微信图片_20210123152241.jpg


微信图片_20210123152244.jpg


微信图片_20210123152248.jpg
回复 支持 反对

使用道具 举报

 楼主| 发表于 2021-1-23 15:40:04 | 显示全部楼层
原始结构图


微信图片_20210123152258.png


微信图片_20210123152251.png


微信图片_20210123152301.png


微信图片_20210123152304.png


微信图片_20210123152307.png
回复 支持 反对

使用道具 举报

 楼主| 发表于 2021-1-23 15:40:30 | 显示全部楼层
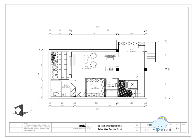
平面布置图


微信图片_20210123152254.png


微信图片_20210123152311.png
回复 支持 反对

使用道具 举报

 楼主| 发表于 2021-1-31 10:33:31 | 显示全部楼层
本帖最后由 格堂小范 于 2021-1-31 10:34 编辑

墙面铲灰,是为了防止墙体出现空鼓,在做好油漆后,不会有墙体整块油漆脱落的现象

IMG_20210126_095710.jpg

IMG_20210126_095718.jpg


IMG_20210126_095722.jpg


IMG_20210126_095739.jpg


IMG_20210126_095734.jpg
回复 支持 反对

使用道具 举报

 楼主| 发表于 2021-1-31 10:35:36 | 显示全部楼层
拆改阶段


IMG_20210126_095742.jpg

IMG_20210126_095744.jpg


IMG_20210126_095747.jpg


IMG_20210126_095752.jpg


IMG_20210126_095755.jpg
回复 支持 反对

使用道具 举报

 楼主| 发表于 2021-1-31 10:35:59 | 显示全部楼层



IMG_20210126_095812.jpg

IMG_20210126_095757.jpg


IMG_20210126_095816.jpg


IMG_20210126_095818.jpg


楼梯拆改
IMG_20210126_095800.jpg

回复 支持 反对

使用道具 举报

 楼主| 发表于 2021-1-31 10:36:30 | 显示全部楼层
墙面铲灰


IMG_20210126_095823.jpg


IMG_20210126_095819.jpg


IMG_20210126_095829.jpg



IMG_20210126_095830.jpg


IMG_20210126_095832.jpg
回复 支持 反对

使用道具 举报

 楼主| 发表于 2021-1-31 10:40:00 | 显示全部楼层
IMG_20210126_095842.jpg
回复 支持 反对

使用道具 举报

 楼主| 发表于 2021-3-25 10:41:43 | 显示全部楼层
钢筋铺设

mmexport1616381396621.jpg

mmexport1616381400441.jpg


mmexport1616381394338.jpg


mmexport1616381405220.jpg


mmexport1616381407869.jpg
回复 支持 反对

使用道具 举报

您需要登录后才可以回帖 登录 | 立即注册

本版积分规则

全国统一客服电话
0570-8028505

24x7小时免费咨询

  • 官方在线客服

    QQ客服:小西

    点击交谈

    QQ客服:良子

    点击交谈

    QQ客服:闵月

    点击交谈
  • 衢州市柯城区财富中心3号楼2楼

  • 衢州格堂装饰有限公司

  • 扫一扫关注官方微信

    获取一手特惠信息

快速回复 返回顶部 返回列表