[衢州] 衢州公馆10-5#115㎡现代—— 银河幻想 |
|
银河幻想
格堂装饰为您全程记录装修全过程! 设计说明
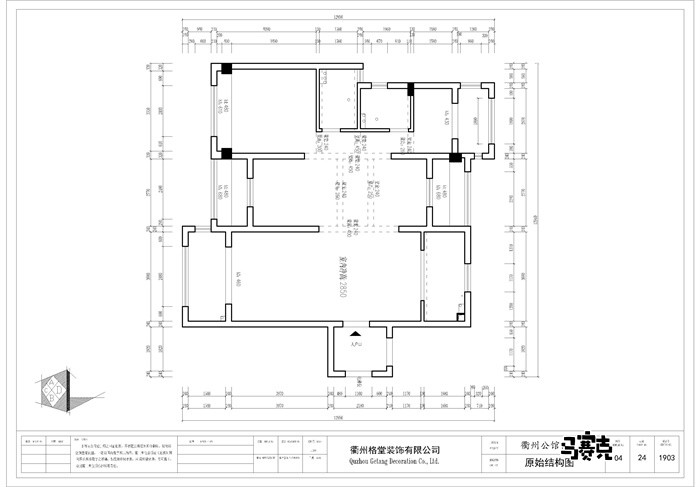
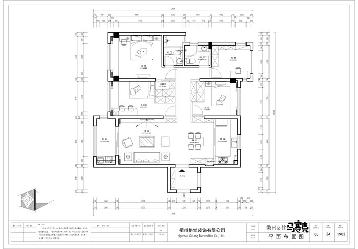
保留了原先四房的格局,将北面一间房改为书房,划分出了功能区域,又增加了储物空间。
朝南的两间房保留了原有的飘窗,因为飘窗占用了部分空间,家具的摆放就显得特别讲究。 主卧的书桌延伸至飘窗台上,完美融合了收纳休闲区域。 过道利用了墙体做了一组储物柜,原本狭长的过道视觉感丰富了很多。 南北通透的客餐厅,简单的大理石背景融合了装饰柜,灯光效果合理。黑白灰色系和实木的碰撞,打造出了现代主义的精髓。金属元素的参与让整个空间不会太单调。 更多信息
| |


在线客服
微信客服
关注有礼