• 手机版

    扫码体验手机版

  • 微信公众号

    扫码关注公众号

登录注册
游客您好
第三方账号登陆

[龙游] 印江南16#11#253㎡ -延伸·引景 意式极简

[复制链接]
发表于 2021-1-21 09:24:02 | 显示全部楼层 |阅读模式
意式极简

格堂装饰为您全程记录装修全过程!

小区名称
印江南
房屋面积
253㎡
户型结构
复式
装修风格
意式极简
装修方式
半包
装修造价
查看请联系客服万元
设计师
叶工
项目经理
杨工
装修公司
格堂装饰
完工实景
完工实景
水电全景
水电全景
VR全景
VR全景
设计说明
引用意式极简风格,空间材质以木饰面,格栅板,烤漆护墙板板,岩板等材料,试图打造温馨、轻松、自然的生活场景
客餐厅设计中,为了能从客厅视野延伸到餐厅,设计师在电视背景上做了上下通透设计方式,功能与美学并存。
更多信息
本帖最后由 格堂小静 于 2021-1-30 12:39 编辑


原始结构图


IMG_9581.JPG












IMG_9585.JPG






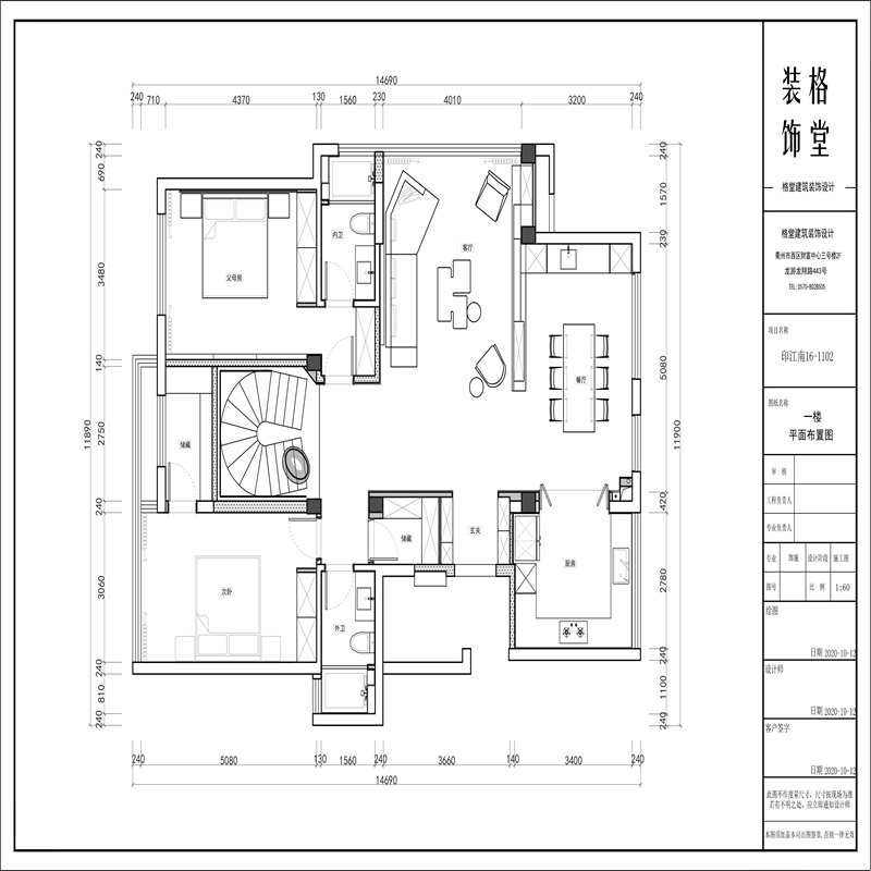
平面设计图



IMG_9584.JPG



IMG_9586.JPG




效果图



IMG_9587.JPG


IMG_9588.JPG



IMG_9589.JPG



IMG_9590.JPG






回复

使用道具 举报

 楼主| 发表于 2021-1-21 09:28:44 | 显示全部楼层


所有玻璃窗做好保护,防尘


IMG_8749.JPG


IMG_8750.JPG



IMG_8752.JPG



回复 支持 反对

使用道具 举报

 楼主| 发表于 2021-1-21 09:29:03 | 显示全部楼层




IMG_8753.JPG


IMG_8754.JPG



回复 支持 反对

使用道具 举报

 楼主| 发表于 2021-1-21 09:29:46 | 显示全部楼层


下水管道做好保护,防止沙石阻塞


IMG_8758.JPG


IMG_8757.JPG


IMG_8756.JPG



回复 支持 反对

使用道具 举报

 楼主| 发表于 2021-1-21 09:30:24 | 显示全部楼层


煤气表做好保护,防止磕碰受损

IMG_8759.JPG


IMG_8760.JPG



回复 支持 反对

使用道具 举报

 楼主| 发表于 2021-1-21 09:31:00 | 显示全部楼层


电梯入户门做好保护,防止磕碰受损

IMG_8761.JPG


IMG_8762.JPG



回复 支持 反对

使用道具 举报

 楼主| 发表于 2021-1-21 09:31:14 | 显示全部楼层



IMG_8764.JPG
回复 支持 反对

使用道具 举报

 楼主| 发表于 2021-1-21 09:31:27 | 显示全部楼层



IMG_8767.JPG
回复 支持 反对

使用道具 举报

 楼主| 发表于 2021-1-21 09:31:41 | 显示全部楼层




IMG_8768.JPG
回复 支持 反对

使用道具 举报

 楼主| 发表于 2021-1-21 09:32:24 | 显示全部楼层



IMG_8779.JPG



IMG_8777.JPG




回复 支持 反对

使用道具 举报

您需要登录后才可以回帖 登录 | 立即注册

本版积分规则

全国统一客服电话
0570-8028505

24x7小时免费咨询

  • 官方在线客服

    QQ客服:小西

    点击交谈

    QQ客服:良子

    点击交谈

    QQ客服:闵月

    点击交谈
  • 衢州市柯城区财富中心3号楼2楼

  • 衢州格堂装饰有限公司

  • 扫一扫关注官方微信

    获取一手特惠信息

快速回复 返回顶部 返回列表