• 手机版

    扫码体验手机版

  • 微信公众号

    扫码关注公众号

登录注册
游客您好
第三方账号登陆

[龙游] 碧桂园2-2#143㎡现代简约——空灵

[复制链接]
发表于 2021-1-15 10:06:32 | 显示全部楼层 |阅读模式
空灵

格堂装饰为您全程记录装修全过程!

小区名称
碧桂园
房屋面积
143㎡
户型结构
套房
装修风格
现代
装修方式
全包
装修造价
查看请联系客服万元
设计师
吴工
项目经理
杨工
装修公司
格堂装饰
完工实景
完工实景
水电全景
水电全景
VR全景
VR全景
设计说明
本案全屋家具选用的是造作家具‘美术馆’系列,以“轻设计”、“轻女性”为关键词。硬装以白色为主色调,而全系家具以明艳配色,提取自季节转变的风景画,春夏生机、秋日浓烈,让背景柜体成为空间主角,增添了整个空间的灵动感。再美术馆家居系列奠定整个空间的基调上,我所搭配的软装也是使整个空间更加丰富及温馨。
更多信息
原始结构图

图片1.png
回复

使用道具 举报

 楼主| 发表于 2021-1-15 10:07:02 | 显示全部楼层
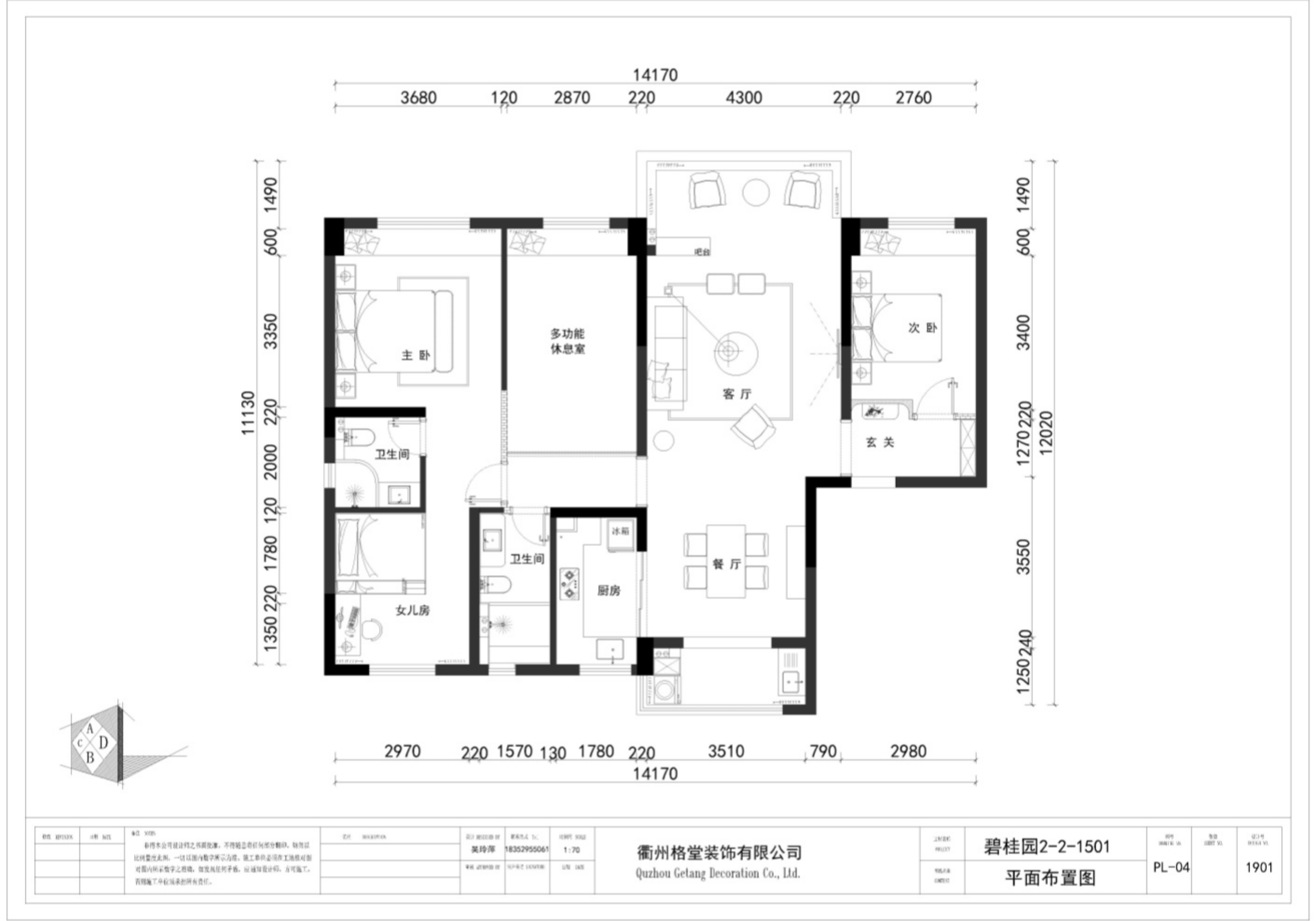
平面布置图


回复 支持 反对

使用道具 举报

 楼主| 发表于 2021-1-15 10:07:02 | 显示全部楼层
平面布置图

图片2.png
回复 支持 反对

使用道具 举报

 楼主| 发表于 2021-1-15 10:14:29 | 显示全部楼层
效果图

图片3.png
图片4.png
回复 支持 反对

使用道具 举报

 楼主| 发表于 2021-1-15 10:15:10 | 显示全部楼层
A煤气表做好保护,防止磕碰受损

IMG_7346.JPG
回复 支持 反对

使用道具 举报

 楼主| 发表于 2021-1-15 10:15:26 | 显示全部楼层
IMG_7347.JPG
回复 支持 反对

使用道具 举报

 楼主| 发表于 2021-1-15 10:15:47 | 显示全部楼层
IMG_7348.JPG

IMG_7352.JPG
回复 支持 反对

使用道具 举报

 楼主| 发表于 2021-1-15 10:16:07 | 显示全部楼层
IMG_7353.JPG

IMG_7354.JPG
回复 支持 反对

使用道具 举报

 楼主| 发表于 2021-1-15 10:16:25 | 显示全部楼层
IMG_7355.JPG
回复 支持 反对

使用道具 举报

 楼主| 发表于 2021-1-15 10:16:50 | 显示全部楼层



回复 支持 反对

使用道具 举报

您需要登录后才可以回帖 登录 | 立即注册

本版积分规则

全国统一客服电话
0570-8028505

24x7小时免费咨询

  • 官方在线客服

    QQ客服:小西

    点击交谈

    QQ客服:良子

    点击交谈

    QQ客服:闵月

    点击交谈
  • 衢州市柯城区财富中心3号楼2楼

  • 衢州格堂装饰有限公司

  • 扫一扫关注官方微信

    获取一手特惠信息

快速回复 返回顶部 返回列表