• 手机版

    扫码体验手机版

  • 微信公众号

    扫码关注公众号

登录注册
游客您好
第三方账号登陆

[衢州] 观棠府39-1-11#179㎡ 新中式——疏影

[复制链接]
发表于 2021-1-14 16:49:36 | 显示全部楼层 |阅读模式
疏影

格堂装饰为您全程记录装修全过程!

小区名称
观棠府
房屋面积
179㎡
户型结构
套房
装修风格
新中式
装修方式
半包
装修造价
查看请联系客服万元
设计师
韩工
项目经理
余工
装修公司
格堂装饰
完工实景
完工实景
水电全景
水电全景
VR全景
VR全景
设计说明
门外是人间烟火,门里是闲情雅致。用简约的设计手法将纯、雅古代美学的独特风貌融入都市的生活,两个时代的重叠开启一场关于时空的对话。
更多信息
本帖最后由 格堂飞飞 于 2021-5-22 15:05 编辑

效果图
IMG_0454.JPG

IMG_0455.JPG
回复

使用道具 举报

 楼主| 发表于 2021-1-14 16:50:34 | 显示全部楼层

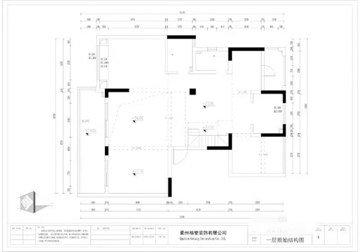
原始结构图
IMG_0450.JPG

IMG_0452.JPG
回复 支持 反对

使用道具 举报

 楼主| 发表于 2021-1-14 16:51:12 | 显示全部楼层
本帖最后由 格堂飞飞 于 2021-1-29 08:30 编辑

平面布置图
IMG_0451.JPG

IMG_0453.JPG
回复 支持 反对

使用道具 举报

 楼主| 发表于 2021-1-14 16:53:01 | 显示全部楼层

电梯间墙面和地面保护到位,防止磕碰哦!
IMG_8744.JPG

IMG_8740.JPG

IMG_8748.JPG
回复 支持 反对

使用道具 举报

 楼主| 发表于 2021-1-14 16:53:55 | 显示全部楼层

电梯间
IMG_8741.JPG

IMG_8745.JPG

IMG_8743.JPG

IMG_8747.JPG
回复 支持 反对

使用道具 举报

 楼主| 发表于 2021-1-14 16:55:33 | 显示全部楼层

开工前大门也要,保护到位,防止磕碰哦!
IMG_8749.JPG
门槛也保护到位,防止磕碰哦!
IMG_8742.JPG
回复 支持 反对

使用道具 举报

 楼主| 发表于 2021-1-14 16:57:29 | 显示全部楼层

煤气表也要保护起来,防止磕碰。
IMG_8750.JPG
回复 支持 反对

使用道具 举报

 楼主| 发表于 2021-1-14 16:58:37 | 显示全部楼层

临时马桶安装到位,方便师傅使用,要讲究卫生哦!
IMG_8753.JPG
回复 支持 反对

使用道具 举报

 楼主| 发表于 2021-1-14 16:59:38 | 显示全部楼层

水管用格堂专用保护盖保护,防止砂石堵塞管道。

IMG_8751.JPG

IMG_8754.JPG
回复 支持 反对

使用道具 举报

 楼主| 发表于 2021-1-14 17:00:47 | 显示全部楼层

开工前配电箱面板,先要拆除,防止磕碰破损。
IMG_8757.JPG

IMG_8758.JPG
回复 支持 反对

使用道具 举报

您需要登录后才可以回帖 登录 | 立即注册

本版积分规则

全国统一客服电话
0570-8028505

24x7小时免费咨询

  • 官方在线客服

    QQ客服:小西

    点击交谈

    QQ客服:良子

    点击交谈

    QQ客服:闵月

    点击交谈
  • 衢州市柯城区财富中心3号楼2楼

  • 衢州格堂装饰有限公司

  • 扫一扫关注官方微信

    获取一手特惠信息

快速回复 返回顶部 返回列表