• 手机版

    扫码体验手机版

  • 微信公众号

    扫码关注公众号

登录注册
游客您好
第三方账号登陆

[衢州] 国金旭辉城19-1-2#99现代轻奢 ——向往的生活

[复制链接]
发表于 2021-1-8 10:42:51 | 显示全部楼层 |阅读模式
向往的生活

格堂装饰为您全程记录装修全过程!

小区名称
国金旭辉城
房屋面积
99㎡
户型结构
套房
装修风格
现代轻奢
装修方式
半包
装修造价
查看请联系客服万元
设计师
王工
项目经理
胡工
装修公司
格堂装饰
完工实景
完工实景
水电全景
水电全景
VR全景
VR全景
设计说明
设计强调了人在空间的舒适、实用,并将当代人的审美完美融合,营造出温馨时尚的新派家居。
更多信息
更多信息

效果图
IMG_8895.JPG

IMG_8896.JPG
回复

使用道具 举报

 楼主| 发表于 2021-1-8 10:43:27 | 显示全部楼层

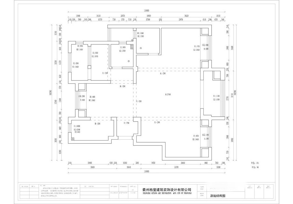
原始结构图
IMG_8893.JPG
回复 支持 反对

使用道具 举报

 楼主| 发表于 2021-1-8 10:44:07 | 显示全部楼层

平面布置。
IMG_8894.JPG
回复 支持 反对

使用道具 举报

 楼主| 发表于 2021-1-8 11:01:36 | 显示全部楼层
本帖最后由 格堂飞飞 于 2021-1-8 11:03 编辑

项目经理正在做,开工前的准备工作。
IMG_7250.JPG

IMG_7259.JPG

IMG_7253.JPG
回复 支持 反对

使用道具 举报

 楼主| 发表于 2021-1-8 11:03:12 | 显示全部楼层

开工前大门,先要保护起来,防止磕碰哦!
IMG_7269.JPG

IMG_7274.JPG

IMG_7281.JPG
回复 支持 反对

使用道具 举报

 楼主| 发表于 2021-1-8 11:05:32 | 显示全部楼层

门槛也保护到位,防止磕碰哦!
IMG_7282.JPG
回复 支持 反对

使用道具 举报

 楼主| 发表于 2021-1-8 11:09:08 | 显示全部楼层

水管用格堂专用保护盖保护,防止砂石堵塞管道。

IMG_7264.JPG

IMG_7265.JPG
回复 支持 反对

使用道具 举报

 楼主| 发表于 2021-1-8 11:10:09 | 显示全部楼层

临时马桶安装到位,方便师傅使用,要讲究卫生哦!
IMG_7267.JPG

IMG_7268.JPG
回复 支持 反对

使用道具 举报

 楼主| 发表于 2021-1-8 11:11:27 | 显示全部楼层

一切准备就绪,就等开工吉时啦!
IMG_7263.JPG

IMG_7260.JPG

IMG_7262.JPG
回复 支持 反对

使用道具 举报

 楼主| 发表于 2021-1-8 11:12:28 | 显示全部楼层

吉时已到,恭祝业主大人,开工大吉!
IMG_7276.JPG
回复 支持 反对

使用道具 举报

您需要登录后才可以回帖 登录 | 立即注册

本版积分规则

全国统一客服电话
0570-8028505

24x7小时免费咨询

  • 官方在线客服

    QQ客服:小西

    点击交谈

    QQ客服:良子

    点击交谈

    QQ客服:闵月

    点击交谈
  • 衢州市柯城区财富中心3号楼2楼

  • 衢州格堂装饰有限公司

  • 扫一扫关注官方微信

    获取一手特惠信息

快速回复 返回顶部 返回列表