• 手机版

    扫码体验手机版

  • 微信公众号

    扫码关注公众号

登录注册
游客您好
第三方账号登陆

[衢州] 国金旭辉城7-2-1#200㎡ 现代新中式——年

[复制链接]
发表于 2021-1-8 08:52:10 | 显示全部楼层 |阅读模式

格堂装饰为您全程记录装修全过程!

小区名称
国金旭辉城
房屋面积
200㎡
户型结构
复式
装修风格
新中式
装修方式
半包
装修造价
查看请联系客服万元
设计师
何工
项目经理
胡工
装修公司
格堂装饰
完工实景
完工实景
水电全景
水电全景
VR全景
VR全景
设计说明
梨花院落溶溶月,柳絮池塘淡淡风。爆竹声声辞旧岁,红梅朵朵迎新春。家,不仅仅是一所房子,它更是连接亲情的载体,也是精神世界和艺术品位的具象体现。所以我们才愿意花大把的时间和精力去营造一种摸不着却看得见的风格和氛围,然后享受它给我们带来的生活的舒适和精神上的满足。
更多信息

效果图
dd27fb83b6e5412932a5b62e8991c14.png

eb0992539e613e9d668666b0ff9b684.png
回复

使用道具 举报

 楼主| 发表于 2021-1-8 08:52:44 | 显示全部楼层
本帖最后由 格堂月红 于 2021-1-8 08:59 编辑

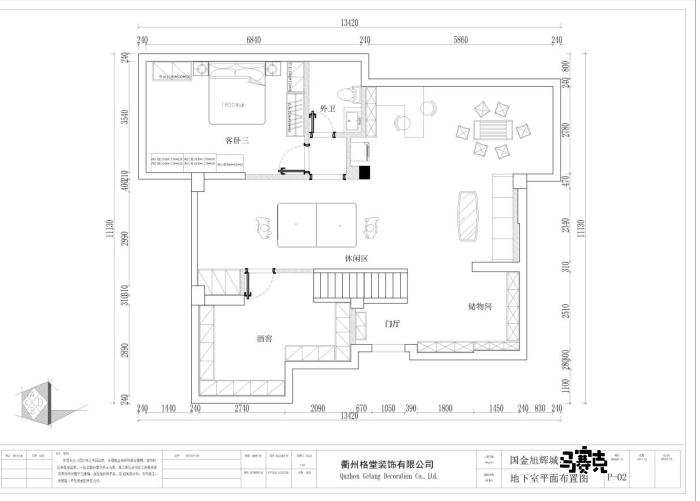
地下室原始结构图
0980dc2a72a58a668529a29c6427da0.png
地下室平面布置图
b9dd5d48883afc258d747591e573e94.png
回复 支持 反对

使用道具 举报

 楼主| 发表于 2021-1-8 08:54:07 | 显示全部楼层
本帖最后由 格堂月红 于 2021-1-8 09:00 编辑

一楼原始结构图
fc59978628b619970273ea12676a077.png
一楼平面布置图
b795dd442f41352099b57c68d6ef98a.png
回复 支持 反对

使用道具 举报

 楼主| 发表于 2021-1-8 09:01:32 | 显示全部楼层

开工前大门已经保护到位。
IMG_20210104_094701.jpg

IMG_20210104_094706.jpg
回复 支持 反对

使用道具 举报

 楼主| 发表于 2021-1-8 09:02:15 | 显示全部楼层

门槛已经保护好了
IMG_20210104_094025.jpg
回复 支持 反对

使用道具 举报

 楼主| 发表于 2021-1-8 09:04:05 | 显示全部楼层

临时马桶:每一个施工现场都会配备临时小便斗,并且时刻保持干净卫生、保证工地环境干净、整洁。
IMG_20210104_094052.jpg
回复 支持 反对

使用道具 举报

 楼主| 发表于 2021-1-8 09:05:08 | 显示全部楼层

下水管用格堂专用保护盖保护,防止砂石堵塞管道。
IMG_20210104_094033.jpg

IMG_20210104_094038.jpg

IMG_20210104_094050.jpg
回复 支持 反对

使用道具 举报

 楼主| 发表于 2021-1-8 09:06:06 | 显示全部楼层

礼炮已经准备好了
IMG_20210104_094205.jpg
回复 支持 反对

使用道具 举报

 楼主| 发表于 2021-1-8 09:06:30 | 显示全部楼层

开工锤已经准备好了
IMG_20210104_094438.jpg
回复 支持 反对

使用道具 举报

 楼主| 发表于 2021-1-8 09:06:58 | 显示全部楼层

一切准备就绪,就等吉时!
IMG_20210104_094827.jpg
回复 支持 反对

使用道具 举报

您需要登录后才可以回帖 登录 | 立即注册

本版积分规则

全国统一客服电话
0570-8028505

24x7小时免费咨询

  • 官方在线客服

    QQ客服:小西

    点击交谈

    QQ客服:良子

    点击交谈

    QQ客服:闵月

    点击交谈
  • 衢州市柯城区财富中心3号楼2楼

  • 衢州格堂装饰有限公司

  • 扫一扫关注官方微信

    获取一手特惠信息

快速回复 返回顶部 返回列表