• 手机版

    扫码体验手机版

  • 微信公众号

    扫码关注公众号

登录注册
游客您好
第三方账号登陆

[开化] 中梁望府21#200㎡新中式--望·居

[复制链接]
发表于 2020-12-30 11:15:11 | 显示全部楼层 |阅读模式
中梁望府21#200㎡新中式--望·居

格堂装饰为您全程记录装修全过程!

小区名称
中梁望府
房屋面积
200㎡
户型结构
复式
装修风格
新中式
装修方式
半包
装修造价
查看请联系客服万元
设计师
蒋工
项目经理
童工
装修公司
格堂装饰
完工实景
完工实景
水电全景
水电全景
VR全景
VR全景
设计说明
黑白灰的现代色调与东方审美格调的恰当融合,既符合现代都市人群的生活方式,
又不失传统国人的审美方式。既有黑白灰的现代色调,又有古韵国风的样式韵味。
更多信息

效果图
L3D124S21ENDIL2V4WVSGEN2GLUF3P3XY888_4000x3000.jpg

L3D124S21ENDIL2V4WVSGEN2GLUF3P3X6888_4000x3000.jpg
回复

使用道具 举报

 楼主| 发表于 2021-1-12 14:16:56 | 显示全部楼层

原始结构图
1F结构图_副本.png

2F结构图_副本.png
回复 支持 反对

使用道具 举报

 楼主| 发表于 2021-1-12 14:17:25 | 显示全部楼层

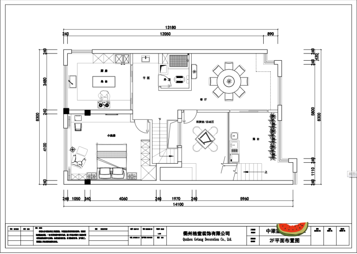
平面布置图
1F布置图_副本.png

2F布置图_副本.png
回复 支持 反对

使用道具 举报

 楼主| 发表于 2021-1-12 14:18:40 | 显示全部楼层

开工桌、开工花布置好了
IMG_5527.JPG

IMG_5528.JPG

IMG_5567.JPG
回复 支持 反对

使用道具 举报

 楼主| 发表于 2021-1-12 14:20:24 | 显示全部楼层

四大工种的施工规范牌,同样展示到位,方便检查和验收。进度控制表,使工地进度按预定的目标进行,确保按期完工。施工铭牌上标示着设计师、项目经理、施工工人的姓名和电话,方便业主随时监督。
IMG_5568.JPG

IMG_5569.JPG

IMG_5570.JPG

IMG_5571.JPG
回复 支持 反对

使用道具 举报

 楼主| 发表于 2021-1-12 14:21:31 | 显示全部楼层

门口及电梯保护
IMG_5604.JPG

IMG_5606.JPG

IMG_5605.JPG
回复 支持 反对

使用道具 举报

 楼主| 发表于 2021-1-12 14:22:34 | 显示全部楼层

水管用格堂专用保护盖保护,防止砂石堵塞管道
IMG_4289.JPG

IMG_4290.JPG

IMG_4291.JPG

IMG_4292.JPG
回复 支持 反对

使用道具 举报

 楼主| 发表于 2021-1-12 14:23:31 | 显示全部楼层

大门保护、电梯保护、地面保护,防止后期磕碰到
IMG_4293.JPG

IMG_4295.JPG

IMG_4294.JPG
回复 支持 反对

使用道具 举报

 楼主| 发表于 2021-1-12 14:24:15 | 显示全部楼层

大门保护
IMG_4288.JPG
回复 支持 反对

使用道具 举报

 楼主| 发表于 2021-1-12 14:29:59 | 显示全部楼层

吉时到,我们开工了啦
IMG_5575_副本.jpg
回复 支持 反对

使用道具 举报

您需要登录后才可以回帖 登录 | 立即注册

本版积分规则

全国统一客服电话
0570-8028505

24x7小时免费咨询

  • 官方在线客服

    QQ客服:小西

    点击交谈

    QQ客服:良子

    点击交谈

    QQ客服:闵月

    点击交谈
  • 衢州市柯城区财富中心3号楼2楼

  • 衢州格堂装饰有限公司

  • 扫一扫关注官方微信

    获取一手特惠信息

快速回复 返回顶部 返回列表