• 手机版

    扫码体验手机版

  • 微信公众号

    扫码关注公众号

登录注册
游客您好
第三方账号登陆

[衢州] 观棠府29-2-2#160㎡ 现代小法——不予解释

[复制链接]
发表于 2020-12-26 17:04:16 | 显示全部楼层 |阅读模式
不予解释

格堂装饰为您全程记录装修全过程!

小区名称
观棠府
房屋面积
160㎡
户型结构
复式
装修风格
现代
装修方式
半包
装修造价
查看请联系客服万元
设计师
胡工
项目经理
彭工
装修公司
格堂装饰
完工实景
完工实景
水电全景
水电全景
VR全景
VR全景
设计说明
设计理念:家、不是迎合想象中的样子,是应和真正需要的状态,一个属于自己,独一无二的平衡点。
更多信息
本帖最后由 格堂飞飞 于 2021-2-4 12:01 编辑

效果图
IMG_6191.JPG

IMG_6192.JPG
回复

使用道具 举报

 楼主| 发表于 2020-12-26 17:06:32 | 显示全部楼层
本帖最后由 格堂飞飞 于 2021-2-4 12:01 编辑

原始结构图
IMG_6193.JPG
IMG_6461.JPG

回复 支持 反对

使用道具 举报

 楼主| 发表于 2020-12-26 17:07:44 | 显示全部楼层
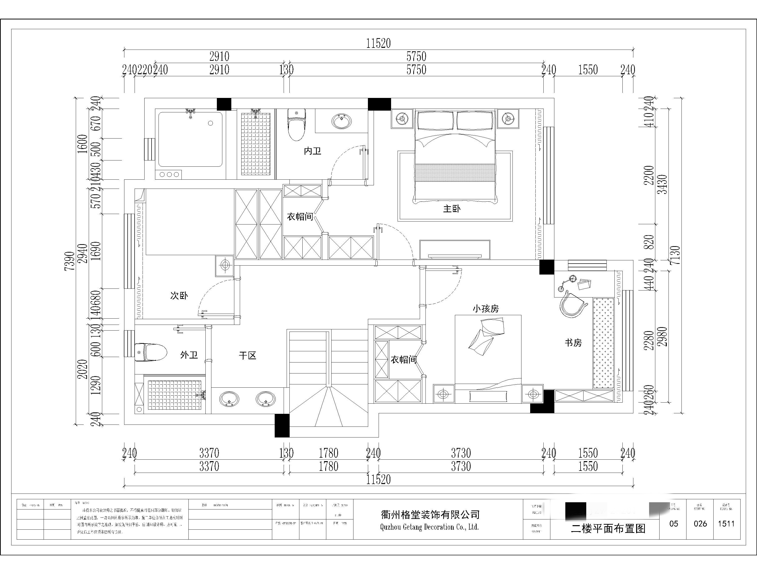
本帖最后由 格堂飞飞 于 2020-12-27 12:03 编辑

平面布置图
IMG_6197.JPG

IMG_6466.JPG
回复 支持 反对

使用道具 举报

 楼主| 发表于 2020-12-26 17:13:22 | 显示全部楼层

师傅正在大门保护,开工前大门先要保护起来,防止磕碰哦!
IMG_6152.JPG

IMG_6154.JPG
回复 支持 反对

使用道具 举报

 楼主| 发表于 2020-12-27 10:53:16 | 显示全部楼层

煤气表也要保护起来,防止磕碰哦!
IMG_6158.JPG
回复 支持 反对

使用道具 举报

 楼主| 发表于 2020-12-27 10:55:38 | 显示全部楼层

水管用格堂专用保护盖保护,防止砂石堵塞管道。

IMG_6159.JPG
回复 支持 反对

使用道具 举报

 楼主| 发表于 2020-12-27 10:56:51 | 显示全部楼层

临时马桶安装到位,要讲究卫生哦!
IMG_6160.JPG
回复 支持 反对

使用道具 举报

 楼主| 发表于 2020-12-27 10:58:41 | 显示全部楼层

一切准备就绪,就等开工吉时啦!
IMG_6156.JPG
回复 支持 反对

使用道具 举报

 楼主| 发表于 2020-12-27 11:00:30 | 显示全部楼层

设计图纸需要业主签字认可。
IMG_6162.JPG
回复 支持 反对

使用道具 举报

 楼主| 发表于 2020-12-27 11:01:50 | 显示全部楼层

吉时已到,恭祝业主大人,开工大吉!
IMG_6166.JPG
回复 支持 反对

使用道具 举报

您需要登录后才可以回帖 登录 | 立即注册

本版积分规则

全国统一客服电话
0570-8028505

24x7小时免费咨询

  • 官方在线客服

    QQ客服:小西

    点击交谈

    QQ客服:良子

    点击交谈

    QQ客服:闵月

    点击交谈
  • 衢州市柯城区财富中心3号楼2楼

  • 衢州格堂装饰有限公司

  • 扫一扫关注官方微信

    获取一手特惠信息

快速回复 返回顶部 返回列表