• 手机版

    扫码体验手机版

  • 微信公众号

    扫码关注公众号

登录注册
游客您好
第三方账号登陆

[衢州] 德信·君宸11-4-30-#84㎡ 现代—-和煦

[复制链接]
发表于 2020-12-9 16:47:10 | 显示全部楼层 |阅读模式
和煦

格堂装饰为您全程记录装修全过程!

小区名称
德信·君宸
房屋面积
84㎡
户型结构
套房
装修风格
现代
装修方式
半包
装修造价
查看请联系客服万元
设计师
童工
项目经理
周工
装修公司
格堂装饰
完工实景
完工实景
水电全景
水电全景
VR全景
VR全景
设计说明
将简约温柔的造型与深沉细腻美学结合,
所谓风格只是归纳大纲,不应局限于形式,
真正的灵魂在于他们带来的不同氛围感,
融合彼此带来的空间感。
更多信息

回复

使用道具 举报

 楼主| 发表于 2020-12-9 16:47:37 | 显示全部楼层
效果图


微信图片_20201209164620.jpg


微信图片_20201209164623.jpg
回复 支持 反对

使用道具 举报

 楼主| 发表于 2020-12-9 16:47:57 | 显示全部楼层
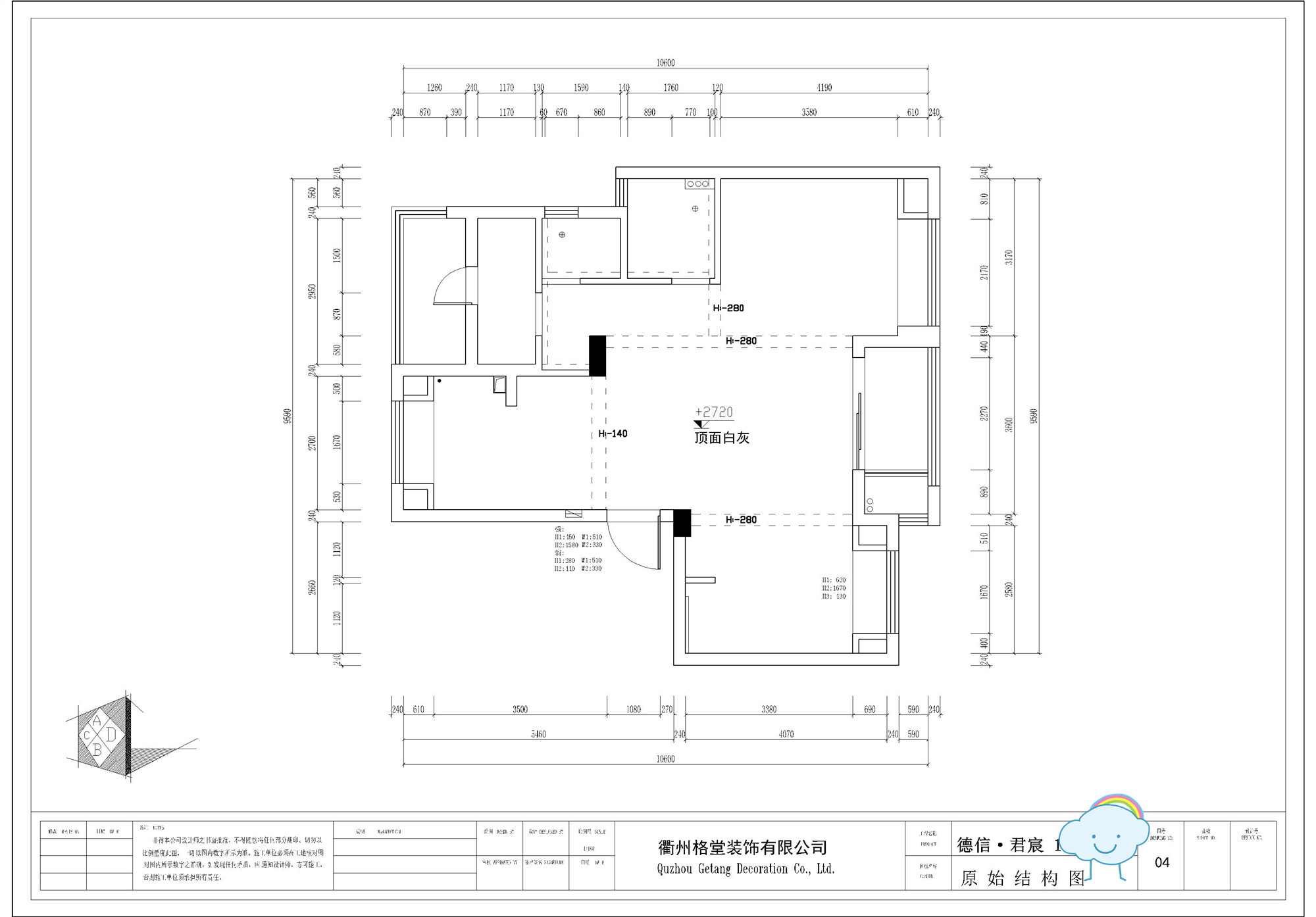
原始结构图


微信图片_20201209164612.jpg


平面布置图


微信图片_20201209164617.jpg
回复 支持 反对

使用道具 举报

 楼主| 发表于 2020-12-13 16:47:27 | 显示全部楼层
本帖最后由 格堂小范 于 2020-12-13 16:49 编辑

煤气表保护

IMG_20201206_085604.jpg

IMG_20201206_085618.jpg
临时马桶安放到位

IMG_20201206_083919.jpg


大门保护


IMG_20201206_085259.jpg

回复 支持 反对

使用道具 举报

 楼主| 发表于 2020-12-13 16:48:35 | 显示全部楼层
开工道具准备到位


IMG_20201206_084656.jpg

IMG_20201206_083745.jpg


IMG_20201206_083808.jpg
回复 支持 反对

使用道具 举报

 楼主| 发表于 2020-12-13 16:49:59 | 显示全部楼层
现场和业主进行拆改放样


IMG_20201206_083332.jpg

IMG_20201206_084501.jpg
回复 支持 反对

使用道具 举报

 楼主| 发表于 2020-12-13 16:50:40 | 显示全部楼层
开工大吉


IMG_20201206_090045.jpg


装修开工第一锤应该由业主敲在要拆除的墙体的墙角(即拐角)上,象征一锤定音的意思,也是新房动土的一种表示方式


IMG_20201206_085825.jpg
回复 支持 反对

使用道具 举报

 楼主| 发表于 2020-12-18 17:02:01 | 显示全部楼层
墙顶面铲灰,是为了防止墙体出现空鼓,在做好油漆后,不会有墙体整块油漆脱落的现象。

微信图片_20201217153214.jpg

微信图片_202012171532141.jpg


微信图片_20201217153215.jpg


微信图片_202012171532151.jpg


微信图片_202012171532152.jpg
回复 支持 反对

使用道具 举报

 楼主| 发表于 2020-12-18 17:02:36 | 显示全部楼层

拆改阶段

微信图片_202012171532153.jpg


微信图片_202012171532154.jpg


微信图片_202012171532155.jpg



微信图片_202012171532157.jpg




微信图片_202012171532156.jpg
回复 支持 反对

使用道具 举报

 楼主| 发表于 2020-12-18 17:03:00 | 显示全部楼层
微信图片_202012171532158.jpg

墙顶面铲灰,是为了防止墙体出现空鼓,在做好油漆后,不会有墙体整块油漆脱落的现象。


微信图片_202012171532159.jpg

微信图片_2020121715321510.jpg



微信图片_2020121715321511.jpg



微信图片_2020121715321512.jpg
回复 支持 反对

使用道具 举报

您需要登录后才可以回帖 登录 | 立即注册

本版积分规则

全国统一客服电话
0570-8028505

24x7小时免费咨询

  • 官方在线客服

    QQ客服:小西

    点击交谈

    QQ客服:良子

    点击交谈

    QQ客服:闵月

    点击交谈
  • 衢州市柯城区财富中心3号楼2楼

  • 衢州格堂装饰有限公司

  • 扫一扫关注官方微信

    获取一手特惠信息

快速回复 返回顶部 返回列表