• 手机版

    扫码体验手机版

  • 微信公众号

    扫码关注公众号

登录注册
游客您好
第三方账号登陆

[衢州] 国金印象13-1-70#122㎡ 现代美式—-活泼清新-美式

[复制链接]
发表于 2020-12-9 12:59:25 | 显示全部楼层 |阅读模式
活泼清新-美式

格堂装饰为您全程记录装修全过程!

小区名称
国金印象
房屋面积
122㎡
户型结构
套房
装修风格
美式
装修方式
全包
装修造价
查看请联系客服万元
设计师
何工
项目经理
周工
装修公司
格堂装饰
完工实景
完工实景
水电全景
水电全景
VR全景
VR全景
设计说明
美式风格是时代发展趋势的产物,
指的是色彩相对传统美式更加丰富,
更加年轻化,家具选择更有包容性。
其追求华丽、高雅的古典风格,
空间环境多表现出华美、富丽、浪漫的气氛。
有文化感、有贵气感,
还不能缺乏自在感与情调感。
更多信息
本帖最后由 格堂小范 于 2020-12-9 13:04 编辑


回复

使用道具 举报

 楼主| 发表于 2020-12-9 13:01:41 | 显示全部楼层
效果图


微信图片_20201209125141.jpg


微信图片_20201209125239.jpg


回复 支持 反对

使用道具 举报

 楼主| 发表于 2020-12-9 13:02:01 | 显示全部楼层
本帖最后由 格堂小范 于 2020-12-9 13:04 编辑

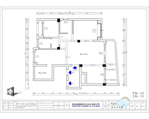
原始结构图


微信图片_20201209125117.jpg


平面布置图


微信图片_20201209125137.jpg
回复 支持 反对

使用道具 举报

 楼主| 发表于 2020-12-13 16:15:05 | 显示全部楼层

临时马桶安放到位

IMG_20201205_095048.jpg

开工仪式准备

IMG_20201205_095103.jpg


IMG_20201205_094745.jpg



IMG_20201205_095126.jpg
回复 支持 反对

使用道具 举报

 楼主| 发表于 2020-12-13 16:20:39 | 显示全部楼层
开工大吉


IMG_20201205_100032.jpg


装修开工第一锤应该由业主敲在要拆除的墙体的墙角(即拐角)上,象征一锤定音的意思,也是新房动土的一种表示方式

IMG_20201205_095847.jpg
回复 支持 反对

使用道具 举报

 楼主| 发表于 2020-12-19 15:51:28 | 显示全部楼层
墙顶面铲灰,是为了防止墙体出现空鼓,在做好油漆后,不会有墙体整块油漆脱落的现象。


微信图片_20201218165902.jpg



微信图片_202012181659021.jpg



微信图片_202012181659022.jpg


微信图片_202012181659023.jpg




微信图片_20201218165903.jpg
回复 支持 反对

使用道具 举报

 楼主| 发表于 2020-12-19 15:58:19 | 显示全部楼层
墙顶面铲灰,是为了防止墙体出现空鼓,在做好油漆后,不会有墙体整块油漆脱落的现象。


微信图片_202012181659024.jpg

微信图片_202012181659025.jpg



微信图片_202012181659026.jpg



微信图片_202012181659027.jpg


微信图片_202012181659028.jpg
回复 支持 反对

使用道具 举报

 楼主| 发表于 2020-12-19 15:59:32 | 显示全部楼层
砌墙放样


微信图片_202012181659031.jpg


微信图片_202012181659029.jpg



微信图片_202012181659032.jpg



微信图片_2020121816590210.jpg


微信图片_202012181659033.jpg
回复 支持 反对

使用道具 举报

 楼主| 发表于 2020-12-19 16:00:12 | 显示全部楼层
新老墙交接处,粉刷层剥落,后期新砌的墙体和老墙结合才会牢固

微信图片_2020121816590212.jpg

微信图片_2020121816590214.jpg


微信图片_2020121816590213.jpg



微信图片_2020121816590215.jpg


微信图片_2020121816590216.jpg
回复 支持 反对

使用道具 举报

 楼主| 发表于 2020-12-19 16:00:53 | 显示全部楼层
施工工地保持干净


微信图片_2020121816590218.jpg

微信图片_2020121816590217.jpg


微信图片_2020121816590219.jpg


微信图片_2020121816590220.jpg


微信图片_2020121816590221.jpg
回复 支持 反对

使用道具 举报

您需要登录后才可以回帖 登录 | 立即注册

本版积分规则

全国统一客服电话
0570-8028505

24x7小时免费咨询

  • 官方在线客服

    QQ客服:小西

    点击交谈

    QQ客服:良子

    点击交谈

    QQ客服:闵月

    点击交谈
  • 衢州市柯城区财富中心3号楼2楼

  • 衢州格堂装饰有限公司

  • 扫一扫关注官方微信

    获取一手特惠信息

快速回复 返回顶部 返回列表