• 手机版

    扫码体验手机版

  • 微信公众号

    扫码关注公众号

登录注册
游客您好
第三方账号登陆

[衢州] 国金旭辉城23-2-7#99㎡ 现代——素·格

[复制链接]
发表于 2020-12-9 11:37:40 | 显示全部楼层 |阅读模式
素·格

格堂装饰为您全程记录装修全过程!

小区名称
国金旭辉城
房屋面积
99㎡
户型结构
套房
装修风格
现代
装修方式
全包
装修造价
查看请联系客服万元
设计师
毛工
项目经理
施工
装修公司
格堂装饰
完工实景
完工实景
水电全景
水电全景
VR全景
VR全景
设计说明
弥散在空间中的仪式感多过生活本身;而对于行进于生活中的人来说,仪式感好像又显得有点浪费时间。在设计构思中,面对一个空间,需求、元素、事件可能表现为一种材料,一个皱褶,一种场地上的处理手法,它们在各自的领域中本无关联又在实质上紧密呼应。
更多信息
本帖最后由 格堂飞飞 于 2020-12-13 09:36 编辑

效果图
IMG_2361.JPG
回复

使用道具 举报

 楼主| 发表于 2020-12-9 11:38:09 | 显示全部楼层

原始结构图
IMG_2363.JPG
回复 支持 反对

使用道具 举报

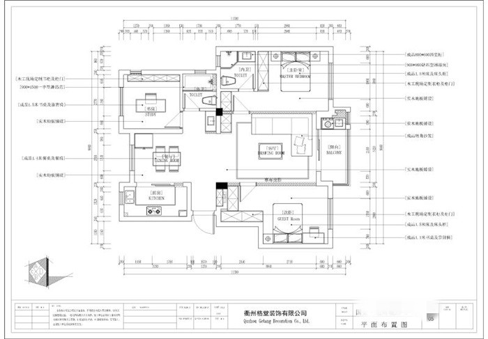
 楼主| 发表于 2020-12-9 11:38:32 | 显示全部楼层

平面布置图
IMG_2364_副本.jpg
回复 支持 反对

使用道具 举报

 楼主| 发表于 2020-12-9 11:49:19 | 显示全部楼层

电梯间墙面和地面保护到位,防止磕碰哦!
IMG_1624.JPG

IMG_1626.JPG

IMG_1627.JPG

IMG_1625.JPG

IMG_1628.JPG
回复 支持 反对

使用道具 举报

 楼主| 发表于 2020-12-9 11:50:38 | 显示全部楼层

开工前准备工作先要做好哦!
IMG_1629.JPG

IMG_1631.JPG

IMG_1632.JPG

IMG_1637.JPG
回复 支持 反对

使用道具 举报

 楼主| 发表于 2020-12-9 11:51:32 | 显示全部楼层

项目经理正在门槛保护,防止磕碰哦!
IMG_1633.JPG

IMG_1635.JPG
回复 支持 反对

使用道具 举报

 楼主| 发表于 2020-12-9 11:52:58 | 显示全部楼层

大门保护到位,防止磕碰。
IMG_1641.JPG

IMG_1642.JPG
回复 支持 反对

使用道具 举报

 楼主| 发表于 2020-12-9 11:54:32 | 显示全部楼层

一切准备就绪,就等开工吉时啦!
IMG_1643.JPG
回复 支持 反对

使用道具 举报

 楼主| 发表于 2020-12-9 11:57:41 | 显示全部楼层

吉时已到,恭祝业主大人,开工大吉!
IMG_1665.JPG
回复 支持 反对

使用道具 举报

 楼主| 发表于 2020-12-9 11:59:09 | 显示全部楼层
开工第一锤,由业主大人,亲自来哦!
IMG_1668_副本.jpg

IMG_1669_副本.jpg
回复 支持 反对

使用道具 举报

您需要登录后才可以回帖 登录 | 立即注册

本版积分规则

全国统一客服电话
0570-8028505

24x7小时免费咨询

  • 官方在线客服

    QQ客服:小西

    点击交谈

    QQ客服:良子

    点击交谈

    QQ客服:闵月

    点击交谈
  • 衢州市柯城区财富中心3号楼2楼

  • 衢州格堂装饰有限公司

  • 扫一扫关注官方微信

    获取一手特惠信息

快速回复 返回顶部 返回列表