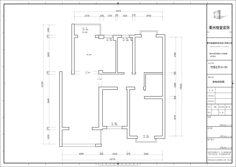
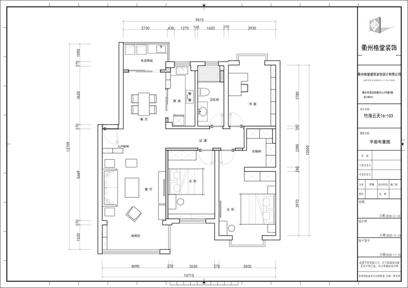
[龙游] 竹海云天16#120㎡北欧风——木楠舍 |
|
木楠舍
格堂装饰为您全程记录装修全过程! 设计说明
北欧简约风格是将设计的元素、色彩、照明、原材料简化到少的程度,但对色彩、材料的质感要求很高。
北欧风格简洁、现代,以浅色为代表,整体感舒适自然,同现代简约风格有着极大的相似,颇受现在年轻人的喜爱。 黑与白是北欧的经典色彩,没有地中海风格大片的炫烂色彩,它专一的黑白引领着一 种类似时尚,却远离浮华的洒脱,让人觉得从容而自在。优雅的纯白与北欧人的生活习性有点类似。 木地板是北欧风格的心脏白色的木地板是北欧人的爱,这与天气的原因有关第,由于雨雪的原因,大面积的地毯会导致室内光线不足,而白色的木地板,能让室内光线看起来更明亮些,选择木地板也与北欧人对木材独钟的喜欢有点关系。 更多信息
| |


在线客服
微信客服
关注有礼