• 手机版

    扫码体验手机版

  • 微信公众号

    扫码关注公众号

登录注册
游客您好
第三方账号登陆

[龙游] 龙都锦城17-1#85㎡北欧风——生活里的时光

[复制链接]
发表于 2020-12-8 10:24:43 | 显示全部楼层 |阅读模式
生活里的时光

格堂装饰为您全程记录装修全过程!

小区名称
龙都锦城
房屋面积
85㎡
户型结构
套房
装修风格
北欧
装修方式
半包
装修造价
查看请联系客服万元
设计师
王工
项目经理
杨工
装修公司
格堂装饰
完工实景
完工实景
水电全景
水电全景
VR全景
VR全景
设计说明
房屋的结构改造,来源于屋主最真实的功能需求,让房子在实用上发挥了最极限的作用。让空间呈现生活本来有的样子,简单,干净……
更多信息
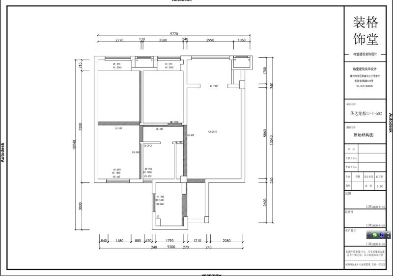
原始结构图

图片1.png
回复

使用道具 举报

 楼主| 发表于 2020-12-8 10:25:46 | 显示全部楼层
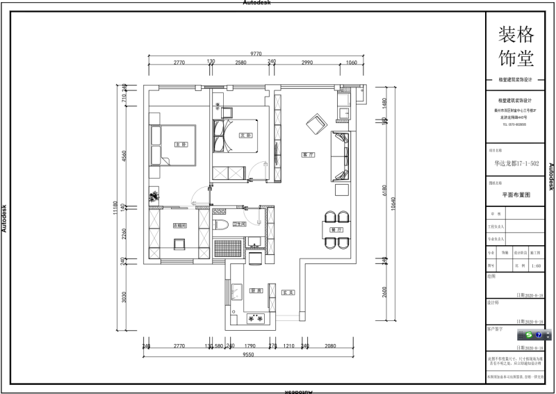
原始结构图

图片2.png
回复 支持 反对

使用道具 举报

 楼主| 发表于 2020-12-8 10:26:24 | 显示全部楼层
效果图

图片3.png

图片4.png
回复 支持 反对

使用道具 举报

 楼主| 发表于 2020-12-8 10:44:38 | 显示全部楼层
入户门和电梯门口做好保护,防止开裂

IMG_0944.JPG

IMG_0945.JPG
回复 支持 反对

使用道具 举报

 楼主| 发表于 2020-12-8 10:44:58 | 显示全部楼层
IMG_0946.JPG

IMG_0947.JPG
回复 支持 反对

使用道具 举报

 楼主| 发表于 2020-12-8 10:46:43 | 显示全部楼层
所有下水道管口做好保护,防止砂石阻塞

IMG_0948.JPG

IMG_0951.JPG

IMG_0952.JPG
回复 支持 反对

使用道具 举报

 楼主| 发表于 2020-12-8 10:47:13 | 显示全部楼层
临时马桶

IMG_0950.JPG
回复 支持 反对

使用道具 举报

 楼主| 发表于 2020-12-8 10:48:15 | 显示全部楼层
煤气表做好保护,防止磕碰受损

IMG_0949.JPG
回复 支持 反对

使用道具 举报

 楼主| 发表于 2020-12-8 10:48:40 | 显示全部楼层
IMG_0953.JPG

IMG_0954.JPG

IMG_0955.JPG
回复 支持 反对

使用道具 举报

 楼主| 发表于 2020-12-8 10:49:09 | 显示全部楼层
IMG_0956.JPG

IMG_0957.JPG

IMG_0959.JPG
回复 支持 反对

使用道具 举报

您需要登录后才可以回帖 登录 | 立即注册

本版积分规则

全国统一客服电话
0570-8028505

24x7小时免费咨询

  • 官方在线客服

    QQ客服:小西

    点击交谈

    QQ客服:良子

    点击交谈

    QQ客服:闵月

    点击交谈
  • 衢州市柯城区财富中心3号楼2楼

  • 衢州格堂装饰有限公司

  • 扫一扫关注官方微信

    获取一手特惠信息

快速回复 返回顶部 返回列表