• 手机版

    扫码体验手机版

  • 微信公众号

    扫码关注公众号

登录注册
游客您好
第三方账号登陆

衢州公馆12-1-23#143㎡新中式—朴素简洁的新中风

[复制链接]
发表于 2020-12-4 09:37:16 | 显示全部楼层 |阅读模式
衢州公馆12-1-23#143㎡新中式—朴素简洁的新中风

格堂装饰实景完工案例欣赏!

小区名称
衢州公馆
房屋面积
143㎡
户型结构
套房
装修风格
新中式
装修方式
半包
装修造价
查看请联系客服万元
设计师
王工
项目经理
姜工
装修公司
格堂装饰
装修过程
装修日记
设计说明
合理划分空间,让设计融入生活,营造自然,品味,格调。
更多信息
7E1A1753.jpg


回复

使用道具 举报

 楼主| 发表于 2020-12-4 09:38:00 | 显示全部楼层
本帖最后由 格堂方俊 于 2020-12-6 10:03 编辑


原始构图▼▼▼

170546skkhh4w4i0qci48w.jpg


回复 支持 反对

使用道具 举报

 楼主| 发表于 2020-12-4 09:38:14 | 显示全部楼层
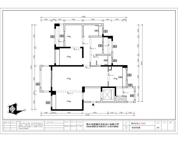
平面布置图▼▼▼

170606wfgrfvz1p95jv1oj.jpg


回复 支持 反对

使用道具 举报

 楼主| 发表于 2020-12-4 09:38:36 | 显示全部楼层
客厅▼▼▼

7E1A1752.jpg

7E1A1753.jpg

7E1A1754.jpg

7E1A1757.jpg


回复 支持 反对

使用道具 举报

 楼主| 发表于 2020-12-4 09:38:58 | 显示全部楼层
餐厅▼▼▼

7E1A1760.jpg


回复 支持 反对

使用道具 举报

 楼主| 发表于 2020-12-4 09:39:10 | 显示全部楼层
厨房▼▼▼

7E1A1762.jpg


回复 支持 反对

使用道具 举报

 楼主| 发表于 2020-12-4 09:39:31 | 显示全部楼层
玄关▼▼▼

7E1A1763.jpg


回复 支持 反对

使用道具 举报

 楼主| 发表于 2020-12-4 09:39:54 | 显示全部楼层
主卧▼▼▼

7E1A1738.jpg

7E1A1739.jpg

7E1A1740.jpg

7E1A1741.jpg


回复 支持 反对

使用道具 举报

 楼主| 发表于 2020-12-4 09:40:20 | 显示全部楼层
小孩房▼▼▼

7E1A1749.jpg


回复 支持 反对

使用道具 举报

 楼主| 发表于 2020-12-4 09:40:37 | 显示全部楼层
主卫▼▼▼

7E1A1743.jpg

7E1A1744.jpg


回复 支持 反对

使用道具 举报

您需要登录后才可以回帖 登录 | 立即注册

本版积分规则

全国统一客服电话
0570-8028505

24x7小时免费咨询

  • 官方在线客服

    QQ客服:小西

    点击交谈

    QQ客服:良子

    点击交谈

    QQ客服:闵月

    点击交谈
  • 衢州市柯城区财富中心3号楼2楼

  • 衢州格堂装饰有限公司

  • 扫一扫关注官方微信

    获取一手特惠信息

快速回复 返回顶部 返回列表