• 手机版

    扫码体验手机版

  • 微信公众号

    扫码关注公众号

登录注册
游客您好
第三方账号登陆

[龙游] 印江南10#2#134㎡北之轻语 北欧式

[复制链接]
发表于 2020-12-4 08:48:41 | 显示全部楼层 |阅读模式
北之轻语

格堂装饰为您全程记录装修全过程!

小区名称
印江南
房屋面积
134㎡
户型结构
套房
装修风格
北欧
装修方式
半包
装修造价
查看请联系客服万元
设计师
王工
项目经理
杨工
装修公司
格堂装饰
完工实景
完工实景
水电全景
水电全景
VR全景
VR全景
设计说明
北欧风格与装饰艺术风格、流线型风格等追求时髦和商业价值的形式主义不同,北欧风格简洁实用,体现对传统的尊重,对自然材料的欣赏,对
形式和装饰的克制,以及力求在形式和功能的统一;在建筑室内设计方面,就是
室内的顶、墙、地三个面,完全不用纹样和图案装饰,只用线条、色块来区分点
缀。
更多信息



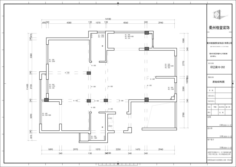
原始结构图


IMG_3677.JPG

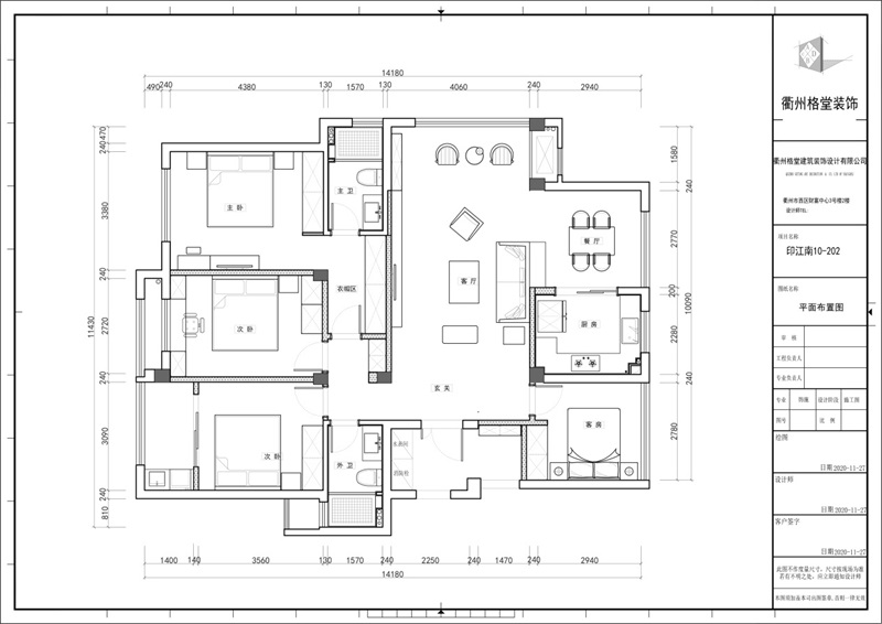
平面布置图


IMG_3678.JPG


效果图


IMG_3679.JPG



IMG_3680.JPG





回复

使用道具 举报

 楼主| 发表于 2020-12-4 08:49:55 | 显示全部楼层

开工布置

IMG_3500.JPG


IMG_3501.JPG
回复 支持 反对

使用道具 举报

 楼主| 发表于 2020-12-4 08:51:00 | 显示全部楼层


所有玻璃窗做好保护,防尘

IMG_3502.JPG
回复 支持 反对

使用道具 举报

 楼主| 发表于 2020-12-4 08:51:14 | 显示全部楼层



IMG_3503.JPG
回复 支持 反对

使用道具 举报

 楼主| 发表于 2020-12-4 08:51:31 | 显示全部楼层



IMG_3504.JPG



回复 支持 反对

使用道具 举报

 楼主| 发表于 2020-12-4 08:51:44 | 显示全部楼层




IMG_3505.JPG
回复 支持 反对

使用道具 举报

 楼主| 发表于 2020-12-4 08:51:57 | 显示全部楼层



IMG_3506.JPG
回复 支持 反对

使用道具 举报

 楼主| 发表于 2020-12-4 08:52:09 | 显示全部楼层



IMG_3507.JPG



回复 支持 反对

使用道具 举报

 楼主| 发表于 2020-12-4 08:52:35 | 显示全部楼层

电梯入户门做好保护,防止磕碰受损

IMG_3509.JPG
回复 支持 反对

使用道具 举报

 楼主| 发表于 2020-12-4 08:52:47 | 显示全部楼层



IMG_3510.JPG
回复 支持 反对

使用道具 举报

您需要登录后才可以回帖 登录 | 立即注册

本版积分规则

全国统一客服电话
0570-8028505

24x7小时免费咨询

  • 官方在线客服

    QQ客服:小西

    点击交谈

    QQ客服:良子

    点击交谈

    QQ客服:闵月

    点击交谈
  • 衢州市柯城区财富中心3号楼2楼

  • 衢州格堂装饰有限公司

  • 扫一扫关注官方微信

    获取一手特惠信息

快速回复 返回顶部 返回列表