• 手机版

    扫码体验手机版

  • 微信公众号

    扫码关注公众号

登录注册
游客您好
第三方账号登陆

[衢州] 府前一号11-2-9#255㎡新中式——简.中

[复制链接]
发表于 2020-11-24 10:22:05 | 显示全部楼层 |阅读模式
简.中

格堂装饰为您全程记录装修全过程!

小区名称
府前一号
房屋面积
255㎡
户型结构
套房
装修风格
新中式
装修方式
半包
装修造价
查看请联系客服万元
设计师
余工
项目经理
刘工
装修公司
格堂装饰
完工实景
完工实景
水电全景
水电全景
VR全景
VR全景
设计说明
本案业主是个成功人士,从小在书香家庭氛围熏陶下长大,骨子里透着书香气,喜欢中国传统文化,又喜欢现代流行时尚,删繁就简,摒除过多复杂、陈旧的元素,于是就有了本案“水”。使得节奏的变换充满诗意的温柔,现代化的家居表达出线条的规则与几何的穿插,又仿佛可以穿越时空。
更多信息

效果图
mmexport1606126080532.jpg

mmexport1606126083380.jpg

mmexport1606126086229.jpg
回复

使用道具 举报

 楼主| 发表于 2020-11-24 10:22:46 | 显示全部楼层
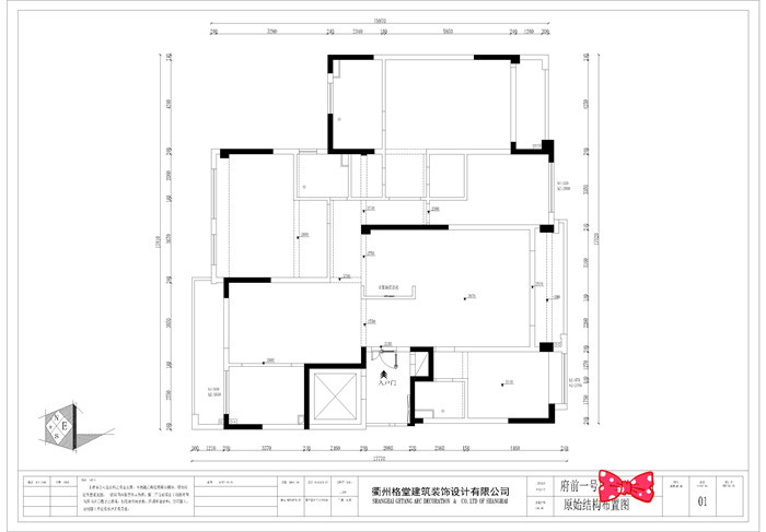
原始结构图
mmexport1606126073362.jpg
回复 支持 反对

使用道具 举报

 楼主| 发表于 2020-11-24 10:23:12 | 显示全部楼层

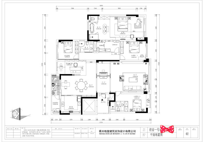
平面布置图
mmexport1606126076818.jpg
回复 支持 反对

使用道具 举报

 楼主| 发表于 2020-11-24 10:25:20 | 显示全部楼层

开工前大门已经保护到位。
IMG_20201123_123012.jpg
回复 支持 反对

使用道具 举报

 楼主| 发表于 2020-11-24 10:25:55 | 显示全部楼层

门槛已经保护好了
IMG_20201123_130431.jpg
回复 支持 反对

使用道具 举报

 楼主| 发表于 2020-11-24 10:27:17 | 显示全部楼层

师傅正在电梯口保护地面和墙面。
IMG_20201123_131029.jpg

IMG_20201123_131031.jpg

IMG_20201123_131034.jpg

IMG_20201123_131036.jpg

IMG_20201123_131037.jpg
回复 支持 反对

使用道具 举报

 楼主| 发表于 2020-11-24 10:27:57 | 显示全部楼层

电梯口对角
IMG_20201123_131051.jpg

IMG_20201123_131053.jpg

IMG_20201123_131056.jpg

IMG_20201123_131058.jpg

IMG_20201123_131100.jpg
回复 支持 反对

使用道具 举报

 楼主| 发表于 2020-11-24 10:29:22 | 显示全部楼层

开工前项目经理正在检查墙面和地面师傅有空鼓。
IMG_20201123_123446.jpg

IMG_20201123_123121.jpg

IMG_20201123_123126.jpg

IMG_20201123_123438.jpg

IMG_20201123_123232.jpg
回复 支持 反对

使用道具 举报

 楼主| 发表于 2020-11-24 10:30:45 | 显示全部楼层

有空鼓的地方做好已经做好了标识以便修补。
IMG_20201123_123442.jpg

IMG_20201123_123605.jpg

IMG_20201123_123511.jpg
回复 支持 反对

使用道具 举报

 楼主| 发表于 2020-11-24 10:32:30 | 显示全部楼层

项目经理正在检查门窗是否完好。
IMG_20201123_123826.jpg

IMG_20201123_123937.jpg

IMG_20201123_123848.jpg

IMG_20201123_124019.jpg
回复 支持 反对

使用道具 举报

您需要登录后才可以回帖 登录 | 立即注册

本版积分规则

全国统一客服电话
0570-8028505

24x7小时免费咨询

  • 官方在线客服

    QQ客服:小西

    点击交谈

    QQ客服:良子

    点击交谈

    QQ客服:闵月

    点击交谈
  • 衢州市柯城区财富中心3号楼2楼

  • 衢州格堂装饰有限公司

  • 扫一扫关注官方微信

    获取一手特惠信息

快速回复 返回顶部 返回列表