• 手机版

    扫码体验手机版

  • 微信公众号

    扫码关注公众号

登录注册
游客您好
第三方账号登陆

衢州公馆13-2-18#143㎡美式轻奢——小时光。。

[复制链接]
发表于 2020-11-12 11:00:57 | 显示全部楼层 |阅读模式
衢州公馆13-2-18#143㎡美式轻奢——小时光。。

格堂装饰实景完工案例欣赏!

小区名称
衢州公馆
房屋面积
143㎡
户型结构
套房
装修风格
美式轻奢
装修方式
全包
装修造价
查看请联系客服万元
设计师
胡工
项目经理
刘工
装修公司
格堂装饰
装修过程
装修日记
设计说明
午后的阳光洒落心间
有令人心醉的温度
一杯「白桃乌龙茶」
刚好可以
驱散心中的烦闷与焦躁
陪你度过一个午后时光
更多信息
7E1A1580.jpg


回复

使用道具 举报

 楼主| 发表于 2020-11-12 11:01:24 | 显示全部楼层
本帖最后由 格堂方俊 于 2020-12-6 10:08 编辑


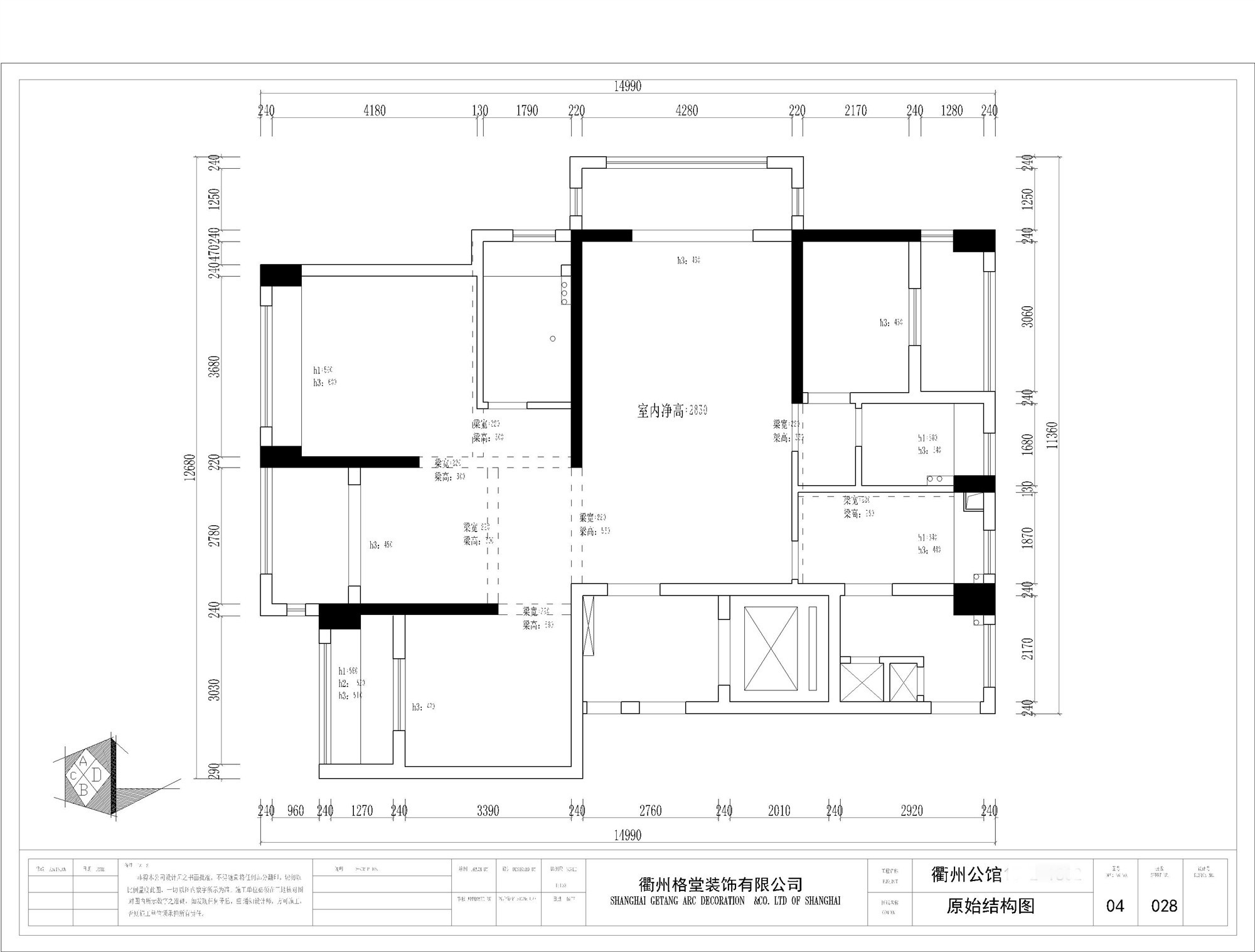
原始构图▼▼▼

105306v609gld1k1ch0pzc.jpg


回复 支持 反对

使用道具 举报

 楼主| 发表于 2020-11-12 11:01:40 | 显示全部楼层
平面布置图▼▼▼

105332w3wleogaxgw2m2au.jpg


回复 支持 反对

使用道具 举报

 楼主| 发表于 2020-11-12 11:02:12 | 显示全部楼层
客厅▼▼▼

7E1A1571.jpg

7E1A1580.jpg

7E1A1572.jpg

7E1A1582.jpg

7E1A1581.jpg



回复 支持 反对

使用道具 举报

 楼主| 发表于 2020-11-12 11:02:40 | 显示全部楼层
主卧▼▼▼

7E1A1552.jpg

7E1A1551.jpg

7E1A1550.jpg

7E1A1553.jpg

7E1A1555.jpg


回复 支持 反对

使用道具 举报

 楼主| 发表于 2020-11-12 11:03:39 | 显示全部楼层
餐厅▼▼▼

7E1A1573.jpg

7E1A1574.jpg

7E1A1575.jpg

7E1A1577.jpg



回复 支持 反对

使用道具 举报

 楼主| 发表于 2020-11-12 11:04:13 | 显示全部楼层
小孩房▼▼▼

7E1A1568.jpg

7E1A1567.jpg


回复 支持 反对

使用道具 举报

 楼主| 发表于 2020-11-12 11:04:33 | 显示全部楼层
次卧▼▼▼

7E1A1586.jpg


回复 支持 反对

使用道具 举报

 楼主| 发表于 2020-11-12 11:05:02 | 显示全部楼层
厨房▼▼▼

7E1A1590.jpg

7E1A1589.jpg


回复 支持 反对

使用道具 举报

 楼主| 发表于 2020-11-12 11:05:21 | 显示全部楼层
干区▼▼▼

7E1A1587.jpg


回复 支持 反对

使用道具 举报

您需要登录后才可以回帖 登录 | 立即注册

本版积分规则

全国统一客服电话
0570-8028505

24x7小时免费咨询

  • 官方在线客服

    QQ客服:小西

    点击交谈

    QQ客服:良子

    点击交谈

    QQ客服:闵月

    点击交谈
  • 衢州市柯城区财富中心3号楼2楼

  • 衢州格堂装饰有限公司

  • 扫一扫关注官方微信

    获取一手特惠信息

快速回复 返回顶部 返回列表