衢州花园41-1#200㎡简欧—营造欧式传承的浪漫、休闲‘华丽大气的氛围 |
|
衢州花园41-1#200㎡简欧—营造欧式传承的浪漫、休闲‘华丽大气的氛围
格堂装饰实景完工案例欣赏!
设计说明
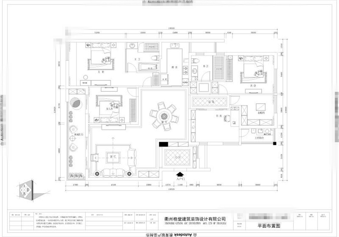
本案为衢州花园五房两厅户型,客餐厅空间比较大,卧室比较多,业主是一家四口居住,空间还需合理分配。那么除了固定的三间卧室,剩余两间卧室我们分别做了书房和独立衣帽间,增加单独的读书区以及储物空间。洗衣间做到北面阳台,留出南面的景观阳台作为休闲区。
本案风格为简欧风,主要以墙布及少量的护墙来达到装饰效果。 更多信息
| |


在线客服
微信客服
关注有礼