• 手机版

    扫码体验手机版

  • 微信公众号

    扫码关注公众号

登录注册
游客您好
第三方账号登陆

衢州公馆3-1-23#136㎡ 北欧——《安之若素》

[复制链接]
发表于 2020-11-1 12:45:42 | 显示全部楼层 |阅读模式
衢州公馆3-1-23#136㎡ 北欧——《安之若素》

格堂装饰实景完工案例欣赏!

小区名称
衢州公馆
房屋面积
136㎡
户型结构
套房
装修风格
北欧
装修方式
半包
装修造价
查看请联系客服万元
设计师
韩工
项目经理
余工
装修公司
格堂装饰
装修过程
装修日记
设计说明
生活有意义的人并非风光无限,而是对生活有感知的人。家居对人的意义,不仅是可以栖息的房子,并且是一种生活方式,一种对生活的领悟。本案秉承这种设计理念,处处迎合着业主随意而又精致的生活态度。
更多信息
7E1A0910.jpg


回复

使用道具 举报

 楼主| 发表于 2020-11-1 12:47:20 | 显示全部楼层
本帖最后由 格堂方俊 于 2020-12-6 10:12 编辑


原始构图▼▼▼

151418pbem70mh7ucohyho.jpg


回复 支持 反对

使用道具 举报

 楼主| 发表于 2020-11-1 12:47:34 | 显示全部楼层
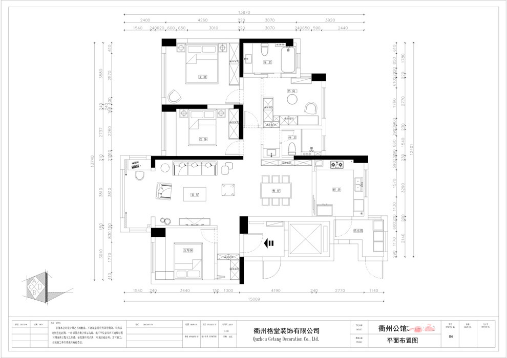
平面布置图▼▼▼

151442mzfqxzo4h11fmf94.jpg


回复 支持 反对

使用道具 举报

 楼主| 发表于 2020-11-1 12:47:58 | 显示全部楼层
客厅▼▼▼

7E1A0902.jpg

7E1A0908.jpg

7E1A0904.jpg

7E1A0909.jpg

7E1A0910.jpg

7E1A0911.jpg

7E1A0912.jpg

7E1A0923.jpg


回复 支持 反对

使用道具 举报

 楼主| 发表于 2020-11-1 12:48:15 | 显示全部楼层
餐厅▼▼▼

7E1A0924.jpg

7E1A0925.jpg

7E1A0927.jpg

7E1A0928.jpg

7E1A0929.jpg


回复 支持 反对

使用道具 举报

 楼主| 发表于 2020-11-1 12:48:31 | 显示全部楼层
厨房▼▼▼

7E1A0931.jpg

7E1A0932.jpg


回复 支持 反对

使用道具 举报

 楼主| 发表于 2020-11-1 12:48:57 | 显示全部楼层
主卧▼▼▼

7E1A0934.jpg

7E1A0935.jpg

7E1A0933.jpg


回复 支持 反对

使用道具 举报

 楼主| 发表于 2020-11-1 12:49:18 | 显示全部楼层
主卫▼▼▼

7E1A0936.jpg

7E1A0937.jpg


回复 支持 反对

使用道具 举报

 楼主| 发表于 2020-11-1 12:49:48 | 显示全部楼层
小景▼▼▼

7E1A0947.jpg

7E1A0943.jpg

7E1A0952.jpg


回复 支持 反对

使用道具 举报

您需要登录后才可以回帖 登录 | 立即注册

本版积分规则

全国统一客服电话
0570-8028505

24x7小时免费咨询

  • 官方在线客服

    QQ客服:小西

    点击交谈

    QQ客服:良子

    点击交谈

    QQ客服:闵月

    点击交谈
  • 衢州市柯城区财富中心3号楼2楼

  • 衢州格堂装饰有限公司

  • 扫一扫关注官方微信

    获取一手特惠信息

快速回复 返回顶部 返回列表