• 手机版

    扫码体验手机版

  • 微信公众号

    扫码关注公众号

登录注册
游客您好
第三方账号登陆

[衢州] [装修日记] 云栖新语4-2-5#97㎡现代简悦——自 在

[复制链接]
发表于 2020-10-29 10:42:51 | 显示全部楼层 |阅读模式
自 在

格堂装饰为您全程记录装修全过程!

小区名称
云栖新语
房屋面积
97㎡
户型结构
套房
装修风格
现代
装修方式
半包
装修造价
查看请联系客服万元
设计师
许工
项目经理
童工
装修公司
格堂装饰
完工实景
完工实景
水电全景
水电全景
VR全景
VR全景
设计说明
幸福是粗糙与细腻结合的产物,互相磨合成就最适合的温度,是爱的温度也是家的温度。
更多信息

效果图
云栖新语4-2-502沙发背景.jpg

云栖新语4-2-502卧室背景.jpg
回复

使用道具 举报

 楼主| 发表于 2020-10-29 10:43:31 | 显示全部楼层

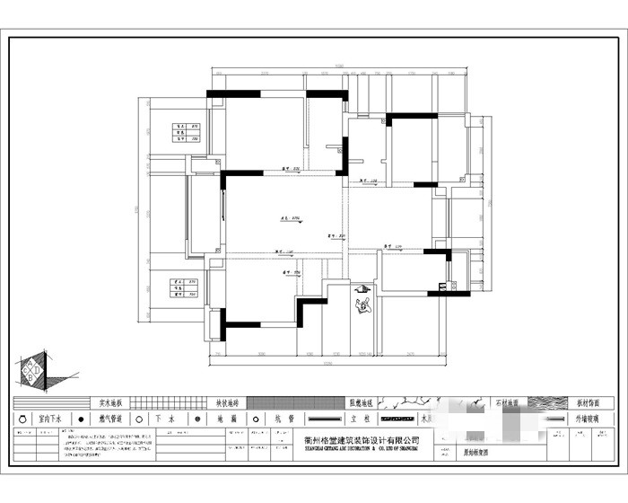
原始结构图
云栖新语4-2-502原始框架图_副本.jpg
回复 支持 反对

使用道具 举报

 楼主| 发表于 2020-10-29 10:43:59 | 显示全部楼层

平面布置图
云栖新语4-2-502平面方案图.jpg
回复 支持 反对

使用道具 举报

 楼主| 发表于 2020-10-29 10:45:00 | 显示全部楼层

电梯间墙面和地面,保护到位,防止磕碰哦!
IMG_1335.JPG

IMG_1339.JPG

IMG_1338.JPG

IMG_1340.JPG
回复 支持 反对

使用道具 举报

 楼主| 发表于 2020-10-29 10:45:33 | 显示全部楼层

电梯间
IMG_1336.JPG

IMG_1342.JPG

IMG_1341.JPG

IMG_1337.JPG
回复 支持 反对

使用道具 举报

 楼主| 发表于 2020-10-29 10:46:20 | 显示全部楼层

开工前大门也要保护起来,防止磕碰!
IMG_1343.JPG

IMG_1345.JPG
回复 支持 反对

使用道具 举报

 楼主| 发表于 2020-10-29 10:48:04 | 显示全部楼层

门槛也保护到位,防止磕碰哦!
IMG_1344.JPG
回复 支持 反对

使用道具 举报

 楼主| 发表于 2020-10-29 10:49:42 | 显示全部楼层

临时马桶安装到位,方便师傅使用,要讲究卫生哦!
IMG_1351.JPG

IMG_1350.JPG
回复 支持 反对

使用道具 举报

 楼主| 发表于 2020-10-29 10:52:03 | 显示全部楼层

水管用格堂专用保护盖保护,防止砂石堵塞管道。

IMG_1374.JPG

IMG_1376.JPG
回复 支持 反对

使用道具 举报

 楼主| 发表于 2020-10-29 10:53:20 | 显示全部楼层

开工前准备工作,先要做好哦!
IMG_1346.JPG
回复 支持 反对

使用道具 举报

您需要登录后才可以回帖 登录 | 立即注册

本版积分规则

全国统一客服电话
0570-8028505

24x7小时免费咨询

  • 官方在线客服

    QQ客服:小西

    点击交谈

    QQ客服:良子

    点击交谈

    QQ客服:闵月

    点击交谈
  • 衢州市柯城区财富中心3号楼2楼

  • 衢州格堂装饰有限公司

  • 扫一扫关注官方微信

    获取一手特惠信息

快速回复 返回顶部 返回列表