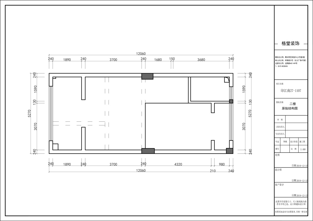
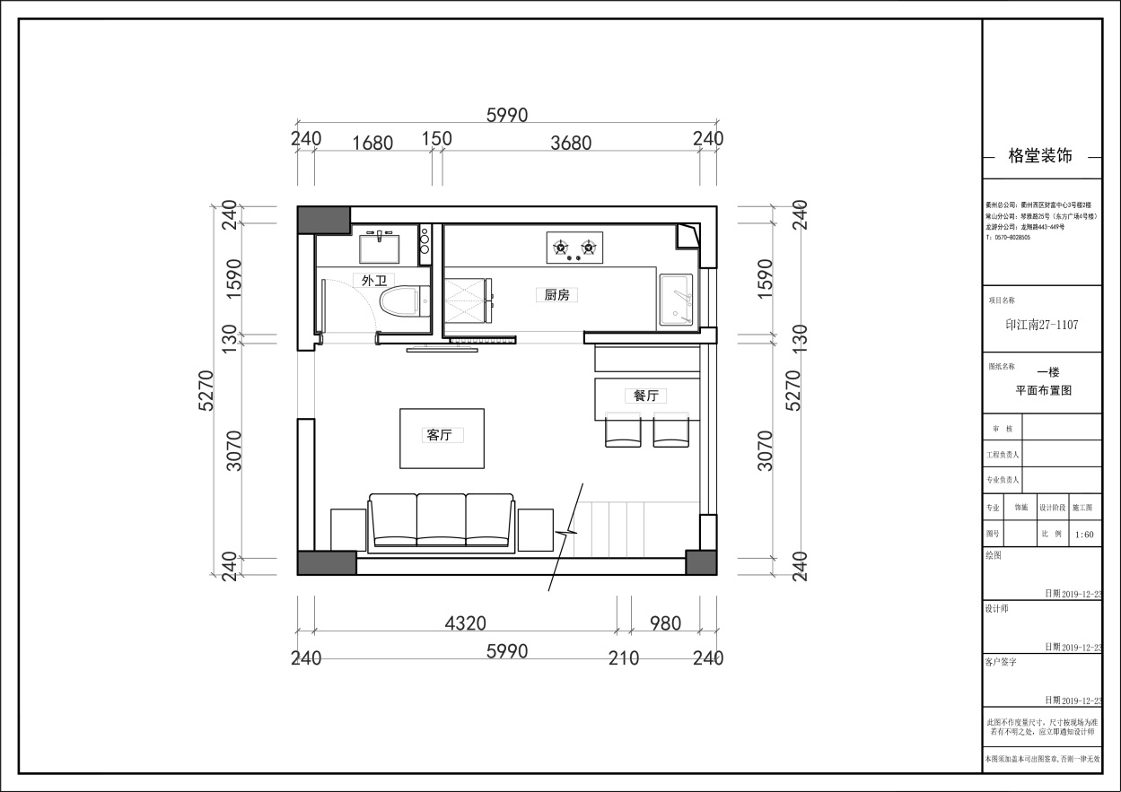
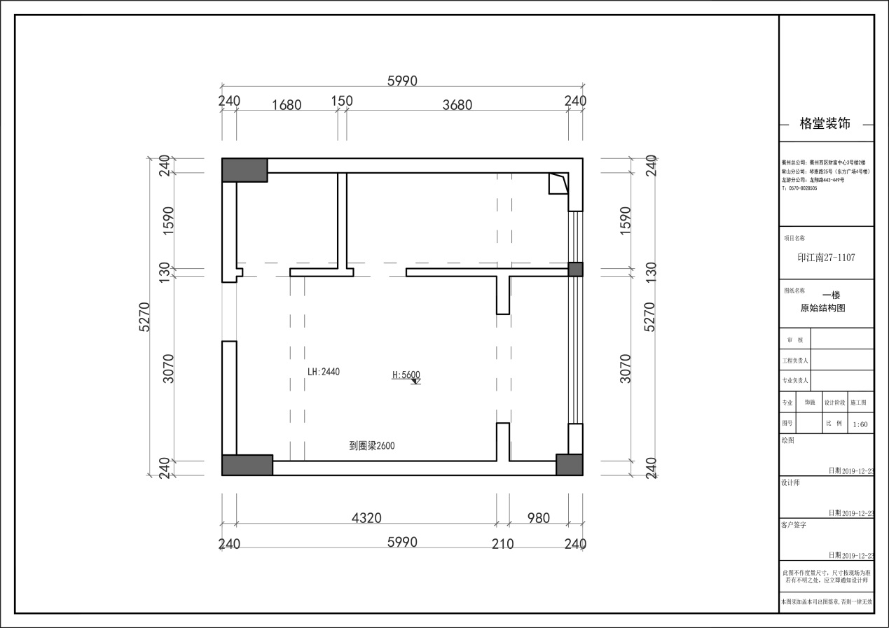
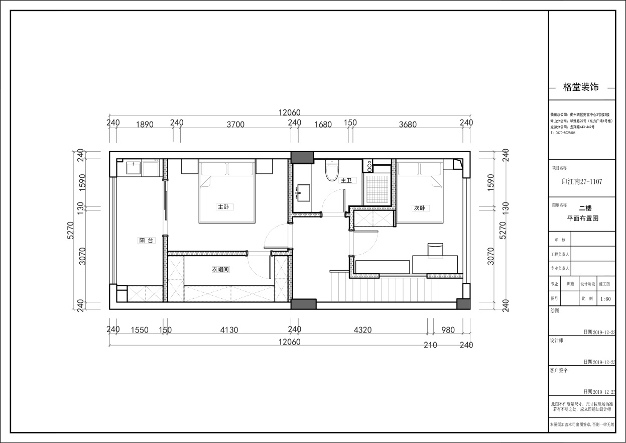
龙游印江南27-#95㎡日式风——清流栖舍 |
|
龙游印江南27-#95㎡日式风——清流栖舍
格堂装饰实景完工案例欣赏!
设计说明
日式风格以清新自然、不知淡雅为设计理念。用原木家具打造闲适写意、悠然自得的生活空间,现代人所追求的。原木的家具让整个空间变得清新明亮,仿佛置身大自然的怀抱。挂在墙面上独特别致的DIY彩色钟表与照片墙俏皮生动,看似简单却无法掩饰其中的淡淡浪漫,使住宅更为温馨。木质家具在暖光灯的照耀下让空间看上去既温馨又舒适。木质支柱很好的将餐厅与客厅划分开来。布艺沙发搭配棕色靠垫,不仅保证了空间色彩上的多元化,有不会有视觉上的凌乱感。
更多信息
| |


在线客服
微信客服
关注有礼