常山东方广场5-2#119㎡北欧——自由空间,精致生活 |
|
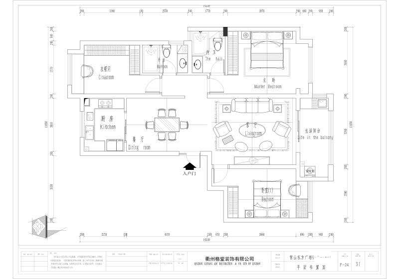
常山东方广场5-2#126㎡现代——现代中式之色
格堂装饰实景完工案例欣赏!
设计说明
设计前期,业主一直在现代与新中式之间徘徊。跟业主沟通的过程中,了解到业主喜欢传统韵味的新中式。但因房子公共区域不算很大,担心摆放很中式的家具空间会很厚重,不舒适,所以整体采用现代的处理方法,点缀一些中式的元素,比如中式的圈椅、挂画等,让空间看起来既简洁、舒适,又有中式味道。
更多信息
| |


在线客服
微信客服
关注有礼