• 手机版

    扫码体验手机版

  • 微信公众号

    扫码关注公众号

登录注册
游客您好
第三方账号登陆

衢州公馆20-23#137㎡ 简欧—-内敛的白色美

[复制链接]
发表于 2020-9-27 08:13:18 | 显示全部楼层 |阅读模式
衢州公馆20-23#137㎡ 简欧—-内敛的白色美

格堂装饰实景完工案例欣赏!

小区名称
衢州公馆
房屋面积
137㎡
户型结构
套房
装修风格
简欧
装修方式
半包
装修造价
查看请联系客服万元
设计师
何工
项目经理
彭工
装修公司
格堂装饰
装修过程
装修日记
设计说明
简欧风格也是目前家居装修最流行的风格,近年来一直提倡简约风格,主要考虑到实用性和多元化,营造出一种与日常居家不同的感觉。摒弃了过于复杂的肌理和装饰,简化了家具设计线条。颜色以象牙白为主色调,深色为辅,给我们留下一种很内敛的美的感觉。
更多信息
_E1A8824.jpg


回复

使用道具 举报

 楼主| 发表于 2020-9-27 08:14:22 | 显示全部楼层
本帖最后由 格堂方俊 于 2020-12-6 10:26 编辑


原始构图▼▼▼

160537cok1j1utkh1dkddo.jpg


回复 支持 反对

使用道具 举报

 楼主| 发表于 2020-9-27 08:14:39 | 显示全部楼层
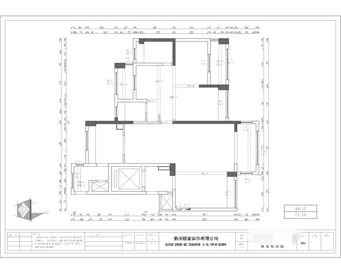
平面布置图▼▼▼

160747gcs0edssuit0qrrp.jpg


回复 支持 反对

使用道具 举报

 楼主| 发表于 2020-9-27 08:15:12 | 显示全部楼层
客厅▼▼▼

_E1A8822.jpg

_E1A8824.jpg

_E1A8823.jpg

_E1A8825.jpg

_E1A8826.jpg

_E1A8827.jpg

_E1A8828.jpg


回复 支持 反对

使用道具 举报

 楼主| 发表于 2020-9-27 08:15:44 | 显示全部楼层
餐厅▼▼▼

_E1A8812.jpg

_E1A8811.jpg

_E1A8813.jpg

_E1A8821.jpg


回复 支持 反对

使用道具 举报

 楼主| 发表于 2020-9-27 08:16:06 | 显示全部楼层
厨房▼▼▼

_E1A8829.jpg

_E1A8830.jpg


回复 支持 反对

使用道具 举报

 楼主| 发表于 2020-9-27 08:16:28 | 显示全部楼层
主卧▼▼▼

_E1A8848.jpg

_E1A8851.jpg

_E1A8849.jpg


回复 支持 反对

使用道具 举报

 楼主| 发表于 2020-9-27 08:17:20 | 显示全部楼层
小孩房▼▼▼

_E1A8838.jpg

_E1A8837.jpg


回复 支持 反对

使用道具 举报

 楼主| 发表于 2020-9-27 08:18:01 | 显示全部楼层
女儿房▼▼▼

_E1A8840.jpg

回复 支持 反对

使用道具 举报

 楼主| 发表于 2020-9-27 08:18:33 | 显示全部楼层
玄关▼▼▼

_E1A8857.jpg


回复 支持 反对

使用道具 举报

您需要登录后才可以回帖 登录 | 立即注册

本版积分规则

全国统一客服电话
0570-8028505

24x7小时免费咨询

  • 官方在线客服

    QQ客服:小西

    点击交谈

    QQ客服:良子

    点击交谈

    QQ客服:闵月

    点击交谈
  • 衢州市柯城区财富中心3号楼2楼

  • 衢州格堂装饰有限公司

  • 扫一扫关注官方微信

    获取一手特惠信息

快速回复 返回顶部 返回列表