• 手机版

    扫码体验手机版

  • 微信公众号

    扫码关注公众号

登录注册
游客您好
第三方账号登陆

[衢州] 百汇路210-4-30#90㎡小法混搭 —-色诱

[复制链接]
发表于 2020-9-13 11:52:25 | 显示全部楼层 |阅读模式
色诱

格堂装饰为您全程记录装修全过程!

小区名称
百汇路
房屋面积
90㎡
户型结构
套房
装修风格
法式
装修方式
全包
装修造价
查看请联系客服万元
设计师
余工
项目经理
童工
装修公司
格堂装饰
完工实景
完工实景
水电全景
水电全景
VR全景
VR全景
设计说明
女主人是个画家,
骨子里拥有浪漫情怀,透露着俏皮名作,
充满艺术气息,
美是生活的调味剂,
给生活更多灵感和乐趣……
更多信息
本帖最后由 格堂小范 于 2020-9-13 11:54 编辑


回复

使用道具 举报

 楼主| 发表于 2020-9-13 12:03:24 | 显示全部楼层
效果图


微信图片_20200913113933.jpg

微信图片_20200913113936.jpg


微信图片_20200913113939.jpg
回复 支持 反对

使用道具 举报

 楼主| 发表于 2020-9-13 12:03:50 | 显示全部楼层
原始结构图


微信图片_20200913114054.jpg


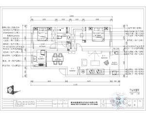
平面布置图


微信图片_20200913114059.jpg
回复 支持 反对

使用道具 举报

 楼主| 发表于 2020-9-13 15:03:10 | 显示全部楼层
开工之前做好准备工作

IMG_20200907_090214.jpg

IMG_20200907_090235.jpg


IMG_20200907_090226.jpg



IMG_20200907_090350.jpg


IMG_20200907_090257.jpg
回复 支持 反对

使用道具 举报

 楼主| 发表于 2020-9-13 15:09:24 | 显示全部楼层
临时马桶安放到位,时刻保持工地卫生干净

IMG_20200907_090427.jpg


IMG_20200907_090626.jpg


IMG_20200907_090634.jpg

下水管道用格堂专用保护盖保护到位,防止后期沙子石堵塞

IMG_20200907_090641.jpg

大门保护到位

微信图片_20200913114249.jpg



回复 支持 反对

使用道具 举报

 楼主| 发表于 2020-9-13 15:11:13 | 显示全部楼层
开工道具准备到位


IMG_20200907_090613.jpg
回复 支持 反对

使用道具 举报

 楼主| 发表于 2020-9-13 15:13:24 | 显示全部楼层
现场放样,有需要拆改的地方标记在墙面上


IMG_20200907_091126.jpg


IMG_20200907_090652.jpg


IMG_20200907_091211.jpg



IMG_20200907_091317.jpg
回复 支持 反对

使用道具 举报

 楼主| 发表于 2020-9-13 15:15:19 | 显示全部楼层

现场和业主进行拆改放样

IMG_20200907_091325.jpg

IMG_20200907_091411.jpg


IMG_20200907_091340.jpg
回复 支持 反对

使用道具 举报

 楼主| 发表于 2020-9-13 15:16:16 | 显示全部楼层

地面瓷砖保护到位


IMG_20200907_091627.jpg


IMG_20200907_091626.jpg



IMG_20200907_091629.jpg



IMG_20200907_091620.jpg



IMG_20200907_091622.jpg


回复 支持 反对

使用道具 举报

 楼主| 发表于 2020-9-13 15:20:19 | 显示全部楼层

开工之前做好准备工作

IMG_20200907_091636.jpg

IMG_20200907_091638.jpg



IMG_20200907_091644.jpg



IMG_20200907_091642.jpg



IMG_20200907_091646.jpg
回复 支持 反对

使用道具 举报

您需要登录后才可以回帖 登录 | 立即注册

本版积分规则

全国统一客服电话
0570-8028505

24x7小时免费咨询

  • 官方在线客服

    QQ客服:小西

    点击交谈

    QQ客服:良子

    点击交谈

    QQ客服:闵月

    点击交谈
  • 衢州市柯城区财富中心3号楼2楼

  • 衢州格堂装饰有限公司

  • 扫一扫关注官方微信

    获取一手特惠信息

快速回复 返回顶部 返回列表