• 手机版

    扫码体验手机版

  • 微信公众号

    扫码关注公众号

登录注册
游客您好
第三方账号登陆

[衢州] 衢州公馆26-#380㎡现代——简约空间里的一抹禅意

[复制链接]
发表于 2020-9-8 09:02:28 | 显示全部楼层 |阅读模式
简约空间里的一抹禅意

格堂装饰为您全程记录装修全过程!

小区名称
衢州公馆
房屋面积
380㎡
户型结构
排屋
装修风格
现代
装修方式
半包
装修造价
查看请联系客服万元
设计师
王工
项目经理
施工
装修公司
格堂装饰
完工实景
完工实景
水电全景
水电全景
VR全景
VR全景
设计说明
设计理念:我们平衡历史文化与现代美学的关系,
以日式的禅意轻松与现代的简洁有力为空间依循,
采用大量原木元素+留白设计,承袭简约而不简单的现代风格。
走进这个家,便进入了另一个世界,
时间变得缓慢下来,身心得到彻底的放松,
完全沉浸在自己的世界里。
更多信息
本帖最后由 格堂小范 于 2020-9-8 09:04 编辑


回复

使用道具 举报

 楼主| 发表于 2020-9-8 09:17:26 | 显示全部楼层
效果图


微信图片_20200908085724.jpg


微信图片_20200908085742.jpg
回复 支持 反对

使用道具 举报

 楼主| 发表于 2020-9-8 09:23:59 | 显示全部楼层


原始结构图

1楼.jpg

3楼.jpg




2楼.jpg



地下室.jpg
回复 支持 反对

使用道具 举报

 楼主| 发表于 2020-9-8 09:24:38 | 显示全部楼层
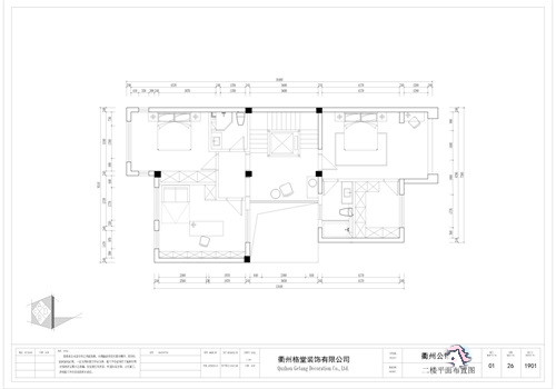
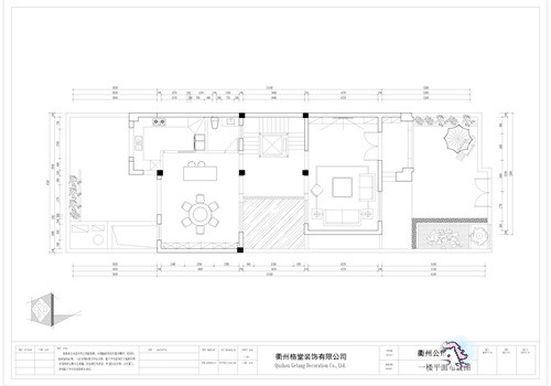
平面布置图


1楼.jpg

2楼.jpg



3楼.jpg



地下室.jpg
回复 支持 反对

使用道具 举报

 楼主| 发表于 2020-12-1 16:56:39 | 显示全部楼层
本帖最后由 格堂小范 于 2020-12-1 16:59 编辑

项目经理  设计师  现场和业主 进行拆改放样交接

IMG_20200818_090145.jpg

IMG_20200818_084225.jpg


IMG_20200818_084546.jpg


IMG_20200818_084129.jpg


IMG_20200818_085544.jpg
回复 支持 反对

使用道具 举报

 楼主| 发表于 2020-12-1 16:59:04 | 显示全部楼层
开工道具准备到位


IMG_20200818_090453.jpg

IMG_20200818_083911.jpg



回复 支持 反对

使用道具 举报

 楼主| 发表于 2020-12-1 17:00:25 | 显示全部楼层
开工吉时已到  恭祝业主开工大吉


IMG_20200818_090847_1.jpg


装修开工第一锤应该由业主敲在要拆除的墙体的墙角(即拐角)上,象征一锤定音的意思,也是新房动土的一种表示方式。

IMG_20200818_090915.jpg
回复 支持 反对

使用道具 举报

 楼主| 发表于 2020-12-1 17:01:22 | 显示全部楼层
拆改阶段


IMG_20200826_105235.jpg


IMG_20200826_105239.jpg


IMG_20200826_105244.jpg


IMG_20200826_105252.jpg


IMG_20200826_105258.jpg
回复 支持 反对

使用道具 举报

 楼主| 发表于 2020-12-1 17:01:42 | 显示全部楼层
墙体拆改


IMG_20200826_105308.jpg


IMG_20200826_105329.jpg


IMG_20200826_105340.jpg


IMG_20200826_105347.jpg


IMG_20200826_105355.jpg
回复 支持 反对

使用道具 举报

 楼主| 发表于 2020-12-1 17:02:24 | 显示全部楼层

窗户铝合金拆除

IMG_20200826_105404.jpg


IMG_20200826_105444.jpg


IMG_20200826_105425.jpg


IMG_20200826_105447.jpg


IMG_20200826_105459.jpg
回复 支持 反对

使用道具 举报

您需要登录后才可以回帖 登录 | 立即注册

本版积分规则

全国统一客服电话
0570-8028505

24x7小时免费咨询

  • 官方在线客服

    QQ客服:小西

    点击交谈

    QQ客服:良子

    点击交谈

    QQ客服:闵月

    点击交谈
  • 衢州市柯城区财富中心3号楼2楼

  • 衢州格堂装饰有限公司

  • 扫一扫关注官方微信

    获取一手特惠信息

快速回复 返回顶部 返回列表