• 手机版

    扫码体验手机版

  • 微信公众号

    扫码关注公众号

登录注册
游客您好
第三方账号登陆

[衢州] 牡丹园12-3-90#180㎡新中式 —-幽.静

[复制链接]
发表于 2020-9-8 08:45:38 | 显示全部楼层 |阅读模式
幽.静

格堂装饰为您全程记录装修全过程!

小区名称
牡丹园
房屋面积
180㎡
户型结构
套房
装修风格
新中式
装修方式
半包
装修造价
查看请联系客服万元
设计师
周工
项目经理
余工
装修公司
格堂装饰
完工实景
完工实景
水电全景
水电全景
VR全景
VR全景
设计说明
现代与中式的相遇,矛盾却又如此和谐,
散发出它与众不同的魅力。
阳光透过轻纱,洒满整个客厅。
宁静高雅的格调,简单而层层丰盈。
线条凝练流畅,
布局中正大方,
彰显雄浑邈远的东方气魄。
更多信息

回复

使用道具 举报

 楼主| 发表于 2020-9-8 08:48:03 | 显示全部楼层
效果图


图片4.png



图片3.png
回复 支持 反对

使用道具 举报

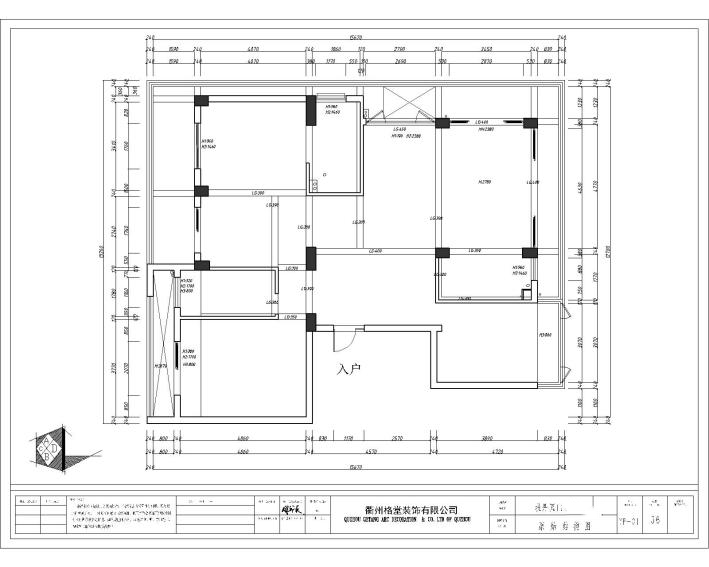
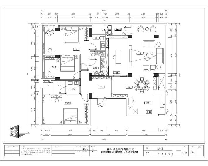
 楼主| 发表于 2020-9-8 08:48:23 | 显示全部楼层
原始结构图


图片1.png



平面布置图



图片2.png
回复 支持 反对

使用道具 举报

 楼主| 发表于 2020-9-16 14:19:38 | 显示全部楼层
开工之前做好准备工作



微信图片_20200916141221.jpg

微信图片_20200916141234.jpg


微信图片_20200916141240.jpg


微信图片_20200916141244.jpg


微信图片_20200916141254.jpg
回复 支持 反对

使用道具 举报

 楼主| 发表于 2020-9-16 14:20:29 | 显示全部楼层
下水管道用格堂专用保护盖保护到位,防止后期沙子石堵塞

微信图片_20200916141247.jpg

微信图片_20200916141308.jpg



微信图片_20200916141325.jpg



大门和煤气表保护到位



微信图片_20200916141317.jpg



微信图片_20200916141321.jpg
回复 支持 反对

使用道具 举报

 楼主| 发表于 2020-9-16 14:20:59 | 显示全部楼层
现场和业主进行拆改交接


微信图片_20200916141251.jpg


微信图片_20200916141257.jpg


微信图片_20200916141301.jpg



微信图片_20200916141304.jpg


微信图片_20200916141311.jpg
回复 支持 反对

使用道具 举报

 楼主| 发表于 2020-9-16 14:21:33 | 显示全部楼层

开工道具

微信图片_20200916141328.jpg


微信图片_20200916141331.jpg



回复 支持 反对

使用道具 举报

 楼主| 发表于 2020-9-16 14:22:08 | 显示全部楼层
开工大吉


微信图片_20200916141334.jpg

装修开工第一锤应该由业主敲在要拆除的墙体的墙角(即拐角)上,象征一锤定音的意思,也是新房动土的一种表示方式。


微信图片_20200916141338.jpg


回复 支持 反对

使用道具 举报

 楼主| 发表于 2020-9-16 14:24:44 | 显示全部楼层
墙体拆改


IMG_20200902_102217.jpg

IMG_20200902_102218.jpg


IMG_20200902_102220.jpg


IMG_20200902_102228.jpg


IMG_20200902_102232.jpg
回复 支持 反对

使用道具 举报

 楼主| 发表于 2020-9-16 14:25:44 | 显示全部楼层
根据图纸进行拆改


IMG_20200902_102236.jpg

IMG_20200902_102238.jpg


IMG_20200902_102239.jpg


IMG_20200902_102247.jpg



IMG_20200902_102250.jpg
回复 支持 反对

使用道具 举报

您需要登录后才可以回帖 登录 | 立即注册

本版积分规则

全国统一客服电话
0570-8028505

24x7小时免费咨询

  • 官方在线客服

    QQ客服:小西

    点击交谈

    QQ客服:良子

    点击交谈

    QQ客服:闵月

    点击交谈
  • 衢州市柯城区财富中心3号楼2楼

  • 衢州格堂装饰有限公司

  • 扫一扫关注官方微信

    获取一手特惠信息

快速回复 返回顶部 返回列表