• 手机版

    扫码体验手机版

  • 微信公众号

    扫码关注公众号

登录注册
游客您好
第三方账号登陆

[衢州] 博纳雅苑20#351㎡现代美式—— 听见自然的声音

[复制链接]
发表于 2020-9-1 08:59:46 | 显示全部楼层 |阅读模式
听见自然的声音

格堂装饰为您全程记录装修全过程!

小区名称
博纳雅苑
房屋面积
351㎡
户型结构
排屋
装修风格
美式
装修方式
半包
装修造价
查看请联系客服万元
设计师
许工
项目经理
余工
装修公司
格堂装饰
完工实景
完工实景
水电全景
水电全景
VR全景
VR全景
设计说明
“生活的魅力在于自由、从容的处于大自然之间,学会坐在房子里享受家的感觉,让家像天空、树木和大地那样的呵护自己”。
更多信息

效果图
博纳雅苑负一多功能区_看图王.jpg

博纳雅苑负二沙发背景_看图王.jpg

博纳雅苑父母房床头背景_看图王.jpg

博纳雅苑一层沙发背景_看图王.jpg

博纳雅苑主卧背景_看图王.jpg
回复

使用道具 举报

 楼主| 发表于 2020-9-1 09:04:15 | 显示全部楼层

二楼原始结构图
1551c80087a730dff66118142528b03.png
负二楼原始结构图
611414e1848e05a40d2be1e448e387a.png
三楼原始结构图
870405f028ed9767a1f3c00e5907178.png
负一楼原始结构图
2247259f432a6aefb39a69982c82f19.png
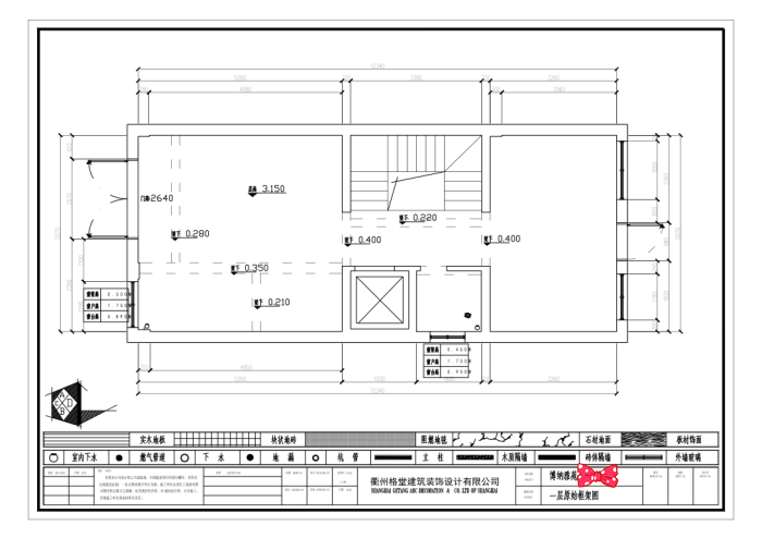
一楼原始结构图
e099e1e8117efbe5e844e128d087c22.png
回复 支持 反对

使用道具 举报

 楼主| 发表于 2020-9-1 09:08:48 | 显示全部楼层
负二楼平面布置图
3f6c010ea16cbd5d4dbe90933f69e3e.png
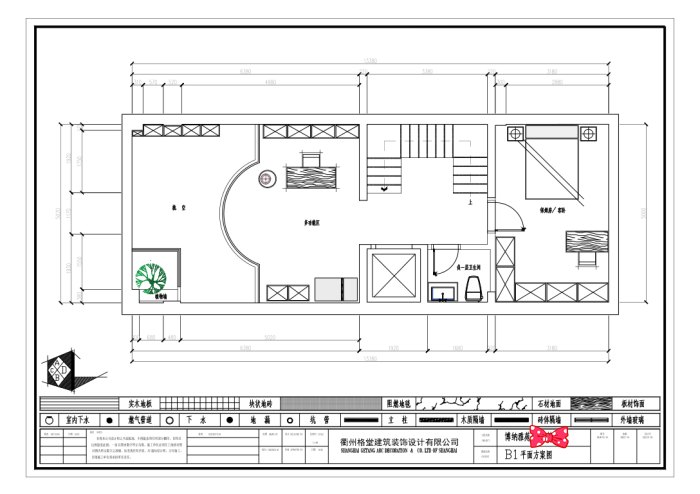
负一楼平面布置图
0410c62baea00a61d6d5c78b16b6042.png
三楼平面布置图
5daf1f3d43dbfd0261b40002210c108.png
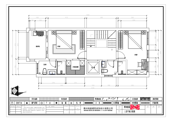
二楼平面布置图
a7b703c6ccb3e49998eb1691e0a734c.png
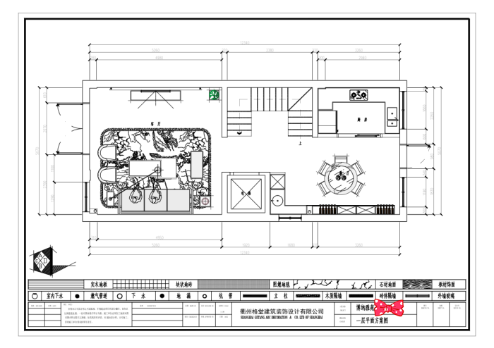
一楼平面布置图
c8c9fe879189591323b5bed95509c80.png
回复 支持 反对

使用道具 举报

 楼主| 发表于 2020-9-1 09:10:59 | 显示全部楼层

开工前项目经理和敲墙的师傅正在布置开工桌。
IMG_20200826_084054.jpg

IMG_20200826_084506.jpg

IMG_20200826_084721.jpg
回复 支持 反对

使用道具 举报

 楼主| 发表于 2020-9-1 09:52:45 | 显示全部楼层

下水管用格堂专用保护盖保护,防止砂石堵塞管道。
IMG_20200826_090210.jpg

IMG_20200826_090212.jpg

IMG_20200826_090229.jpg

IMG_20200826_090323.jpg

IMG_20200826_090242.jpg
回复 支持 反对

使用道具 举报

 楼主| 发表于 2020-9-1 09:53:48 | 显示全部楼层

临时马桶:每一个施工现场都会配备临时小便斗,并且时刻保持干净卫生、保证工地环境干净、整洁。
IMG_20200826_090358.jpg
回复 支持 反对

使用道具 举报

 楼主| 发表于 2020-9-1 09:54:28 | 显示全部楼层

项目经理正在保护门槛
IMG_20200826_091036.jpg
回复 支持 反对

使用道具 举报

 楼主| 发表于 2020-9-1 10:26:06 | 显示全部楼层

礼炮已经准备好了
IMG_20200826_083924.jpg
回复 支持 反对

使用道具 举报

 楼主| 发表于 2020-9-1 10:27:02 | 显示全部楼层

开工锤已经准备好了
IMG_20200826_084143.jpg
回复 支持 反对

使用道具 举报

 楼主| 发表于 2020-9-1 10:28:07 | 显示全部楼层

给业主大人送上美丽的鲜花
IMG_20200826_091049.jpg
回复 支持 反对

使用道具 举报

您需要登录后才可以回帖 登录 | 立即注册

本版积分规则

全国统一客服电话
0570-8028505

24x7小时免费咨询

  • 官方在线客服

    QQ客服:小西

    点击交谈

    QQ客服:良子

    点击交谈

    QQ客服:闵月

    点击交谈
  • 衢州市柯城区财富中心3号楼2楼

  • 衢州格堂装饰有限公司

  • 扫一扫关注官方微信

    获取一手特惠信息

快速回复 返回顶部 返回列表