• 手机版

    扫码体验手机版

  • 微信公众号

    扫码关注公众号

登录注册
游客您好
第三方账号登陆

[龙游] 印江南7#109㎡北欧风——生活里的时光

[复制链接]
发表于 2020-7-8 16:10:03 | 显示全部楼层 |阅读模式
生活里的时光

格堂装饰为您全程记录装修全过程!

小区名称
印江南
房屋面积
109㎡
户型结构
套房
装修风格
北欧
装修方式
半包
装修造价
查看请联系客服万元
设计师
王工
项目经理
杨工
装修公司
格堂装饰
完工实景
完工实景
水电全景
水电全景
VR全景
VR全景
设计说明
生活有千万种可能,总有一种是你想要的样子,
在心中种植一处安静,摆脱生命外表的喧闹与不安
因妥贴而安睡,因宁静而生暖。
这套房子是业主夫妻两个的养老房子,更注重房子的功能和舒适性,简单永远是惬意生活的前奏,无琐碎打搅,每个家都像是一个“容器”,但它包含的不是风格,而是生活。
更多信息
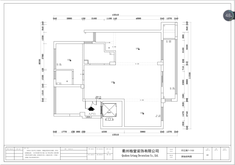
原始结构图

图片1.png
回复

使用道具 举报

 楼主| 发表于 2020-7-8 16:10:21 | 显示全部楼层
平面布置图

图片2.png
回复 支持 反对

使用道具 举报

 楼主| 发表于 2020-7-8 16:10:39 | 显示全部楼层
效果图

图片3.png

图片4.png
回复 支持 反对

使用道具 举报

 楼主| 发表于 2020-7-8 16:10:58 | 显示全部楼层
IMG_6318.JPG
回复 支持 反对

使用道具 举报

 楼主| 发表于 2020-7-8 16:14:28 | 显示全部楼层
墙固(黄墙)的作用:承上启下:巩固墙面基底,且允许其他物质更好地覆盖其中,同时起到封底的作用。提高界面附着力:墙固具有优异的渗透性,能充分浸润墙体基层材料表面,通过胶联使基层密实,提高界面附着力,提高灰浆或腻子和墙体表面的粘接强度,防止空鼓。适用于砖混墙面抹灰划批刮腻子前基层的密实处理。通俗的说就是让后期批腻子更好的与墙面粘接

IMG_6309.JPG

IMG_6310.JPG
回复 支持 反对

使用道具 举报

 楼主| 发表于 2020-7-8 16:14:43 | 显示全部楼层
IMG_6311.JPG

IMG_6312.JPG
回复 支持 反对

使用道具 举报

 楼主| 发表于 2020-7-8 16:15:10 | 显示全部楼层
水电放样

IMG_6313.JPG

IMG_6314.JPG

IMG_6315.JPG
回复 支持 反对

使用道具 举报

 楼主| 发表于 2020-7-8 16:15:22 | 显示全部楼层
IMG_6316.JPG
回复 支持 反对

使用道具 举报

 楼主| 发表于 2020-7-8 16:15:53 | 显示全部楼层
IMG_5736.JPG

IMG_5737.JPG

IMG_5738.JPG
回复 支持 反对

使用道具 举报

 楼主| 发表于 2020-7-8 16:16:13 | 显示全部楼层
IMG_5739.JPG

IMG_5740.JPG

IMG_5741.JPG
回复 支持 反对

使用道具 举报

您需要登录后才可以回帖 登录 | 立即注册

本版积分规则

全国统一客服电话
0570-8028505

24x7小时免费咨询

  • 官方在线客服

    QQ客服:小西

    点击交谈

    QQ客服:良子

    点击交谈

    QQ客服:闵月

    点击交谈
  • 衢州市柯城区财富中心3号楼2楼

  • 衢州格堂装饰有限公司

  • 扫一扫关注官方微信

    获取一手特惠信息

快速回复 返回顶部 返回列表