• 手机版

    扫码体验手机版

  • 微信公众号

    扫码关注公众号

登录注册
游客您好
第三方账号登陆

[开化] 中梁望府31-1-20#87m2---现代简约的温馨时尚

[复制链接]
发表于 2020-6-30 10:10:49 | 显示全部楼层 |阅读模式
中梁望府31-1-20#87m2---现代简约的温馨时尚

格堂装饰为您全程记录装修全过程!

小区名称
中梁望府
房屋面积
87㎡
户型结构
套房
装修风格
现代
装修方式
全包
装修造价
查看请联系客服万元
设计师
董工
项目经理
郑工
装修公司
格堂装饰
完工实景
完工实景
水电全景
水电全景
VR全景
VR全景
设计说明
淡淡现代风,简约而不简单,造型简洁,没有过多复杂的造型而又不失温馨和时尚。功能实用而且丰富。
更多信息

效果图
微信图片_20200630090030.png

微信图片_20200630090027.png
回复

使用道具 举报

 楼主| 发表于 2020-6-30 10:26:24 | 显示全部楼层
本帖最后由 格堂小韩 于 2020-7-16 14:41 编辑

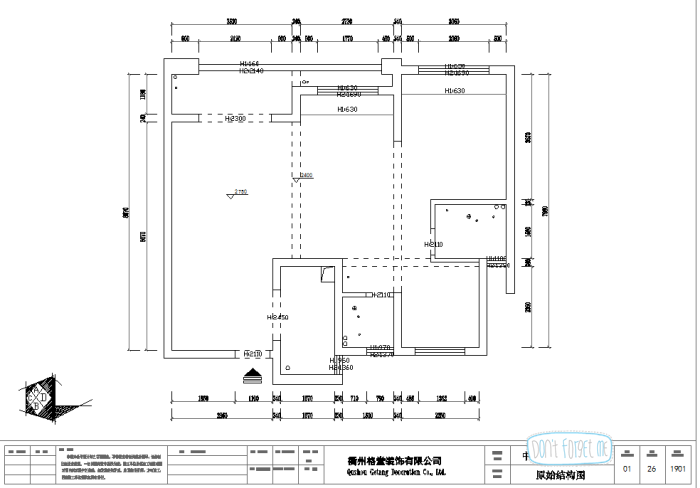
原始结构图
微信图片_20200630090021_副本.png
回复 支持 反对

使用道具 举报

 楼主| 发表于 2020-6-30 10:26:43 | 显示全部楼层
本帖最后由 格堂小韩 于 2020-7-16 14:41 编辑

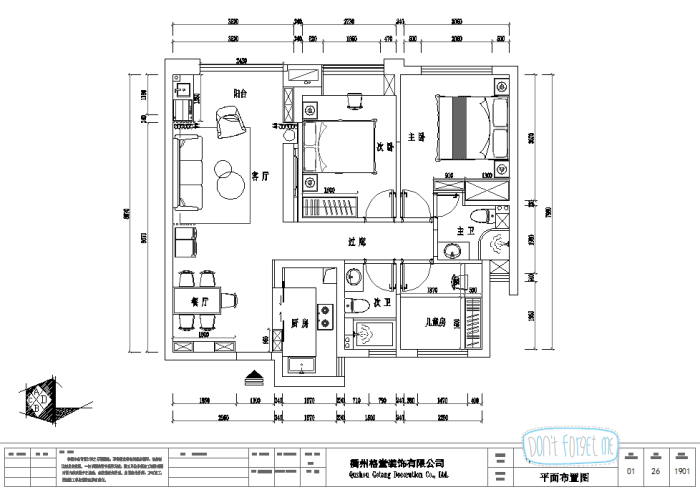
平面布置图
微信图片_20200630090006_副本.png
回复 支持 反对

使用道具 举报

 楼主| 发表于 2020-6-30 10:28:20 | 显示全部楼层

施工铭牌钉起来
IMG_4727.JPG
门套保护
IMG_4728.JPG
回复 支持 反对

使用道具 举报

 楼主| 发表于 2020-6-30 10:28:55 | 显示全部楼层

下水道用格堂保护盖保护好
IMG_4723.JPG

IMG_4724.JPG

IMG_4725.JPG

IMG_4726.JPG
回复 支持 反对

使用道具 举报

 楼主| 发表于 2020-6-30 10:29:47 | 显示全部楼层

开工前,墙面地面空鼓检查起来
IMG_4708.JPG

IMG_4709.JPG
回复 支持 反对

使用道具 举报

 楼主| 发表于 2020-6-30 11:15:49 | 显示全部楼层
吉时到咯,开工大吉
IMG_4716_副本.jpg
回复 支持 反对

使用道具 举报

 楼主| 发表于 2020-6-30 11:17:14 | 显示全部楼层

由我们的小业主敲下第一锤(装修开工第一锤应该敲在要拆除的墙体的墙角(即拐角)上,象征一锤定音的意思,也是新房动土的一种表示方式。) IMG_4719.JPG

IMG_4720.JPG
回复 支持 反对

使用道具 举报

 楼主| 发表于 2020-7-16 14:50:57 | 显示全部楼层

大门及门口的墙面地面保护好
微信图片_20200716142015.jpg

IMG_5180.JPG
回复 支持 反对

使用道具 举报

 楼主| 发表于 2020-7-16 14:53:51 | 显示全部楼层

设计师和项目经理现场进行拆墙放样,对照图纸,不会出错哦
IMG_5182.JPG

IMG_5180.JPG

IMG_5181.JPG

IMG_5183.JPG

IMG_5184.JPG
回复 支持 反对

使用道具 举报

您需要登录后才可以回帖 登录 | 立即注册

本版积分规则

全国统一客服电话
0570-8028505

24x7小时免费咨询

  • 官方在线客服

    QQ客服:小西

    点击交谈

    QQ客服:良子

    点击交谈

    QQ客服:闵月

    点击交谈
  • 衢州市柯城区财富中心3号楼2楼

  • 衢州格堂装饰有限公司

  • 扫一扫关注官方微信

    获取一手特惠信息

快速回复 返回顶部 返回列表