• 手机版

    扫码体验手机版

  • 微信公众号

    扫码关注公众号

登录注册
游客您好
第三方账号登陆

[衢州] 戴村自建房150㎡现代简约——回味

[复制链接]
发表于 2020-6-29 14:51:28 | 显示全部楼层 |阅读模式
回味

格堂装饰为您全程记录装修全过程!

小区名称
戴村
房屋面积
150㎡
户型结构
排屋
装修风格
现代
装修方式
半包
装修造价
查看请联系客服万元
设计师
万工
项目经理
周工
装修公司
格堂装饰
完工实景
完工实景
水电全景
水电全景
VR全景
VR全景
设计说明
首先要说明的是简约是不等于简单的,这个是特别强调的。简约是经过深思熟虑过后经过创新设计得出的思路延展,而不是简单的堆砌或者是摆放。现代风格就是简单而具有品味的设计风格,它在细节上的把握是非常重要的,在现实装修中更是非常不容易达到的一种效果。
更多信息
本帖最后由 格堂月红 于 2020-6-29 15:05 编辑

效果图
8287979b46cd1ecebda5a8a3ae9ace7.png
回复

使用道具 举报

 楼主| 发表于 2020-6-29 14:53:39 | 显示全部楼层

一楼原始结构图
12f34c8c60f228902d0b242aad66069.png
二楼原始结构图
579aaf1adbc71b88e0bd862f5082758.png
回复 支持 反对

使用道具 举报

 楼主| 发表于 2020-6-29 14:56:12 | 显示全部楼层

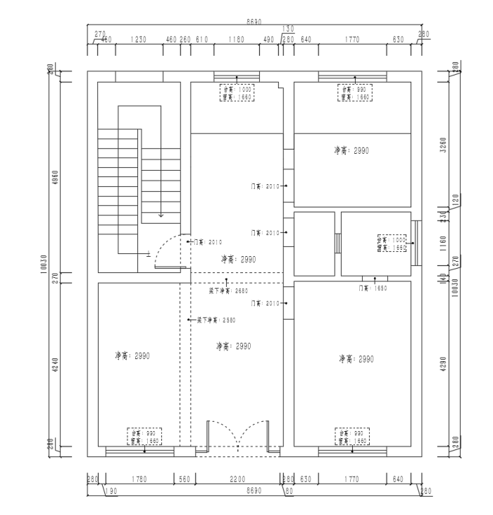
一楼平面布置图
f8dbf6c7fd0a76755ceca1cc230eef3.png
二楼平面布置图
35275d34bdba1bb5cdb127bd1ba8fd3.png
回复 支持 反对

使用道具 举报

 楼主| 发表于 2020-6-29 14:58:23 | 显示全部楼层

开工前大门已经保护到位。
IMG_20200624_105730.jpg

IMG_20200624_105735.jpg
回复 支持 反对

使用道具 举报

 楼主| 发表于 2020-6-29 14:59:59 | 显示全部楼层

二楼移门已经保护到位,开工桌也都准备好了。
IMG_20200624_105748.jpg

IMG_20200624_105750.jpg

IMG_20200624_105752.jpg

IMG_20200624_105754.jpg

IMG_20200624_105755.jpg
回复 支持 反对

使用道具 举报

 楼主| 发表于 2020-6-29 15:00:51 | 显示全部楼层

项目经理正在验房
IMG_20200624_105917.jpg

IMG_20200624_105923.jpg
回复 支持 反对

使用道具 举报

 楼主| 发表于 2020-6-29 15:01:48 | 显示全部楼层

二楼墙面顶部有裂缝
IMG_20200624_110309.jpg
墙面渗水
IMG_20200624_110207.jpg

IMG_20200624_110248.jpg

IMG_20200624_110313.jpg
回复 支持 反对

使用道具 举报

 楼主| 发表于 2020-6-29 15:05:22 | 显示全部楼层

临时马桶:每一个施工现场都会配备临时小便斗,并且时刻保持干净卫生、保证工地环境干净、整洁。
IMG_20200624_105834.jpg
回复 支持 反对

使用道具 举报

 楼主| 发表于 2020-6-29 15:06:42 | 显示全部楼层

礼炮已经准备好了
IMG_20200624_105822.jpg
回复 支持 反对

使用道具 举报

 楼主| 发表于 2020-6-29 15:07:28 | 显示全部楼层

给业主大人送上美丽的鲜花。
IMG_20200624_105722.jpg
回复 支持 反对

使用道具 举报

您需要登录后才可以回帖 登录 | 立即注册

本版积分规则

全国统一客服电话
0570-8028505

24x7小时免费咨询

  • 官方在线客服

    QQ客服:小西

    点击交谈

    QQ客服:良子

    点击交谈

    QQ客服:闵月

    点击交谈
  • 衢州市柯城区财富中心3号楼2楼

  • 衢州格堂装饰有限公司

  • 扫一扫关注官方微信

    获取一手特惠信息

快速回复 返回顶部 返回列表