• 手机版

    扫码体验手机版

  • 微信公众号

    扫码关注公众号

登录注册
游客您好
第三方账号登陆

[衢州] 衢州公馆34-#385㎡日式—一方半舍

[复制链接]
发表于 2020-6-28 17:05:05 | 显示全部楼层 |阅读模式
一方半舍

格堂装饰为您全程记录装修全过程!

小区名称
衢州公馆
房屋面积
385㎡
户型结构
别墅
装修风格
日式
装修方式
半包
装修造价
查看请联系客服万元
设计师
毛工
项目经理
施工
装修公司
格堂装饰
完工实景
完工实景
水电全景
水电全景
VR全景
VR全景
设计说明
舍,居也;半舍,一舍之半。

当房屋不仅仅以‘居住’为要义,
空间也就有了更自在的去处。
更多信息

回复

使用道具 举报

 楼主| 发表于 2020-6-28 17:09:06 | 显示全部楼层
本帖最后由 格堂小范 于 2020-6-28 17:11 编辑

原始结构图

微信图片_20200628164917.jpg

微信图片_20200628164920.jpg



微信图片_20200628164926.jpg



微信图片_20200628164823.jpg


回复 支持 反对

使用道具 举报

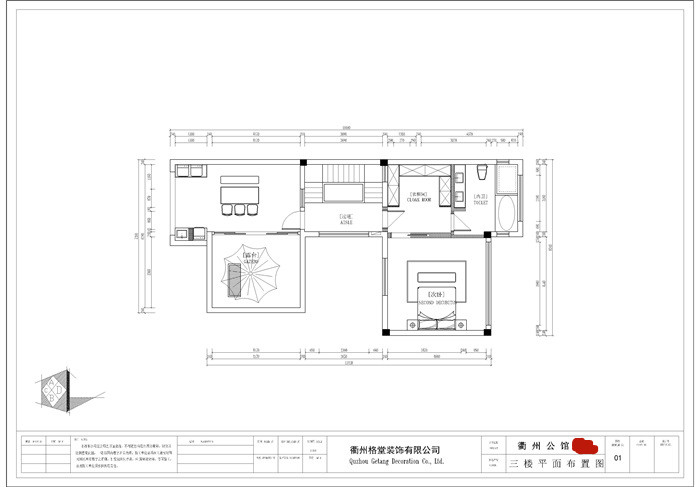
 楼主| 发表于 2020-6-28 17:12:05 | 显示全部楼层
平面布置图

微信图片_20200628164923.jpg


微信图片_20200628164914.jpg


微信图片_20200628164911.jpg



微信图片_20200628164908.jpg



回复 支持 反对

使用道具 举报

 楼主| 发表于 2020-6-28 17:12:23 | 显示全部楼层
效果图


回复

使用道具 举报

 楼主| 发表于 2020-7-1 12:13:27 | 显示全部楼层
开工道具准备


IMG_20200616_085204.jpg



开工吉时已到,恭祝业主开工大吉

IMG_20200616_090336.jpg


IMG_20200616_090011.jpg
回复 支持 反对

使用道具 举报

 楼主| 发表于 2020-7-1 12:14:04 | 显示全部楼层
装修开工第一锤应该敲在要拆除的墙体的墙角(即拐角)上,象征一锤定音的意思,也是新房动土的一种表示方式


IMG_20200616_085812.jpg
回复 支持 反对

使用道具 举报

 楼主| 发表于 2020-7-1 12:14:29 | 显示全部楼层
临时马桶安放到位,时刻保持工地卫生干净

IMG_20200616_085721.jpg
回复 支持 反对

使用道具 举报

 楼主| 发表于 2020-7-1 12:28:39 | 显示全部楼层
拆改下来的铝合金

IMG_20200618_104125.jpg


IMG_20200618_104113.jpg


IMG_20200618_104122.jpg



IMG_20200620_105236.jpg


IMG_20200620_105238.jpg
回复 支持 反对

使用道具 举报

 楼主| 发表于 2020-7-1 12:29:26 | 显示全部楼层




IMG_20200620_105255.jpg


IMG_20200620_105259.jpg

拆改之前大门保护到位

IMG_20200620_105250.jpg


IMG_20200620_105247.jpg



IMG_20200620_105301.jpg
回复 支持 反对

使用道具 举报

 楼主| 发表于 2020-7-1 14:34:45 | 显示全部楼层


墙体拆除

IMG_20200620_105315.jpg


IMG_20200620_105304.jpg


IMG_20200620_105324.jpg



IMG_20200620_105318.jpg



IMG_20200620_105317.jpg
回复 支持 反对

使用道具 举报

您需要登录后才可以回帖 登录 | 立即注册

本版积分规则

全国统一客服电话
0570-8028505

24x7小时免费咨询

  • 官方在线客服

    QQ客服:小西

    点击交谈

    QQ客服:良子

    点击交谈

    QQ客服:闵月

    点击交谈
  • 衢州市柯城区财富中心3号楼2楼

  • 衢州格堂装饰有限公司

  • 扫一扫关注官方微信

    获取一手特惠信息

快速回复 返回顶部 返回列表