• 手机版

    扫码体验手机版

  • 微信公众号

    扫码关注公众号

登录注册
游客您好
第三方账号登陆

[衢州] 誉江南17-2-6#128㎡现代 —--简洁设计,宁静质朴的家

[复制链接]
发表于 2020-6-23 14:45:01 | 显示全部楼层 |阅读模式
简洁设计,宁静质朴的家

格堂装饰为您全程记录装修全过程!

小区名称
誉江南
房屋面积
128㎡
户型结构
框架
装修风格
现代
装修方式
全包
装修造价
查看请联系客服万元
设计师
王工
项目经理
胡工
装修公司
格堂装饰
完工实景
完工实景
水电全景
水电全景
VR全景
VR全景
设计说明
此案采用现代设计风格,在本案设计中,设计师从情感出发,结合自然反璞色系的运用,营造了一个宁静质朴的家。,家,是情感与爱交融的场所,它并不需要金碧辉煌,亦不需要气势恢宏,它需要的是温暖和谐的生活意境以及符合居住者气质的生活方式。
更多信息
   效果图

微信图片_202006231442273.jpg

微信图片_202006231442272.jpg
回复

使用道具 举报

 楼主| 发表于 2020-6-23 14:46:58 | 显示全部楼层

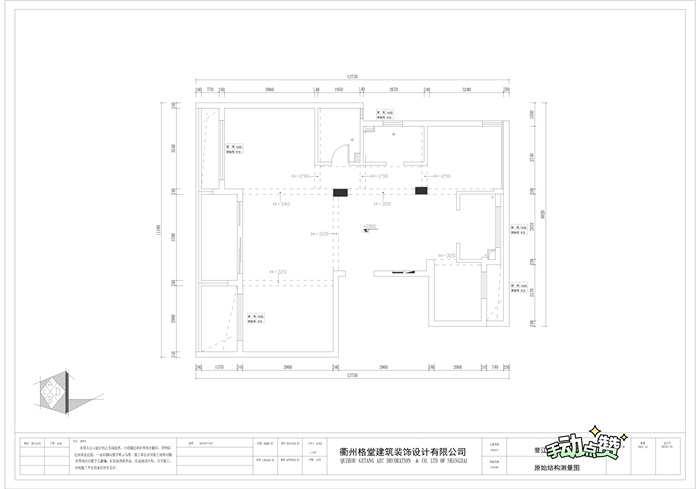
原始结构图
微信图片_20200623144227.jpg
回复 支持 反对

使用道具 举报

 楼主| 发表于 2020-6-23 14:48:32 | 显示全部楼层

平面布置图
微信图片_202006231442271.jpg
回复 支持 反对

使用道具 举报

 楼主| 发表于 2020-6-23 14:52:27 | 显示全部楼层
今天是个开工的好日子,首先给业主大人送上美丽的鲜花。

微信图片_202006231017529.jpg
回复 支持 反对

使用道具 举报

 楼主| 发表于 2020-6-23 14:54:26 | 显示全部楼层

下水管用格堂专用保护盖保护,防止砂石堵塞管道。

微信图片_2020062310175218.jpg


微信图片_2020062310175214.jpg



微信图片_2020062310175217.jpg
回复 支持 反对

使用道具 举报

 楼主| 发表于 2020-6-23 14:55:45 | 显示全部楼层
临时马桶:每一个施工现场都会配备临时小便斗,并且时刻保持干净卫生、保证工地环境干净、整洁。


微信图片_2020062310175215.jpg



微信图片_2020062310175216.jpg
回复 支持 反对

使用道具 举报

 楼主| 发表于 2020-6-23 14:58:19 | 显示全部楼层
大门门槛保护到位,防止装修磕碰到。

微信图片_2020062310175211.jpg



微信图片_2020062310175213.jpg

微信图片_2020062310175210.jpg


微信图片_2020062310175212.jpg
回复 支持 反对

使用道具 举报

 楼主| 发表于 2020-6-23 15:00:16 | 显示全部楼层
项目经理正在检查墙面空鼓

微信图片_202006231017511.jpg


微信图片_20200623101751.jpg

回复 支持 反对

使用道具 举报

 楼主| 发表于 2020-6-23 15:03:57 | 显示全部楼层
本帖最后由 格堂王建凤 于 2020-6-23 15:06 编辑

礼炮准备好了

微信图片_2020062310175219.jpg


一切准备就绪,就等吉时了。
微信图片_2020062310175220.jpg
回复 支持 反对

使用道具 举报

 楼主| 发表于 2020-6-23 15:08:26 | 显示全部楼层

吉时到开工了,恭祝业主大人开工大吉。
微信图片_2020062310175114.jpg


微信图片_202006231017515.jpg


微信图片_202006231017516.jpg
回复 支持 反对

使用道具 举报

您需要登录后才可以回帖 登录 | 立即注册

本版积分规则

全国统一客服电话
0570-8028505

24x7小时免费咨询

  • 官方在线客服

    QQ客服:小西

    点击交谈

    QQ客服:良子

    点击交谈

    QQ客服:闵月

    点击交谈
  • 衢州市柯城区财富中心3号楼2楼

  • 衢州格堂装饰有限公司

  • 扫一扫关注官方微信

    获取一手特惠信息

快速回复 返回顶部 返回列表