• 手机版

    扫码体验手机版

  • 微信公众号

    扫码关注公众号

登录注册
游客您好
第三方账号登陆

[衢州] 牡丹园12-3-120#120㎡中式—那一抹温度

[复制链接]
发表于 2020-6-14 08:51:57 | 显示全部楼层 |阅读模式
那一抹温度

格堂装饰为您全程记录装修全过程!

小区名称
牡丹园
房屋面积
120㎡
户型结构
套房
装修风格
中式
装修方式
半包
装修造价
查看请联系客服万元
设计师
王工
项目经理
胡工
装修公司
格堂装饰
完工实景
完工实景
水电全景
水电全景
VR全景
VR全景
设计说明
关于生活的趣味,以及对家、对生活最本真的热爱,此案空间以暖色调为主,
通过木饰面、大理石等材质,搭配出既具自然风味又存现代精致的设计,平衡生活的美。
更多信息

回复

使用道具 举报

 楼主| 发表于 2020-6-14 09:05:51 | 显示全部楼层
效果图


微信图片_20200614084106.jpg


微信图片_20200614084111.jpg



原始结构图



微信图片_20200614083745.jpg


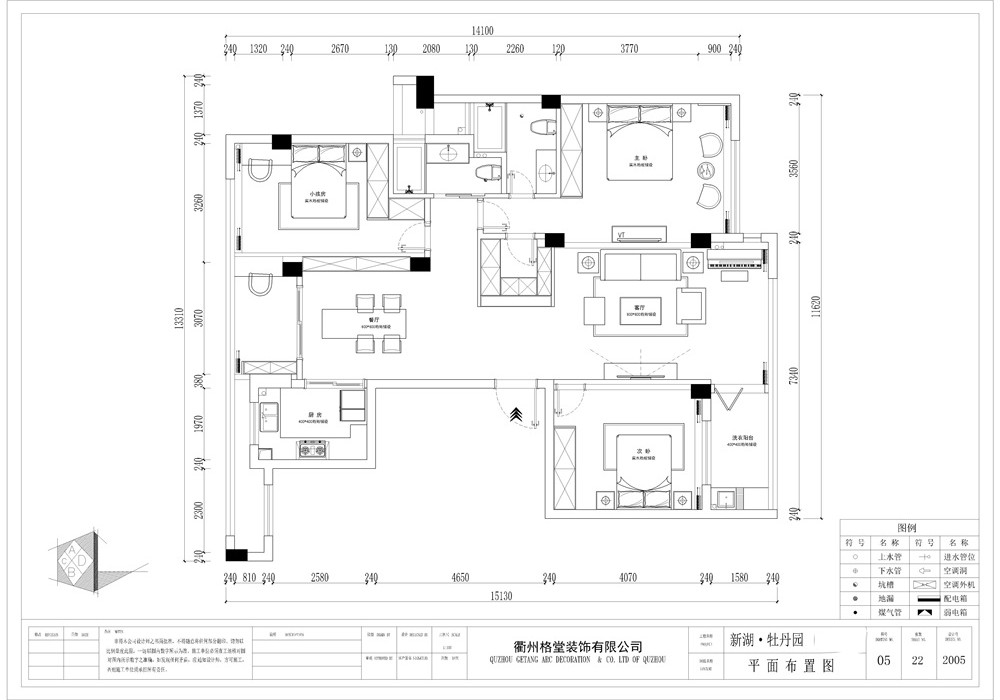
平面布置图

微信图片_20200614083817.jpg
回复 支持 反对

使用道具 举报

 楼主| 发表于 2020-6-14 09:12:47 | 显示全部楼层

临时马桶安放到位,保持工地卫生干净


IMG_20200607_090114.jpg

下水管道用格堂专用保护盖保护到位,防止后期沙石堵塞


IMG_20200607_090107.jpg



IMG_20200607_090116.jpg

煤气表保护到位

IMG_20200607_090119.jpg

回复 支持 反对

使用道具 举报

 楼主| 发表于 2020-6-14 09:14:14 | 显示全部楼层
开工之前准备到位

IMG_20200607_085606.jpg


IMG_20200607_090526.jpg
回复 支持 反对

使用道具 举报

 楼主| 发表于 2020-6-14 09:15:03 | 显示全部楼层
开工吉时已到,恭祝业主开工大吉


IMG_20200607_090224.jpg



装修开工第一锤应该敲在要拆除的墙体的墙角(即拐角)上,象征一锤定音的意思,也是新房动土的一种表示方式



IMG_20200607_085851.jpg



IMG_20200607_085933.jpg
回复 支持 反对

使用道具 举报

 楼主| 发表于 2020-6-14 15:23:13 | 显示全部楼层


拆改

IMG_20200611_104147.jpg


IMG_20200611_104203.jpg


IMG_20200611_104201.jpg



IMG_20200613_100152.jpg



IMG_20200613_100154.jpg
回复 支持 反对

使用道具 举报

 楼主| 发表于 2020-6-14 15:27:01 | 显示全部楼层
铲灰是为了降低后期油漆施工出现空鼓现象


IMG_20200613_100205.jpg


IMG_20200613_100207.jpg



IMG_20200613_100208.jpg



IMG_20200613_100222.jpg



IMG_20200613_100156.jpg
回复 支持 反对

使用道具 举报

 楼主| 发表于 2020-6-14 15:27:29 | 显示全部楼层
铲灰是为了降低后期油漆施工出现空鼓现象


IMG_20200613_100225.jpg



IMG_20200613_100227.jpg



IMG_20200613_100235.jpg



IMG_20200613_100244.jpg



IMG_20200613_100255.jpg
回复 支持 反对

使用道具 举报

 楼主| 发表于 2020-6-14 15:28:32 | 显示全部楼层


根据放样进行拆改

IMG_20200613_100321.jpg


IMG_20200613_100256.jpg



IMG_20200613_100258.jpg



IMG_20200613_100305.jpg



IMG_20200613_100308.jpg
回复 支持 反对

使用道具 举报

 楼主| 发表于 2020-6-14 15:29:15 | 显示全部楼层




IMG_20200613_100331.jpg

IMG_20200613_100340.jpg


IMG_20200613_100330.jpg


阳台


IMG_20200613_100342.jpg



IMG_20200613_100348.jpg
回复 支持 反对

使用道具 举报

您需要登录后才可以回帖 登录 | 立即注册

本版积分规则

全国统一客服电话
0570-8028505

24x7小时免费咨询

  • 官方在线客服

    QQ客服:小西

    点击交谈

    QQ客服:良子

    点击交谈

    QQ客服:闵月

    点击交谈
  • 衢州市柯城区财富中心3号楼2楼

  • 衢州格堂装饰有限公司

  • 扫一扫关注官方微信

    获取一手特惠信息

快速回复 返回顶部 返回列表