• 手机版

    扫码体验手机版

  • 微信公众号

    扫码关注公众号

登录注册
游客您好
第三方账号登陆

[衢州] 碧水湾136--30#㎡现代简约——简单的生活

[复制链接]
发表于 2020-6-11 14:57:26 | 显示全部楼层 |阅读模式
简单的生活

格堂装饰为您全程记录装修全过程!

小区名称
碧水湾
房屋面积
81㎡
户型结构
套房
装修风格
现代
装修方式
半包
装修造价
查看请联系客服万元
设计师
毛工
项目经理
余工
装修公司
格堂装饰
完工实景
完工实景
水电全景
水电全景
VR全景
VR全景
设计说明
设计理念:把空间中最大的白留给天花板。打开厨房空间,使用玻璃材质让视觉穿透,减少狭长走道的压迫感,也同时增加与其它空间的互动性。利用材质与分割整合为两座量体,把电视墙与收纳柜材质整合在一起,创造出大尺度且统一的立面,让视线沿着同材质延续至窗外。
更多信息
本帖最后由 格堂飞飞 于 2020-7-14 10:38 编辑

效果图
IMG_0846.JPG

IMG_0845.JPG
回复

使用道具 举报

 楼主| 发表于 2020-6-11 14:58:07 | 显示全部楼层

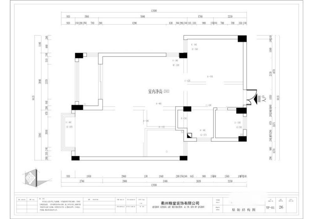
原始结构图
IMG_0848_副本.jpg
回复 支持 反对

使用道具 举报

 楼主| 发表于 2020-6-11 15:01:31 | 显示全部楼层
平面布置图
IMG_0848.JPG

回复 支持 反对

使用道具 举报

 楼主| 发表于 2020-6-11 15:04:02 | 显示全部楼层

师傅正在大门保护,开工前大门先要保护起来,防止磕碰哦!
IMG_0849.JPG

IMG_0854.JPG
回复 支持 反对

使用道具 举报

 楼主| 发表于 2020-6-11 15:06:23 | 显示全部楼层

师傅正在做开工前在准备工作。
IMG_0852.JPG

IMG_0850.JPG
回复 支持 反对

使用道具 举报

 楼主| 发表于 2020-6-11 15:07:19 | 显示全部楼层

门槛也保护到位,防止磕碰。
IMG_0855.JPG
回复 支持 反对

使用道具 举报

 楼主| 发表于 2020-6-11 15:08:30 | 显示全部楼层

水管用格堂专用保护盖保护,防止砂石堵塞管道。

IMG_0858.JPG

回复 支持 反对

使用道具 举报

 楼主| 发表于 2020-6-11 15:09:19 | 显示全部楼层

煤气表也要保护起来,防止磕碰哦!
IMG_0856.JPG
回复 支持 反对

使用道具 举报

 楼主| 发表于 2020-6-11 15:09:59 | 显示全部楼层

临时马桶安装到位,要讲究卫生哦!
IMG_0857.JPG
回复 支持 反对

使用道具 举报

 楼主| 发表于 2020-6-11 15:11:20 | 显示全部楼层

一切准备就绪,就等开工吉时喽!
IMG_0861.JPG

IMG_0859.JPG

IMG_0860.JPG
回复 支持 反对

使用道具 举报

您需要登录后才可以回帖 登录 | 立即注册

本版积分规则

全国统一客服电话
0570-8028505

24x7小时免费咨询

  • 官方在线客服

    QQ客服:小西

    点击交谈

    QQ客服:良子

    点击交谈

    QQ客服:闵月

    点击交谈
  • 衢州市柯城区财富中心3号楼2楼

  • 衢州格堂装饰有限公司

  • 扫一扫关注官方微信

    获取一手特惠信息

快速回复 返回顶部 返回列表