• 手机版

    扫码体验手机版

  • 微信公众号

    扫码关注公众号

登录注册
游客您好
第三方账号登陆

[衢州] 月亮湾沁园3-1-13#124㎡现代美式——柔婳

[复制链接]
发表于 2020-5-26 15:08:05 | 显示全部楼层 |阅读模式
柔婳

格堂装饰为您全程记录装修全过程!

小区名称
月亮湾沁园
房屋面积
124㎡
户型结构
套房
装修风格
美式
装修方式
全包
装修造价
查看请联系客服万元
设计师
梁工
项目经理
施工
装修公司
格堂装饰
完工实景
完工实景
水电全景
水电全景
VR全景
VR全景
设计说明
以米黄色和白色为主色调,暖色调的空间配色,呈现的是温馨的居家氛围。利用电视柜将客餐厅变的方正,增加了美观度,又有了收纳空间。
更多信息
本帖最后由 格堂飞飞 于 2020-8-23 16:05 编辑

效果图
IMG_7117.JPG

IMG_7118.JPG
回复

使用道具 举报

 楼主| 发表于 2020-5-26 15:11:28 | 显示全部楼层

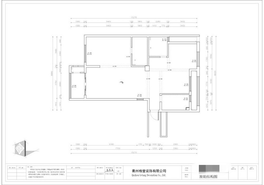
原始结构图
IMG_7116.JPG
回复 支持 反对

使用道具 举报

 楼主| 发表于 2020-5-26 15:11:49 | 显示全部楼层

平面布置图
IMG_7115.JPG
回复 支持 反对

使用道具 举报

 楼主| 发表于 2020-5-26 15:12:34 | 显示全部楼层

吉时已到,恭祝业主大人开工大吉!
IMG_7123_副本.jpg
回复 支持 反对

使用道具 举报

 楼主| 发表于 2020-5-26 15:13:47 | 显示全部楼层

开工第一锤,由业主大人亲自来哦!
IMG_7120_副本.jpg

回复 支持 反对

使用道具 举报

 楼主| 发表于 2020-5-26 15:14:38 | 显示全部楼层

装修开工第一锤应该敲在要拆除的墙体的墙角(即拐角),象征一锤定音的意思,也是新房动土的一种表示方式。

IMG_7122.JPG
回复 支持 反对

使用道具 举报

 楼主| 发表于 2020-5-26 15:16:38 | 显示全部楼层

开工前先检查墙面是否有空鼓。
IMG_7127.JPG
检查发现墙面有空鼓。
IMG_7126.JPG

IMG_7128.JPG

IMG_7129.JPG
回复 支持 反对

使用道具 举报

 楼主| 发表于 2020-5-26 15:17:59 | 显示全部楼层

开工前配电箱面板先要拆除,防止破损和丢失。
IMG_7124.JPG

IMG_7125.JPG
回复 支持 反对

使用道具 举报

 楼主| 发表于 2020-5-29 15:48:54 | 显示全部楼层

电梯间墙面和地面,保护到位防止磕碰哦!
IMG_7708.JPG

IMG_7712.JPG

IMG_7709.JPG

IMG_7711.JPG
回复 支持 反对

使用道具 举报

 楼主| 发表于 2020-5-29 15:51:26 | 显示全部楼层

门厅墙面是为了防止墙顶面出现空鼓,在做好油漆后不会有墙顶面整块油漆脱落的现象。
IMG_7713.JPG
墙面切割平整,新墙和老墙接缝处也是有讲究的.标准的是把两边的粉刷层敲掉,露出红砖,最后用钢筋衔接,这样接缝处粉刷好,新砌红砖墙和老的墙粘合处就非常牢固,不会开裂.
IMG_7719.JPG

IMG_7714.JPG


回复 支持 反对

使用道具 举报

您需要登录后才可以回帖 登录 | 立即注册

本版积分规则

全国统一客服电话
0570-8028505

24x7小时免费咨询

  • 官方在线客服

    QQ客服:小西

    点击交谈

    QQ客服:良子

    点击交谈

    QQ客服:闵月

    点击交谈
  • 衢州市柯城区财富中心3号楼2楼

  • 衢州格堂装饰有限公司

  • 扫一扫关注官方微信

    获取一手特惠信息

快速回复 返回顶部 返回列表