• 手机版

    扫码体验手机版

  • 微信公众号

    扫码关注公众号

登录注册
游客您好
第三方账号登陆

[衢州] 衢州公馆2-1-19#135 ㎡现代——惊艳时光的极致优雅

[复制链接]
发表于 2020-5-21 16:08:50 | 显示全部楼层 |阅读模式
惊艳时光的极致优雅

格堂装饰为您全程记录装修全过程!

小区名称
衢州公馆
房屋面积
135㎡
户型结构
套房
装修风格
现代
装修方式
半包
装修造价
查看请联系客服万元
设计师
毛工
项目经理
施工
装修公司
格堂装饰
完工实景
完工实景
水电全景
水电全景
VR全景
VR全景
设计说明
轻奢主义的诞生,源于人们对精致品质生活的追求。它着力于表现简约、舒适、低调而内敛的生活品味。同时又不失高贵与奢华
而在现代装修设计中“轻奢”主要表现为一种带有理性和温度的美学风格
更多信息

效果图
IMG_5042.JPG

IMG_5041.JPG

IMG_5040.JPG
回复

使用道具 举报

 楼主| 发表于 2020-5-21 16:12:11 | 显示全部楼层
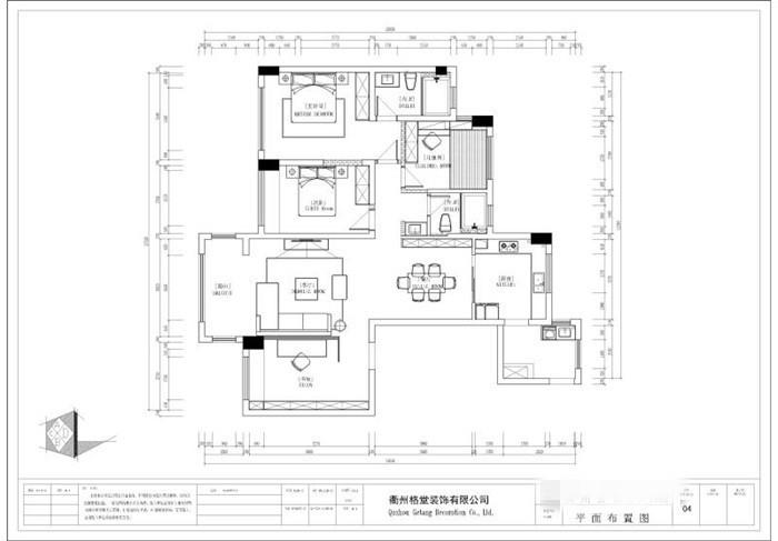
平面布置图
IMG_5037.JPG

回复 支持 反对

使用道具 举报

 楼主| 发表于 2020-5-21 16:14:25 | 显示全部楼层
本帖最后由 格堂飞飞 于 2020-5-21 16:16 编辑

项目经理正在大门保护,防止磕碰。
IMG_4783.JPG

IMG_4781.JPG
回复 支持 反对

使用道具 举报

 楼主| 发表于 2020-5-21 16:15:49 | 显示全部楼层

大门保护到位,防止磕碰哦!
IMG_4793.JPG

IMG_4796.JPG

回复 支持 反对

使用道具 举报

 楼主| 发表于 2020-5-21 16:17:00 | 显示全部楼层

门槛保护到位,防止磕碰。
IMG_4794.JPG
回复 支持 反对

使用道具 举报

 楼主| 发表于 2020-5-21 16:18:59 | 显示全部楼层

开工前准备工作先做好哦!
IMG_4782.JPG
师傅正在挂公司横幅。
IMG_4791.JPG

IMG_4792.JPG
回复 支持 反对

使用道具 举报

 楼主| 发表于 2020-5-21 16:20:05 | 显示全部楼层

师傅正在下水管道保护。
IMG_4785.JPG
回复 支持 反对

使用道具 举报

 楼主| 发表于 2020-5-21 16:22:37 | 显示全部楼层

水管用格堂专用保护盖保护,防止砂石堵塞管道。

IMG_4786.JPG

IMG_4787.JPG
回复 支持 反对

使用道具 举报

 楼主| 发表于 2020-5-21 16:23:28 | 显示全部楼层

煤气表也要保护起来,防止磕碰哦!
IMG_4788.JPG

IMG_4789.JPG
回复 支持 反对

使用道具 举报

 楼主| 发表于 2020-5-21 16:25:15 | 显示全部楼层

一切准备就绪,就等开工吉时啦!
IMG_4808.JPG

回复 支持 反对

使用道具 举报

您需要登录后才可以回帖 登录 | 立即注册

本版积分规则

全国统一客服电话
0570-8028505

24x7小时免费咨询

  • 官方在线客服

    QQ客服:小西

    点击交谈

    QQ客服:良子

    点击交谈

    QQ客服:闵月

    点击交谈
  • 衢州市柯城区财富中心3号楼2楼

  • 衢州格堂装饰有限公司

  • 扫一扫关注官方微信

    获取一手特惠信息

快速回复 返回顶部 返回列表