• 手机版

    扫码体验手机版

  • 微信公众号

    扫码关注公众号

登录注册
游客您好
第三方账号登陆

[衢州] 文景苑37-1-3#90125㎡北欧——北欧的简约美

[复制链接]
发表于 2020-5-21 11:32:36 | 显示全部楼层 |阅读模式
文景苑37-1-3#90125㎡北欧——北欧的简约美

格堂装饰为您全程记录装修全过程!

小区名称
文景苑
房屋面积
90㎡
户型结构
套房
装修风格
北欧
装修方式
半包
装修造价
查看请联系客服万元
设计师
王工
项目经理
施工
装修公司
格堂装饰
完工实景
完工实景
水电全景
水电全景
VR全景
VR全景
设计说明
旅行走过的城市,游览见到的风景,
逐渐构筑出的理想居住蓝图,
是山城的清新,是海岛的轻快!
这些向往,是否因你的落脚处局限徒留遗憾?
在城市的一角,有户主人家,
就将北欧的清新简洁与自然,带进了都会丛林。
更多信息
微信图片_20200521112555.jpg

微信图片_20200521112558.jpg
回复

使用道具 举报

 楼主| 发表于 2020-5-21 11:33:01 | 显示全部楼层
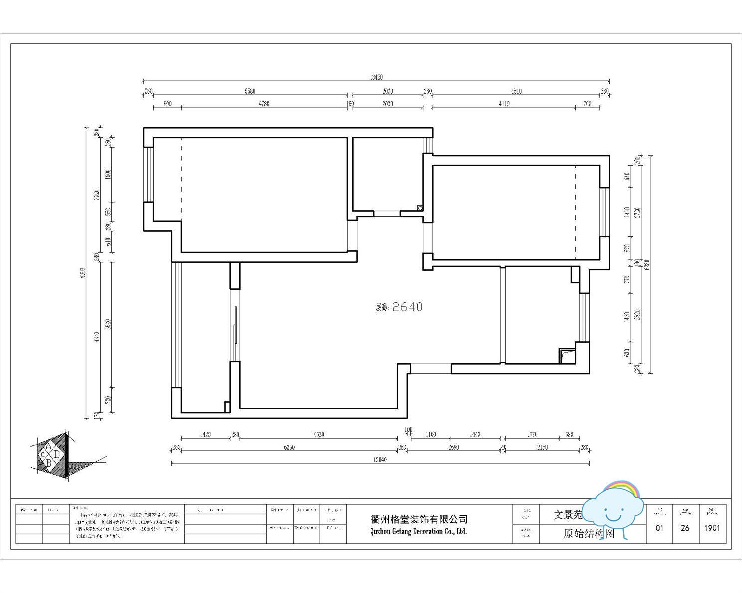
原始结构图

原始结构图.jpg
回复 支持 反对

使用道具 举报

 楼主| 发表于 2020-5-21 11:33:12 | 显示全部楼层
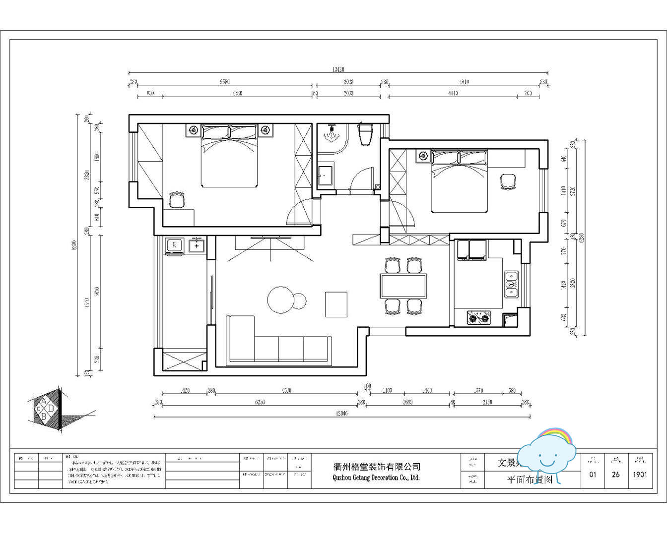
平面布置图

平面布置图.jpg
回复 支持 反对

使用道具 举报

 楼主| 发表于 2020-5-21 11:33:55 | 显示全部楼层
大门保护已做好

IMG_1732.JPG

IMG_1733.JPG
回复 支持 反对

使用道具 举报

 楼主| 发表于 2020-5-21 11:34:27 | 显示全部楼层
窗户保护做好

IMG_1734.JPG

IMG_1735.JPG
回复 支持 反对

使用道具 举报

 楼主| 发表于 2020-5-21 11:34:53 | 显示全部楼层
楼梯间保护已做好

IMG_1736.JPG
回复 支持 反对

使用道具 举报

 楼主| 发表于 2020-5-21 11:54:06 | 显示全部楼层
项目经理正在钉施工规范牌。

IMG_1738.JPG

回复 支持 反对

使用道具 举报

 楼主| 发表于 2020-5-21 11:55:06 | 显示全部楼层
煤气表保护到位下水管用格堂专用保护盖保护,防止砂石堵塞管道



IMG_1745.JPG

IMG_1743.JPG
回复 支持 反对

使用道具 举报

 楼主| 发表于 2020-5-21 11:55:30 | 显示全部楼层
准备开工啦,开工横幅、鲜花、礼花准备到位

IMG_1739.JPG

IMG_1750.JPG

IMG_1751.JPG

回复 支持 反对

使用道具 举报

 楼主| 发表于 2020-5-21 11:55:50 | 显示全部楼层
吉时到,礼花放起来!
恭祝业主开工大吉、大吉大利!!!

IMG_1759.JPG

IMG_1760.JPG

回复 支持 反对

使用道具 举报

您需要登录后才可以回帖 登录 | 立即注册

本版积分规则

全国统一客服电话
0570-8028505

24x7小时免费咨询

  • 官方在线客服

    QQ客服:小西

    点击交谈

    QQ客服:良子

    点击交谈

    QQ客服:闵月

    点击交谈
  • 衢州市柯城区财富中心3号楼2楼

  • 衢州格堂装饰有限公司

  • 扫一扫关注官方微信

    获取一手特惠信息

快速回复 返回顶部 返回列表