• 手机版

    扫码体验手机版

  • 微信公众号

    扫码关注公众号

登录注册
游客您好
第三方账号登陆

[龙游] 阳光水岸12#103㎡简美——暖享.时光

[复制链接]
发表于 2020-5-20 10:07:28 | 显示全部楼层 |阅读模式
暖享.时光

格堂装饰为您全程记录装修全过程!

小区名称
阳光水岸
房屋面积
103㎡
户型结构
套房
装修风格
简美
装修方式
半包
装修造价
查看请联系客服万元
设计师
王工
项目经理
沈工
装修公司
格堂装饰
完工实景
完工实景
水电全景
水电全景
VR全景
VR全景
设计说明
每个人都对生活,对美有自已特定的追求
当然,每个人看中的细节点都会有所不同
设计是要在把握舒适的前提下
去对生活细致的刻画。
把阳台包进客厅,合理的布置家具,减少空间棱角,使生活动线简洁流畅。
高纯度的色彩被大量运用,遵循了现代美式的设计风格,同时
也与家具、摆饰营造出空间的美感。
更多信息
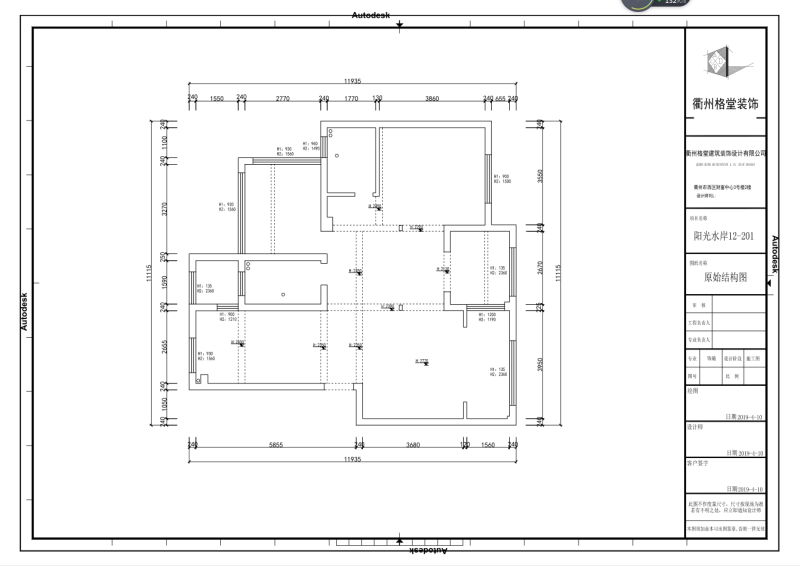
原始结构图
图片2.png




回复

使用道具 举报

 楼主| 发表于 2020-5-20 10:07:56 | 显示全部楼层
平面布置图

图片1.png
回复 支持 反对

使用道具 举报

 楼主| 发表于 2020-5-20 10:08:14 | 显示全部楼层
效果图

4.png
回复 支持 反对

使用道具 举报

 楼主| 发表于 2020-5-20 10:09:15 | 显示全部楼层
所有下水道管口做好保护,防止砂石阻塞

IMG_1619.JPG

IMG_1620.JPG

IMG_1621.JPG

IMG_1622.JPG

IMG_1624.JPG
回复 支持 反对

使用道具 举报

 楼主| 发表于 2020-5-20 10:09:30 | 显示全部楼层
IMG_1623.JPG
回复 支持 反对

使用道具 举报

 楼主| 发表于 2020-5-20 10:10:04 | 显示全部楼层
煤气表做好保护,防止磕碰受损

IMG_1625.JPG
回复 支持 反对

使用道具 举报

 楼主| 发表于 2020-5-20 10:10:41 | 显示全部楼层
入户门及大门做好保护,防止磕碰受损

IMG_1627.JPG
回复 支持 反对

使用道具 举报

 楼主| 发表于 2020-5-20 10:10:53 | 显示全部楼层
IMG_1626.JPG
回复 支持 反对

使用道具 举报

 楼主| 发表于 2020-5-20 10:11:20 | 显示全部楼层
吉时已到,开工大吉

IMG_1636.JPG
回复 支持 反对

使用道具 举报

 楼主| 发表于 2020-5-20 10:11:32 | 显示全部楼层
IMG_1630.JPG
回复 支持 反对

使用道具 举报

您需要登录后才可以回帖 登录 | 立即注册

本版积分规则

全国统一客服电话
0570-8028505

24x7小时免费咨询

  • 官方在线客服

    QQ客服:小西

    点击交谈

    QQ客服:良子

    点击交谈

    QQ客服:闵月

    点击交谈
  • 衢州市柯城区财富中心3号楼2楼

  • 衢州格堂装饰有限公司

  • 扫一扫关注官方微信

    获取一手特惠信息

快速回复 返回顶部 返回列表