• 手机版

    扫码体验手机版

  • 微信公众号

    扫码关注公众号

登录注册
游客您好
第三方账号登陆

[龙游] 锦绣龙城11#122㎡现代风——卧龙阁

[复制链接]
发表于 2020-5-20 09:48:42 | 显示全部楼层 |阅读模式
卧龙阁

格堂装饰为您全程记录装修全过程!

小区名称
锦绣龙城
房屋面积
122㎡
户型结构
套房
装修风格
现代
装修方式
半包
装修造价
查看请联系客服万元
设计师
梁工
项目经理
杨工
装修公司
格堂装饰
完工实景
完工实景
水电全景
水电全景
VR全景
VR全景
设计说明
旧房的变形之路,这将变成舒适且自然。也像能够感受到四季变迁的自在。他们觉得,这样的体验,才是一切的原点。带着他们所寄予这所新居的情感,我们的设计决定从颜色与材质上去重拾被现实生活丢弃掉的自然美学观念,然后去寻找一种真正属于屋主的生活方式。
更多信息
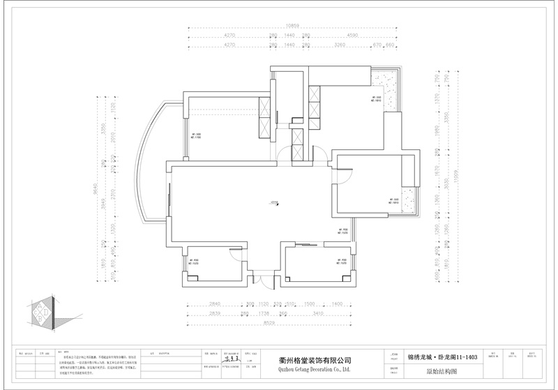
原始图:

微信图片_20200520093659.jpg
回复

使用道具 举报

 楼主| 发表于 2020-5-20 09:49:02 | 显示全部楼层
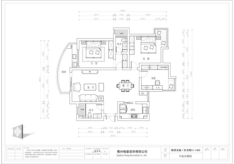
平面布置图


回复 支持 反对

使用道具 举报

 楼主| 发表于 2020-5-20 09:49:02 | 显示全部楼层
平面布置图

微信图片_20200520093654.jpg
回复 支持 反对

使用道具 举报

 楼主| 发表于 2020-5-20 09:49:27 | 显示全部楼层
效果图




回复 支持 反对

使用道具 举报

 楼主| 发表于 2020-5-20 09:49:27 | 显示全部楼层
效果图

微信图片_20200520093643.jpg

微信图片_20200520093635.jpg
回复 支持 反对

使用道具 举报

 楼主| 发表于 2020-5-20 09:50:12 | 显示全部楼层
准备做开工仪式

IMG_0399.JPG

IMG_0403.JPG

IMG_0400.JPG
回复 支持 反对

使用道具 举报

 楼主| 发表于 2020-5-20 09:51:02 | 显示全部楼层
吉时已到,开工大吉

IMG_0415.JPG
回复 支持 反对

使用道具 举报

 楼主| 发表于 2020-5-20 09:51:23 | 显示全部楼层





回复 支持 反对

使用道具 举报

 楼主| 发表于 2020-5-20 09:51:23 | 显示全部楼层
IMG_0405.JPG

IMG_0406.JPG

IMG_0407.JPG
回复 支持 反对

使用道具 举报

 楼主| 发表于 2020-5-20 09:51:46 | 显示全部楼层
IMG_0408.JPG

IMG_0409.JPG

IMG_0413.JPG
回复 支持 反对

使用道具 举报

您需要登录后才可以回帖 登录 | 立即注册

本版积分规则

全国统一客服电话
0570-8028505

24x7小时免费咨询

  • 官方在线客服

    QQ客服:小西

    点击交谈

    QQ客服:良子

    点击交谈

    QQ客服:闵月

    点击交谈
  • 衢州市柯城区财富中心3号楼2楼

  • 衢州格堂装饰有限公司

  • 扫一扫关注官方微信

    获取一手特惠信息

快速回复 返回顶部 返回列表