[龙游] 碧桂园7#2#136㎡现代-素履之往 |
|
素履之往
格堂装饰为您全程记录装修全过程! 设计说明
14:31:52
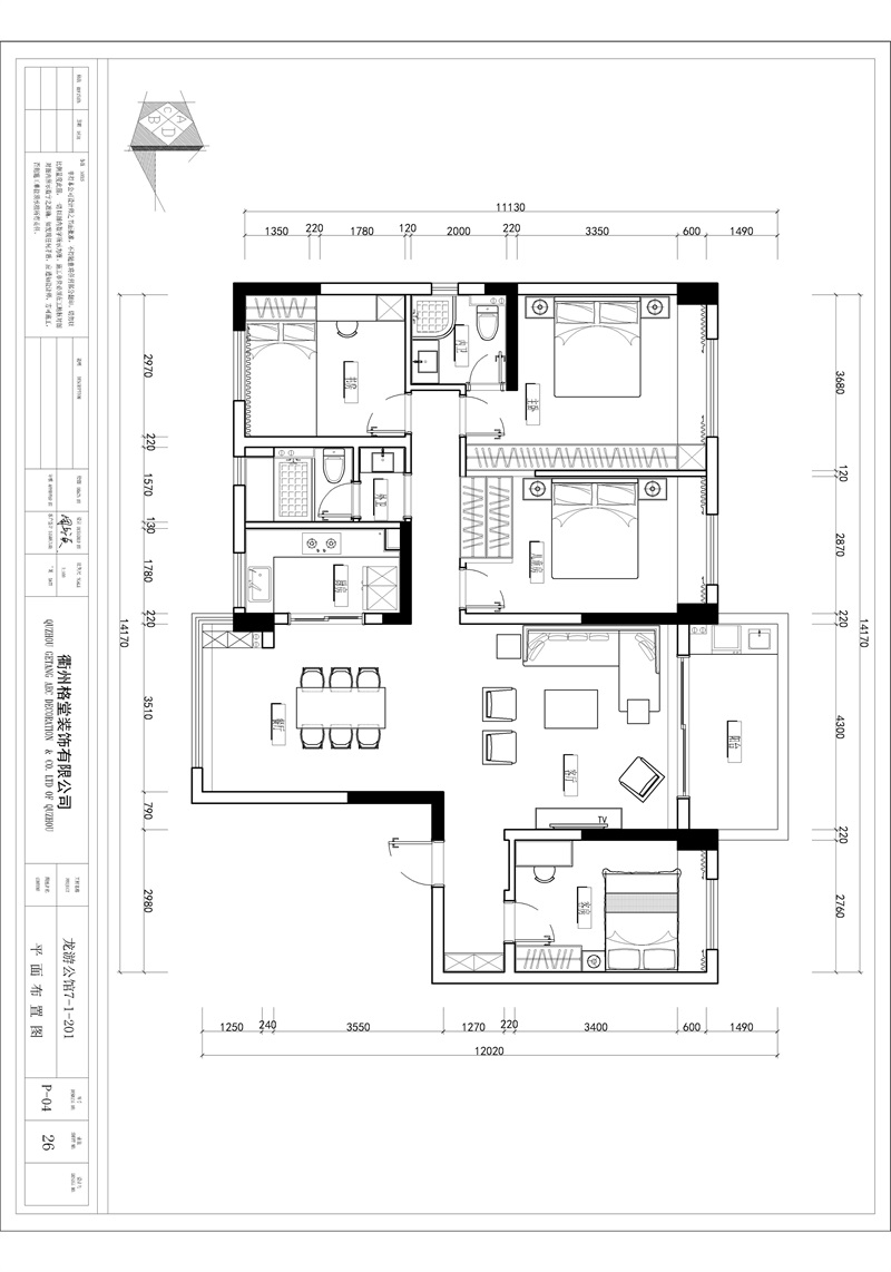
本案例中,业主一家三代同堂,家中有老人、小孩,在欢声笑语中,尽享天伦。作为改善型住房空间,我们在注重隐私的同时,提升了房屋的储物、收纳功能,将阳台改造以此留给儿童更多的活动区域。客餐厅一体式的设计让空间更加通透无隔断,注重对自然光线的引入,以浓郁的生活气息点亮“家”的温度。正所谓“心之所向,素履以往”。这套小家或许没有多么的华丽,但足够的温馨、实用。三代同堂的屋檐下,作为设计师的我在满足客户需求的同时,更加注重空间的功能性和舒适度。 更多信息
| |


在线客服
微信客服
关注有礼