• 手机版

    扫码体验手机版

  • 微信公众号

    扫码关注公众号

登录注册
游客您好
第三方账号登陆

[衢州] 云栖新语5-1-4#119㎡现代简约——有温度,更有生活的痕迹

[复制链接]
发表于 2020-5-8 16:33:44 | 显示全部楼层 |阅读模式
有温度,更有生活的痕迹

格堂装饰为您全程记录装修全过程!

小区名称
云栖新语
房屋面积
119㎡
户型结构
套房
装修风格
现代
装修方式
半包
装修造价
查看请联系客服万元
设计师
许工
项目经理
童工
装修公司
格堂装饰
完工实景
完工实景
水电全景
水电全景
VR全景
VR全景
设计说明
“我们都被城市教化得失去了自然性”。当下生活中多余而繁盛的设计往往掩盖了生活本身的需求。家,会为你拂去疲惫的征尘,是永远的牵挂,是珍藏幸福的存根。居住空间充满了人性与情感,在设计之初,就应该以居住者作为出发点,让空间去理解人。
更多信息
本帖最后由 格堂飞飞 于 2020-5-19 10:22 编辑


效果图
2b5bd9b5b31540a40ff36d51d4d5dd1.jpg

33832cc9e5a8e48b6c91f6a59ab6d06.jpg
回复

使用道具 举报

 楼主| 发表于 2020-5-8 16:34:27 | 显示全部楼层

原始结构图
5696db72473d703ee00629ee0902ea7_副本.jpg
回复 支持 反对

使用道具 举报

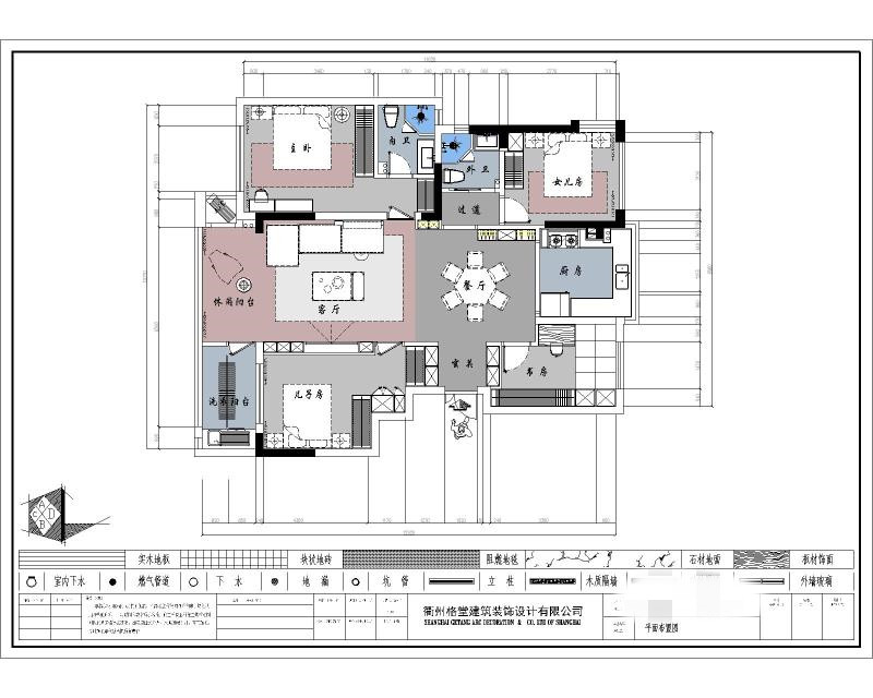
 楼主| 发表于 2020-5-8 16:35:04 | 显示全部楼层
本帖最后由 格堂飞飞 于 2020-5-13 16:59 编辑

平面布置图
11daea474d58140b2f4536ec7847456.jpg

回复 支持 反对

使用道具 举报

 楼主| 发表于 2020-5-8 16:36:11 | 显示全部楼层

师傅正在大门保护,防止磕碰哦!
IMG_1641.JPG

IMG_1642.JPG
回复 支持 反对

使用道具 举报

 楼主| 发表于 2020-5-8 16:37:40 | 显示全部楼层

电梯间墙面和地面保护到位,防止磕碰。
IMG_1649.JPG

IMG_1652.JPG

IMG_1653.JPG

IMG_1654.JPG
回复 支持 反对

使用道具 举报

 楼主| 发表于 2020-5-8 16:38:42 | 显示全部楼层

地面也保护到位,防止磕碰。
IMG_1655.JPG

IMG_1650.JPG

IMG_1651.JPG
回复 支持 反对

使用道具 举报

 楼主| 发表于 2020-5-8 16:40:00 | 显示全部楼层

水管用格堂专用保护盖保护,防止砂石堵塞管道。

IMG_1645.JPG

IMG_1644.JPG
回复 支持 反对

使用道具 举报

 楼主| 发表于 2020-5-8 16:40:58 | 显示全部楼层

门槛也保护到位,防止磕碰哦!
IMG_1656.JPG
回复 支持 反对

使用道具 举报

 楼主| 发表于 2020-5-8 16:43:32 | 显示全部楼层

项目经理正在安装临时马桶,要讲究卫生哦!
IMG_1648.JPG
回复 支持 反对

使用道具 举报

 楼主| 发表于 2020-5-8 16:45:25 | 显示全部楼层

一切准备就绪,就等开工吉时啦!
IMG_1643.JPG
回复 支持 反对

使用道具 举报

您需要登录后才可以回帖 登录 | 立即注册

本版积分规则

全国统一客服电话
0570-8028505

24x7小时免费咨询

  • 官方在线客服

    QQ客服:小西

    点击交谈

    QQ客服:良子

    点击交谈

    QQ客服:闵月

    点击交谈
  • 衢州市柯城区财富中心3号楼2楼

  • 衢州格堂装饰有限公司

  • 扫一扫关注官方微信

    获取一手特惠信息

快速回复 返回顶部 返回列表