• 手机版

    扫码体验手机版

  • 微信公众号

    扫码关注公众号

登录注册
游客您好
第三方账号登陆

[衢州] 衢州公馆10-15-117㎡ 现代中式——《灼灼璞玉,静世芳华 》

[复制链接]
发表于 2020-4-24 17:45:22 | 显示全部楼层 |阅读模式
《灼灼璞玉,静世芳华 》

格堂装饰为您全程记录装修全过程!

小区名称
衢州公馆
房屋面积
117㎡
户型结构
套房
装修风格
中式
装修方式
半包
装修造价
查看请联系客服万元
设计师
韩工
项目经理
刘工
装修公司
格堂装饰
完工实景
完工实景
水电全景
水电全景
VR全景
VR全景
设计说明
设计理念:楚辞有云:“浩浩沅湘,分流汨兮。”湘水滔滔造就了渚青沙白的城市风光,无数文人墨客在湖湘之地留下传颂千百年的风流篇章。由此文韵景致而来的灵感启迪,将文脉绵延、诗意葳蕤的锦绣嵌入空间,又在当代审美体系下,保证空间意境的同时保证了功能实用性
更多信息
效果图
IMG_9468.JPG

IMG_9469.JPG
回复

使用道具 举报

 楼主| 发表于 2020-4-25 08:48:27 | 显示全部楼层

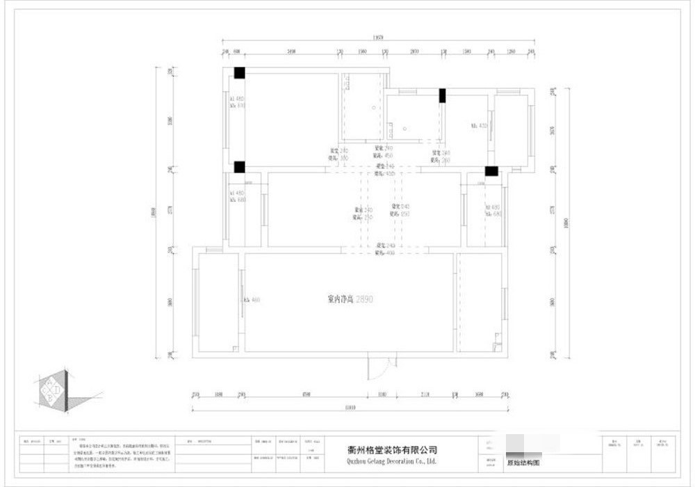
原始结构图
IMG_9472_副本.jpg


回复 支持 反对

使用道具 举报

 楼主| 发表于 2020-4-25 08:50:36 | 显示全部楼层

平面布置
IMG_9471.JPG
回复 支持 反对

使用道具 举报

 楼主| 发表于 2020-4-25 08:52:17 | 显示全部楼层

电梯间墙面和地面保护到位,防止磕碰哦!
IMG_9009.JPG

IMG_9013.JPG

IMG_9014.JPG

IMG_9011.JPG

回复 支持 反对

使用道具 举报

 楼主| 发表于 2020-4-25 08:53:54 | 显示全部楼层

电梯间地面保护到位,防止磕碰哦!
IMG_9010.JPG

IMG_9012.JPG

IMG_9015.JPG

IMG_9016.JPG
回复 支持 反对

使用道具 举报

 楼主| 发表于 2020-4-25 08:54:53 | 显示全部楼层

大门保护到位,防止磕碰。
IMG_9022.JPG

IMG_9017.JPG
回复 支持 反对

使用道具 举报

 楼主| 发表于 2020-4-25 08:55:40 | 显示全部楼层

门槛也保护到位,防止磕碰哦!
IMG_9018.JPG
回复 支持 反对

使用道具 举报

 楼主| 发表于 2020-4-25 08:56:58 | 显示全部楼层

临时马桶安装到位,要讲究卫生间哦!
IMG_9019.JPG
回复 支持 反对

使用道具 举报

 楼主| 发表于 2020-4-25 08:57:46 | 显示全部楼层

水管用格堂专用保护盖保护,防止砂石堵塞管道。

IMG_9020.JPG
回复 支持 反对

使用道具 举报

 楼主| 发表于 2020-4-25 08:58:23 | 显示全部楼层

煤气表也要保护到位,防止磕碰。
IMG_9021.JPG
回复 支持 反对

使用道具 举报

您需要登录后才可以回帖 登录 | 立即注册

本版积分规则

全国统一客服电话
0570-8028505

24x7小时免费咨询

  • 官方在线客服

    QQ客服:小西

    点击交谈

    QQ客服:良子

    点击交谈

    QQ客服:闵月

    点击交谈
  • 衢州市柯城区财富中心3号楼2楼

  • 衢州格堂装饰有限公司

  • 扫一扫关注官方微信

    获取一手特惠信息

快速回复 返回顶部 返回列表