• 手机版

    扫码体验手机版

  • 微信公众号

    扫码关注公众号

登录注册
游客您好
第三方账号登陆

[衢州] 城南印象5-1-1#125㎡现代——和风物语

[复制链接]
发表于 2020-4-23 16:57:19 | 显示全部楼层 |阅读模式
城南印象5-1-1#125㎡现代——和风物语

格堂装饰为您全程记录装修全过程!

小区名称
城南印象
房屋面积
117㎡
户型结构
底复
装修风格
现代
装修方式
半包
装修造价
查看请联系客服万元
设计师
徐工
项目经理
周工
装修公司
格堂装饰
完工实景
完工实景
水电全景
水电全景
VR全景
VR全景
设计说明
在设计时,我们并未做复杂的硬装,整个空间格局没有做太多改变,而是希望在有限的空间里,做出让人通透、放松的感觉。和风物语的家装满了我们所有的期待....
更多信息
本帖最后由 格堂小叶 于 2020-4-25 08:25 编辑


回复

使用道具 举报

 楼主| 发表于 2020-4-23 16:58:05 | 显示全部楼层
原始结构图

微信图片_20200423164948.jpg
回复 支持 反对

使用道具 举报

 楼主| 发表于 2020-4-23 16:58:30 | 显示全部楼层
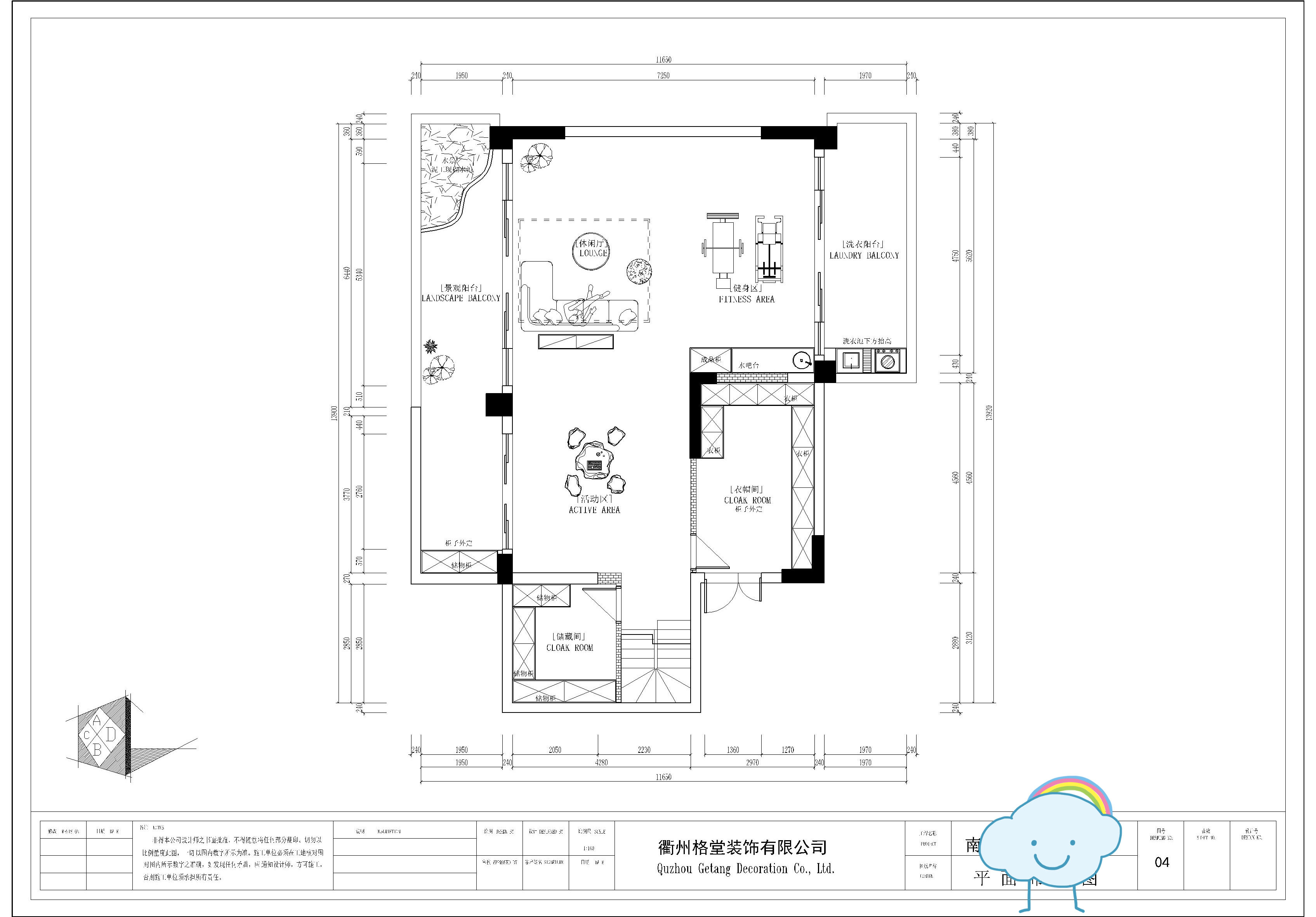
平面布置图

微信图片_20200423164955.jpg
回复 支持 反对

使用道具 举报

 楼主| 发表于 2020-4-23 16:59:12 | 显示全部楼层
今天是开工的好日子,开工横幅、鲜花、礼花到位


IMG_0505.JPG

IMG_0508.JPG

IMG_0511.JPG

IMG_0506.JPG

IMG_0509.JPG
回复 支持 反对

使用道具 举报

 楼主| 发表于 2020-4-23 17:00:52 | 显示全部楼层
本帖最后由 格堂小叶 于 2020-4-23 17:07 编辑

项目经理正在标注需要拆改的位置,方便后续师傅施工。


IMG_0512.JPG

IMG_0513.JPG

IMG_0514.JPG

IMG_0515.JPG


回复 支持 反对

使用道具 举报

 楼主| 发表于 2020-4-23 17:01:31 | 显示全部楼层
本帖最后由 格堂小叶 于 2020-4-23 17:04 编辑

放样完成

IMG_0529.JPG

IMG_0528.JPG

IMG_0530.JPG

IMG_0531.JPG
回复 支持 反对

使用道具 举报

 楼主| 发表于 2020-4-23 17:03:22 | 显示全部楼层
吉时到咯,礼花放起来!
恭祝业主开工大吉、大吉大利!!!



IMG_0570.JPG

IMG_0571.JPG
回复 支持 反对

使用道具 举报

 楼主| 发表于 2020-4-23 17:03:54 | 显示全部楼层
装修开工第一锤应该敲在要拆除的墙体的墙角(即拐角)上,象征一锤定音的意思,也是新房动土的一种表示方式。


IMG_0569.JPG

IMG_0527.JPG
回复 支持 反对

使用道具 举报

 楼主| 发表于 2020-4-23 17:07:45 | 显示全部楼层
项目经理正在标注需要拆改的位置,方便后续师傅施工。


IMG_0532.JPG

IMG_0533.JPG

IMG_0534.JPG
回复 支持 反对

使用道具 举报

 楼主| 发表于 2020-4-25 08:57:10 | 显示全部楼层
本帖最后由 格堂小叶 于 2020-4-29 13:19 编辑

大门.门槛.楼道保护已做好

微信图片_20200427134517.jpg

IMG_0888.JPG

IMG_0584.JPG

IMG_0585.JPG

IMG_0586.JPG



回复 支持 反对

使用道具 举报

您需要登录后才可以回帖 登录 | 立即注册

本版积分规则

全国统一客服电话
0570-8028505

24x7小时免费咨询

  • 官方在线客服

    QQ客服:小西

    点击交谈

    QQ客服:良子

    点击交谈

    QQ客服:闵月

    点击交谈
  • 衢州市柯城区财富中心3号楼2楼

  • 衢州格堂装饰有限公司

  • 扫一扫关注官方微信

    获取一手特惠信息

快速回复 返回顶部 返回列表